Tipiškas 3 kambarių buto išplanavimas penkiaaukščiame name - tai iššūkis ir galimybė sukurti patogią bei funkcionalią erdvę. Dažnai tokie butai pasižymi panašiu išdėstymu, tačiau kūrybiškai pažvelgus į interjerą, galima pasiekti stulbinančių rezultatų.

Pagrindiniai Išplanavimo Aspektai
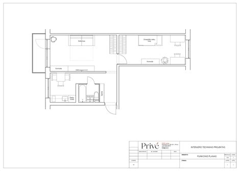
Paprastai tokiuose butuose yra svetainė, du miegamieji, virtuvė ir vonios kambarys. Svarbu apgalvoti, kaip efektyviai išnaudoti kiekvieną zoną, kad būstas atitiktų visus šeimos poreikius.
Svetainė
Svetainė dažnai tampa pagrindine susibūrimo vieta, todėl čia reikėtų skirti daugiausiai dėmesio. Erdvi svetainė, kur virtuvė sujungta su svetaine, bendras virtuvės ir svetainės plotas - 23 kv.
Jaukus 2 kamb. Visi langai orientuoti į Pietų puse, tad butas labai šviesus ir šiltas.
Miegamieji
Miegamieji turėtų būti jaukūs ir ramūs. Atskiras miegamasis, užtikrins privatumą ir komfortą.
Virtuvė
Virtuvė turi būti funkcionali ir patogi. Integruotas virtuvinis komplektas padės sutaupyti vietos ir sukurti tvarkingą įvaizdį.
Vonios Kambarys
Jei vonia sujungta su tamsiu kambariuku, todėl erdvi ir patogi, wc atskirai, tai gali būti didelis privalumas.
Erdvės Didinimo Būdai
Yra keletas būdų, kaip vizualiai padidinti erdvę mažame bute:
- Šviesios spalvos interjere
- Veidrodžiai
- Minimalistinis stilius
- Funkcionalūs baldai

Baldų Pasirinkimas
Renkantis baldus, verta atkreipti dėmesį į jų funkcionalumą. Pavyzdžiui, sofa-lova gali tarnauti kaip papildoma miegamoji vieta svečiams.
Dovanoju 2 spintas ir viena nedidelę sofą. Baldai naudoti bet tvarkingi.
Baldų pavyzdžiai
- Indauja TURIN su 2 stalčiais ir 2 durimis 46,5x110xH82cm
- 2 kėdžių komplektas RETRO 44x50,5xH103cm
- 2 kėdžių komplektas TURIN 57x51xH80cm
Apšvietimas
Gerai apgalvotas apšvietimas gali sukurti jaukią atmosferą ir vizualiai padidinti erdvę. Visi langai orientuoti į Pietų puse, tad butas labai šviesus ir šiltas.
Parduodamas pilnai įrengtas 3 trijų kambarių butas Kaune Petrašiūnuose
Remonto Sprendimai
Atliekant remontą, verta apsvarstyti keletą esminių dalykų. Suremontuotas, dalinai rekonstruotas, išlygintos lubos, sienos ir grindys. Koridoriuj ir virtuvėj sudėta vinilinė danga, kambariuose laminatas. Visame bute pakeista santechnika.
- Plastikiniai langai
- Laminuotos grindys
- Dažytos sienos
Pavyzdžiai iš Skelbimų
Štai keletas pavyzdžių iš skelbimų, kurie gali įkvėpti jūsų buto įrengimui:
- Nuomojamas 2 kambarių butas Naugarduko g., be gyvūnų. Namas randasi toliau nuo gatvės. Prie namo didelė automobilių parkavimo aikštelė. Namo kieme įrengta vaikų žaidimų aikštelė. Arti visuomeninio transporto stotelė.
- Išnuomojamos gyvenamos patalpos patogioje miesto dalyje, automobilių parkavimosi aikštelė, įrengtas, su buitine technika ir baldais. Yra du balkonai. Be vaikų ir be gyvūnų.
- Parduodamas 2 kambarių butas 5 aukšte Taikos 16. Namas blokinis, 1989 m. Butas vidurinis, labai šiltas. 52, 05 kvadrato. Paliekama dalis baldų, buitinė technika (dujinė viryklė, skalbyklė, mikro bangų krosnelė, svetainės baldai). WC ir vonia atskirai. Įstiklintas balkonas. Tvarkinga laiptinė, ramūs kaimynai. Erdvi aikštelė automobiliui. Šalia vaikų darželis Pasaka, Ventos mokykla.
- Parduodamas 2 k. (53,43 kv.m.) butas Aukštakalnio gatvėje, Vidzgirio mikrorajone. Suremontuotas, dalinai rekonstruotas, išlygintos lubos, sienos ir grindys. Koridoriuj ir virtuvėj sudėta vinilinė danga, kambariuose laminatas. Visame bute pakeista santechnika. Vonia sujungta su tamsiu kambariuku, todėl erdvi ir patogi, wc atskirai. Abu kambariai nepereinami, sienos negriautos. Virtuvė pereina i koridorių. Bute yra erdvi lodžija, į kurią galima įeiti iš svetainės ir iš virtuvės (papildomai rekonstruota). Butas yra 5-ame namo aukšte, virš kurio įrengtos techninės patalpos, todėl namas turi papildomą 6-ą aukštą, ko pasekoje virš lodžijos butui priklauso dar tokio pat dydžio, normalaus aukščio palėpė su langeliu, lentynom, atliekanti sandėliuko funkciją (paskirtį galima pasirinkti ir kitą). Namas mūrinis, 1992 metų statybos. Tvarkinga laiptinė. Prie namo didelė aikštelė automobiliams.
Kiekvienas butas yra unikalus, todėl svarbu pritaikyti išplanavimą pagal savo individualius poreikius ir skonį. Kūrybiškumas ir planavimas padės jums sukurti jaukius ir funkcionalius namus!
tags: #3 #kamb #standartinis #butas #penkiaaujstyje