Standartinio dviejų kambarių buto išplanavimas gali būti keičiamas keliais skirtingais būdais, vieni jų - labai nesudėtingi, kitiems būtinas projektas ir leidimas. Svarbiausia - įvertinti savo gyvenimo būdą ir poreikius, gyventojų skaičių, o baldų planas tai atspindės.
Aptarsime gana dažnai pasitaikančio 2 kambarių buto, kuriame yra atskirta virtuvė, du atskiri kambariai ir bendra vonios bei tualeto erdvė, planavimą.
Dvejų kambariu buto remontas, pas Povilą.
Standartinis Dviejų Kambarių Butas: Iššūkiai ir Galimybės
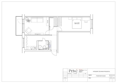
Taip atrodo standartinis dviejų kambarių butas, kuriame niekada nebuvo įrengtos papildomos pertvaros. Šis baldų planas atspindi tai, kaip prieš kelis dešimtmečius gyveno nemažai šeimų, tačiau šiandien jis galėtų būti daug patogesnis. Tai - turbūt mažiausiai funkcionalus išdėstymas: pereinamas kambarys neužtikrina privatumo, nedidelė virtuvė ir mažytis vonios kambarys sunkiai sutalpina viską, ko reikia gyvenimui.

Tokiame bute nebuvo numatyta vieta skalbimo mašinai, šiais laikais būtinai kiekvieno namuose. Paprasčiausia būtų ją statyti tarp unitazo ir vonios, virš mašinos montuojant specialiai tam skirtą praustuvą. Tai - toli gražu ne idealus variantas. Tiesa, kartais skalbimo mašina yra perkeliama į virtuvę.
Jei svarstote, kaip atnaujinti tokį butą, mano nuoširdus pasiūlymas būtų pasirinkti vieną iš žemiau esančių galimybių.
Išplanavimo Variantai:
- Kambarių atskyrimas ir drabužinės formavimas: Jei nesate pasiryžę griauti sienų, galite kambarius atskirti ir suformuoti drabužinę.
- Virtuvės sujungimas su svetaine: Populiarus, nors turbūt daugeliu atvejų - ne visada teisėtas - išplanavimo variantas. Kodėl jis ne visada teisėtas? Tokiems darbams būtinas kapitalinio remonto projektas, kaimynų sutikimai ir leidimas darbams vykdyti.
- Erdvių sujungimas laikantis reikalavimų: Tačiau Jūs galite šias erdves sujungti laikydamiesi reikalavimų - niekas jūsų nepaskųs dėl neteisėtų darbų, nekils klausimų parduodant tokį būstą. Jei anga į virtuvę suformuota teisingai, šis pakeitimas tikrai vizualiai praplės jūsų namus ir bus puikus pasirinkimas vienam ar dviems žmonėms.
- Vonios kambario didinimas ir koridoriaus panaikinimas: Koridoriaus sąskaita padidintas vonios kambarys, virtuvė sujungta su svetaine, panaikintas mažai naudingas koridorius - toks baldų planas dažniausiai sutinkamas nedideliuose naujos statybos butuose.
- Daugiau sienų: Atskiri kambariai - praktiškesnis pasirinkimas jaunai šeimai su vaikais, nuomai butą ruošiantiems savininkams ar tiesiog tiems, kurie nenori virtuvės svetainėje. Šis baldų planas - paprastas, bet funkcionalus.

Baldų Pasirinkimas ir Išdėstymas:
Jei tokiuose namuose gyvens trys ar keturi žmonės, siūlyčiau išmintingai pasirinkti kelias funkcijas atliekančius baldus. Jei vaikų kambaryje pastatytumėte dviejų aukštų lovą, jame patogiai tilptų du mažyliai. Tamsus kambariukas, puikiai atskiriantis erdves, galėtų virsti pakankamai talpia drabužine. Tėvų kambaryje-svetainėje nepamainomas būtų kavos staliukas, prireikus virstantis valgomojo stalu ir sofa, nesunkiai paverčiama lova.
Nuomos Potencialas:
Nors kelių atskirų kambarių butai šiuo metu mažiau populiarūs naujos statybos namuose, jie turi daug privalumų ketinantiems savo turtą nuomoti. Verta nepamiršti, kad rinkoje itin daug dviejų kambarių butų, kuriuose gali gyventi tik vienas žmogus ar pora, tačiau nuomojant dviejų atskirų kambarių butą jis būtų patrauklus ir šeimai su vaikais ar studentams.
Vonios kambario, virtuvės ir koridoriaus išplanavimą plačiau nagrinėsiu kitame įraše. Galimybių perplanuoti net ir tokias nedideles erdves yra ne viena, tad kiekvienas galėtų jas įsirengti pagal savo asmeninius poreikius.
Senos Statybos Butai: Mitai ir Realybė
Išgirstu nuomonių, kad sena statyba - tik gyvenimui “iš bėdos”, o nauja - visapusiškai geresnė. Be abejo, yra įvairių atvejų. Dalis senų namų pastatyti nekokybiškai, kiti - labai nusidėvėję ir juos reiktų nugriauti. Tačiau nemažai jų yra geros kokybės, dalis - renovuoti ir tikrai arti miesto centro.
Esu girdėjusi ir minčių, kad senos statybos butai yra prastai išplanuoti, maži, juose netelpa skalbimo mašina ar indaplovė. Tai - tiesa. Tačiau būtų klaidinga manyti, kad tai - tik to laikmečio daugiabučių problema. 53 m2 trijų kambarių butas, ar 38 m2 dviejų kambarių butas nebėra retenybė naujos statybos namuose! 16 m2 bendra virtuvės, svetainės ir valgomojo erdvė? 3,5 m2 ploto vonios kambarys, kuriame reikia sutalpinti skalbimo mašiną ir rekuperatorių? Tik naujos statybos butuose!
Už panašią ar didesnę sumą įsigiję naujos statybos butą arba gyvensite labai toli nuo miesto centro ir tikrai pėstute nenueisite iki Katedros aikštės per 30 minučių, arba tapsite ne ką didesnio būsto savininku, kuriame taip pat sunkiai sutalpinsite viską, ko reikia patogiam gyvenimui. Nelyginu šio buto su namu užmiestyje ar prabangiu butu senamiestyje! Tačiau galiu palyginti su panašaus ploto, bet du ar tris kartus aukštesnės kainos už kvadratą, naujos statybos butais Vilniuje.
Išplanavimas Pagal Šeimos Poreikius
Kaip rašo delfi.lv, svarbu numatyti esminį dalyką - kokybišką garso izoliaciją (stipriai priglundančios ir gerai užsidarančios durys, baldai išdėlioti, siekiant maksimaliai sugerti triukšmą, sklindantį iš gretimo kambario).
Šeima be Vaikų
Šis variantas numato bendrą kambarį, kuriame galima bendrauti su svečiais ar įrengti darbo vietą namuose, ir atskirą miegamąjį. Šiuo atveju miegamajam tenka ne tik poilsiui skirtos erdvės, bet ir didžiosios dalies daiktų saugyklos vaidmuo. Jei kambario planas suteikia tokią galimybę, galima nedidelį gabalėlį skirti visavertei rūbinei įkurdinti.
Didysis kambarys, priklausomai nuo to, ką mėgstate daryti namuose, gali pavirsti į didelės draugų kompanijos susibūrimų vietą arba į savotišką namų biurą. Jei jums labiau prie širdies susitikimai su draugais, rinkdamiesi sofą atkreipkite dėmesį į lova pavirsti galintį variantą. Juk po ilgų pasisėdėjimų 1-2 asmenys tikrai gali likti nakvoti.
Jei neretai tenka padirbėti iš namų, prie lango didžiajame kambaryje esančią zoną galima paversti darbo kabinetu, kurį nuo likusios svetainės erdvės kuo puikiausiai gali atitverti ta pati sofa. Svarbiausia tokiu atveju nenaudoti aukštų lentynų ir pertvarų, kad šviesa laisvai patektų ir į kitas kambario dalis.
Dar vienas patarimas: būstui neaukštomis lubomis derėtų įsigyti spintas, kurių lentynos siekia patį viršų. Jei pasirinksite kitokį variantą, rizikuojate vizualiai lubas dar labiau pažeminti.
Šeima su Vienu Vaiku
Šiuo atveju izoliuotas kambarys paverčiamas vaikų kambariu, o didžiajame kambaryje tenka rasti vietos tėvų miegamajam. Vaikų kambario kampuose geriausia išdėstyti spintas, kad į jas tilptų maksimalus daiktų kiekis. Stalui vertėtų vietą skirti prie lango arba blogiausiu atveju ten, kur šviesa ant stalo kristų iš kairės pusės. Lovą vaikų kambaryje geriausia statyti prie sienos, nesiribojančios su didžiuoju kambariu.
Turbūt jau supratote, kad sofa svetainėje taps tėvų miegojimo vieta, todėl ją rinktis teks itin kruopščiai, nes ant jos jums teks miegoti ir galimai tai daryti pakankamai ilgai. Jei kambario planas suteikia tokią galimybę, prie lango pageidautina įrengti poilsio zoną, skirtą bent vienam iš tėvų. Tiks jaukus fotelis, toršeras ir nedidelis lentynų komplektas knygoms susidėti. Šiame mielame kampelyje galėsite paskaityti knygą, skirti laiko rankdarbiams ar paprasčiausiai panaršyti internete.
Jei dviejų kambarių bute tenka gyventi bent su vienu vaiku, pastebimai išauga daiktų saugojimo sistemų svarba. Apsvarstykite galimybę sumontuoti vonios kambaryje praustuvą, po kuriuo vietos būtų galima rasti kelioms atviroms ar uždaroms lentynoms. Įsigykite veidrodį, už kurio būtų galima paslėpti kosmetiką ar vaistus. Rinkitės pakabinamas spinteles ne tik virtuvėje, bet ir vonioje bei didžiajame kambaryje.
Šeima su Dviem Vaikais
Šiuo atveju dviejų kambarių bute gyvena iš karto keturi žmonės, o tai dar labiau apsunkina baldų pasirinkimą ir jų išdėliojimą. Pradėkite nuo vaikų kambario. Iki tam tikro gyvenimo momento vaikams pakanka dviejų aukštų lovos. Tiesa, teks pakovoti dėl vietos viršuje. Du stalus geriau statyti prie lango, prireikus prie jų prijungiant palangę. Gali būti, kad esant tokiam baldų išdėstymui vaikai vienas kitą stumdys alkūnėmis. Tada geriau stalus statyti skirtingose kambario pusėse.
Jei durys į kambarį yra siauresnėje kambario pusėje, iš abiejų pusių nuo durų statykite pagal užsakymą pagamintas spintas su antresolėmis. Tokiu būdu kiekvienas vaikas turės savo spintą, o virš durų bus galima laikyti sudėtus šiltus drabužius ar papildomas pagalves ir antklodes.
Virtuvėje darbo zoną taip pat galima išplėsti įtraukiant palangę, jei tik yra tokia galimybė įvertinus jo aukštį. Jei svetainės dydis ir planas tinkami, vertėtų susimąstyti apie galimybę rinktis visavertę lovą tėvams, kurią būtų galima nuo nepageidaujamų žvilgsnių paslėpti po širma ar lentynomis. Sofos nebuvimas svetainėje kompensuojamas pora fotelių ir nedideliu staleliu prie lango.
Vėlgi svarbu nepamiršti būtinybės pasirūpinti daiktų laikymo vieta. Antresolės ir papildomos lentynos leis paslėpti visą daiktų perteklių.
Blokinių Namų Ypatumai
Lietuvoje, kur daugiabučių statybos technologijos per ilgus metus keitėsi, blokiniai namai užima svarbią vietą. Nors naujos statybos daugiabučiai pasižymi geresne kokybe, butų sandoriai senuose daugiabučiuose vis dar sudaromi. Šiame straipsnyje aptarsime blokinių namų ypatumus, privalumus ir trūkumus, taip pat pateiksime patarimų, kaip planuoti 2 kambarių butą tokiame name.
Remiantis Registrų centro duomenimis, Lietuvoje daugiausia stovi mūrinių daugiabučių - apie 22 tūkst. Tačiau blokinių daugiabučių taip pat nemažai - apie 7,5 tūkst. Vis tik pačiame Vilniaus mieste daugiabučių pasiskirstymas kiek kitoks nei visoje Lietuvoje. Sostinėje skaičiuojama daugiau blokinės (stambiaplokštės) statybos namų, nes, pasak T. S. Kvainicko, sovietmečiu tokių daugiabučių plėtra buvo didelė.
Blokinių namų statyba buvo greita, nes visi statybiniai elementai pagaminami gamykloje, o statybų aikštelėje tik surenkami. Vieną penkių aukštų blokinį daugiabutį gali sumontuoti penki žmonės, todėl darbo sąnaudos tokiam darbui žymiai mažesnės nei mūrinio namo statybai. Be to, stambiaplokščių namų blokus galima gaminti iškart su daline apdaila, išvedžiotomis instaliacijomis. Stambiaplokščių daugiabučių statybai įtakos neturi ir oro sąlygos, kadangi statybiniai elementai gaminami gamykloje, o ne statybų aikštelėje.
Blokinių Namų Trūkumai
Tačiau blokinių namų gyventojai dažnai susiduria su tam tikrais iššūkiais. Panagrinėkime juos detaliau.
Pagrindinis niuansas, kurį turėtų žinoti pirkėjai, yra garso pralaidumas. Prasčiausia garso izoliacija yra blokiniuose daugiabučiuose, kadangi juose panaudotos ganėtinai plonos konstrukcijos. Dėl šios priežasties blokinių daugiabučių gyventojai girdi kaimynų skleidžiamus garsus.
Visi senos statybos daugiabučiai, nepaisant to, iš kokios medžiagos jie pastatyti, turi sandarumo problemą. „Senuose daugiabučiuose niekada neturėsime sandarumo. O jeigu padarysim sandarumą, butai supelys, čia didžiausia problema ir buvo visuose daugiabučiuose, nesvarbu, jie mūriniai ar stambiaplokščiai“, - komentuoja A. Šneideris. Jis papildo, kad tuo metu, kai senos statybos daugiabučiuose buvo pradėti įstatyti plastikiniai langai, gyventojai ėmė skųstis butuose atsiradusiu pelėsiu ir drėgme. Pašnekovo teigimu, kitaip ir negali būti - mat minėtuose daugiabučiuose trūksta ventiliacijos.
KTU mokslininkė J. Černeckienė išskiria, kad vienas didžiausių blokinių namų trūkumų - didelės šildymo sąskaitos ir išbalansuota šildymo sistema: „Daugelyje blokinių pastatų buvo įrengiamos vienvamzdės šildymo sistemos, taip taupant ir darbo sąnaudas, ir metalą. Tokioje šildymo sistemoje butai yra priklausomi vienas nuo kito. Jeigu viename aukšte šildymo įrenginys buvo ne visai legaliai pakeistas, tai dažniausiai išbalansuoja viso namo gyvenimą.
Nekilnojamojo turto ekspertas M. Mikočiūnas taip pat atkreipia dėmesį, kad žmonės, norintys blokiniame name įsigyti būstą, turi pagalvoti ir apie didesnį nei 15 proc. pradinį įnašą imant būsto paskolą.
Galimos Problemos:
- Tarpblokinių siūlių nesandarumas
- Sieninių plokščių supleišėjimas, išporėjimas
- Stogo dangos nesandarumas
- Vidaus inžinerinių tinklų fizinis susidėvėjimas
- Inžinerinės įrangos, pavyzdžiui, liftų, nusidėvėjimas
Dėl šių priežasčių blokiniai namai yra energetiškai neefektyvūs - gyventojai suvartoja daug šilumos šaltuoju metų laiku, taip pat gali jausti diskomfortą dėl drėgmės, pastebėti skersvėjį, pelėsį.
Tačiau nereikia manyti, kad visi blokiniai namai yra blogi. Tinkamai prižiūrėtas blokinis namas gali stovėti ir ilgiau, o dauguma problemų yra apčiuopiamos ir pataisomos. Pavyzdžiui, visi taip bijo vadinamųjų siūlų ar mikroįtrūkimų blokiniuose namuose. Tačiau to galima išvengti apsaugant pastatą nuo atmosferos poveikio, korozijos. Aišku, labai padėtų šiltinimas. Jis apsaugotų siūles nuo drėgmės, korozijos, šalčio, lietaus.
VGTU profesorius J. sako: „Jeigu tinkamai prižiūrimos konstrukcijos, neperplanuojamos sienos, pastato medžiaga yra šimtametė. Betonas yra ilgaamžis, o stiprumo charakteristikomis niekuo nenusileidžia mūrui. Tačiau pastatą reikia prižiūrėti, reikia prižiūrėti sujungimo siūles, jas tvarkyti.“
Patarimai Planuojant Butą Blokiniame Name
Jei vis dėlto nusprendėte įsigyti 2 kambarių butą blokiniame name, svarbu atkreipti dėmesį į keletą dalykų. Pirmiausia, įvertinkite buto būklę, šildymo sistemą ir garso izoliaciją. Jei planuojate perplanavimą, svarbu žinoti, kurios sienos yra laikančiosios. Nelaikančiomis pertvaromis blokinių daugiabučių butuose paprastai būna atitverti tik sanitariniai mazgai, o visos kitos (kambarių) sienos dirba kaip laikančiosios konstrukcijos. Konkrečiu atveju gali būti išimčių, todėl visada verta kreiptis į specialistą.
Su sienomis blokiniame sovietiniame daugiabutyje reikėtų elgtis ypač atsakingai. Tokios konstrukcijos namas- lyg kortų namelis: sienos ir perdangos čia surinktos iš stambių gelžbetonio plokščių („kortų“), kurių dydis lygus visai kambario sienai ar viso kambario plotui. Plokščių viduje įbetonuota laikančioji armatūra yra lyg audinio siūlai, kuriuos nukirpus, audinys išyra. Skaudžiausia pasekmė būtų sukelti grėsmę viso pastato stabilumui ir gyventojų saugumui.
Visada yra didelė tikimybė, kad dėl kokių nors priežasčių laikančiųjų sienų griovimas bute bus pastebėtas ir užfiksuotas kaip administracinis pažeidimas. Baudos neišvengsite, o kartu gausite privalomą nurodymą per konkretų terminą parengti projektą, pristatyti krūvą dokumentų arba atkurti pirminę padėtį bute. Nemaloni pasekmė- nesutarimai su kaimynais ir priežastis rašyti skundus „grioviko“ adresu, jei dėl statybų sugadintumėte bendrą turtą arba atsirastų koks įtrūkimas gretimo buto sienoje su prabangia apdaila. Prireikus parduoti butą, tikrai susidursite su gaišatimi ir išlaidomis.

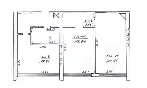
Pavyzdinis 2 kambarių buto planas blokiniame name Šilainiuose, Kaune. Šaltinis: Aruodas.lt
Kvalifikuoti statybininkai laikančiąsias konstrukcijas imsis griauti tik turėdami projektą. Pasitelkę architektą buto perplanavimui, iš anksto žinosite, kad kertamos angos numatytos tinkamo dydžio, teisingoje vietoje, be reikalo neišlaidausite statybinėms medžiagoms (metalas sąramoms kainuoja!), dar projektavimo stadijoje įsitikinsite, kad visi svarbūs daiktai ir prietaisai bute sutilps, nes gausite naujų buto erdvių planą su baldais. Šiame etape žmonės nustemba, koks patogus ir talpus gali tapti jų butas, kai jį planuoja specialistas.
Minimalaus paslaugų paketo kaina- 1180 eur (atnaujinta 23.01.02.). Už tai gaunate reikalingos ekspertizei ir statybai apimties buto kapitalinio remonto projektą bei būtiniausias papildomas paslaugas. Projektas su galimų išplanavimo variantų paieška- 20-30 proc. brangesnis. Papildomai galite užsisakyti buto 3D modelį, kad aiškiau įsivaizduotumėte, ar erdvė Jums tinka.
Statybos darbų pridavimo procedūros nėra, jei darbai buvo suplanuoti ir atliekami tik buto viduje, nekeičiant namo išorės.
Pavyzdinis 2 Kambarių Buto Skelbimas
Parduodamas pilnai įrengtas 2 kambarių butas Šilainiuose, J.Grušo g. Butas prižiūrėtas, tvarkingas, vidinis. Butui priklauso rūsys. Yra įstiklintas balkonas. Parduodamas su visais baldais ir buitine technika. Nemokama parkavimosi aikštelė prie namo. Šalia namo - daug žalumos, vaikų žaidimų aikštelių. Puiki infrastruktūra - netoliese prekybos centrai, poliklinika, sporto klubai, mokyklos ir darželiai. Strategiškai patogi vieta užtikrina paprastą ir patogų susisiekimą.
Bendra informacija:
- Plotas: 50,12 m².
- Kambarių sk.: 2.
- Aukštas: 6 iš 9.
- Namas: blokinis.
- Statybos metai: 1989.
Išplanavimas:
- Holas: 4,79 m².
- Sandėlis: 1,43 m².
- Kambariai: 17,08 m² ir 11,66 m².
- Koridorius: 4,40 m².
- Virtuvė: 7,22 m².
- Vonios kambarys: 2,53 m².
- WC: 1,01 m².
Komunikacijos:
- Elektra: miesto.
- Vanduo ir nuotekos: miesto.
- Šildymas: centrinis.
Privalumai:
- Kosmetinis remontas atliktas 2023 m.
- Butas vidinis, šiltas.
- Įstiklintas balkonas.
- Šarvuotos durys.
- Parduodamas su baldais ir buitine technika.
- Kodinė laiptinės spyna.
- Erdvi automobilių stovėjimo aikštelė prie namo.
- Šalia daug žalumos ir vaikų žaidimų aikštelė.
Kaina: 115,000 € (2,294.49 € / m2)
Šis pavyzdys iliustruoja, kokį 2 kambarių butą galima rasti blokiniame name. Svarbu atkreipti dėmesį į išplanavimą, plotą ir privalumus, taip pat įvertinti savo poreikius ir galimybes.
Kainos Panašiuose Butuose Kaune:
| Adresas | Plotas (m2) | Aukštas | Kaina (€) | € / m2 |
|---|---|---|---|---|
| Šarkuvos g., Šilainiai | 49.77 | 6/9 | 115,000 | 2,311 |
| Rasytės g., Šilainiai | 49.78 | 2/5 | 121,900 | 2,449 |
Šie duomenys rodo, kad 2 kambarių buto kaina blokiniame name Kaune gali svyruoti priklausomai nuo lokacijos, aukšto ir būklės.

Top 100 Modern Wardrobe Designs 2025 | Stylish Bedroom Closets, Sliding Cupboards & Storage Ideas
Atsižvelgiant į tai, kad apie 300 tūkst. vilniečių gyvena sovietmečiu statytuose namuose, o dalis jų - blokiniai, kurių būklė tik patenkinama, svarbu žinoti šių namų ypatumus ir galimus iššūkius.