Šiandieniniame sparčiai besikeičiančiame pasaulyje, kai didmiesčių gyventojų skaičius nuolat auga, efektyvus ir patogus būsto išplanavimas tampa vis svarbesnis. Vienas iš populiariausių pasirinkimų yra dviejų kambarių butas, kurio plotas siekia apie 36 kvadratinius metrus. Toks būstas puikiai tinka tiek vienam žmogui, tiek jaunai porai, ieškančiai funkcionalaus ir jaukaus gyvenamojo ploto. Šiame straipsnyje aptarsime, kaip optimaliai išnaudoti 36 kv.m buto erdvę, kokie interjero dizaino sprendimai padės sukurti patogią ir stilingą aplinką, bei kokie aspektai svarbūs planuojant būsto įrengimą.

Funkcionalus išplanavimas - patogaus gyvenimo pagrindas
Planuojant 36 kv.m buto išplanavimą, svarbiausia atsižvelgti į gyventojų poreikius ir gyvenimo būdą. Erdvė turi būti maksimaliai išnaudota, neaukojant patogumo ir funkcionalumo. Štai keletas patarimų, kaip tai padaryti:
- Atviro tipo erdvė: Virtuvės sujungimas su svetaine yra puikus sprendimas mažam butui. Tokiu būdu sukuriama didesnė ir šviesesnė erdvė, kurioje patogu gaminti, valgyti ir leisti laiką su svečiais.
- Atskira miegamojo zona: Net ir mažame bute svarbu turėti atskirą miegamojo zoną, kurioje galima ramiai pailsėti. Miegamąjį galima atskirti pertvara, užuolaida ar stumdomomis durimis.
- Daugiafunkciniai baldai: Rinkitės baldus, kurie atlieka kelias funkcijas vienu metu. Pavyzdžiui, sofa-lova, stalas-transformatorius ar lova su daiktadėže.
- Vertikalios erdvės išnaudojimas: Išnaudokite sienas daiktų laikymui. Montuokite lentynas, spinteles iki pat lubų.
- Minimalizmas: Venkite perkrauti erdvę nereikalingais daiktais. Laikykitės minimalizmo principų, kad butas atrodytų tvarkingas ir erdvus.

Interjero dizaino sprendimai mažam butui
Interjero dizainas yra svarbus ne tik estetiniu, bet ir funkciniu požiūriu. Tinkamai parinktos spalvos, apšvietimas ir dekoratyviniai elementai gali vizualiai padidinti erdvę, sukurti jaukią atmosferą ir pabrėžti individualų stilių. Štai keletas interjero dizaino patarimų, skirtų 36 kv.m butui:
- Šviesios spalvos: Šviesios spalvos atspindi šviesą ir vizualiai didina erdvę. Rinkitės baltą, smėlio, šviesiai pilką ar pastelines spalvas.
- Veidrodžiai: Veidrodžiai yra puikus būdas vizualiai padidinti erdvę. Pakabinkite didelį veidrodį ant sienos arba įmontuokite veidrodines duris į spintą.
- Apšvietimas: Apšvietimas turėtų būti įvairus ir funkcionalus. Naudokite pagrindinį apšvietimą, vietinį apšvietimą ir dekoratyvinį apšvietimą.
- Tekstilė: Rinkitės lengvus ir natūralius audinius. Venkite sunkių užuolaidų ir didelių raštų.
- Augalai: Augalai suteikia erdvei gyvybės ir jaukumo. Įdėkite kelis augalus į vazonus arba pakabinkite vertikalų sodą ant sienos.

Keturios sienos. Butas, kurį gali nuomotis ne kiekvienas: dvelkia prabanga ir elegancija
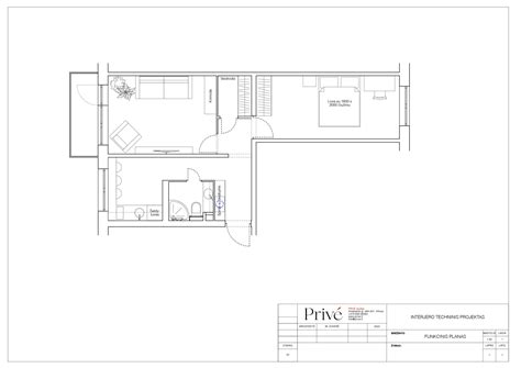
Pavyzdinis 36 kv.m buto išplanavimas Pašilaičiuose
Pašilaičiuose, Vilniuje, parduodamas funkcionaliai išplanuotas, jaukus ir šiltas 36 kv.m ploto dviejų kambarių butas. Šis butas yra puikus pavyzdys, kaip galima patogiai gyventi mažoje erdvėje. Butas yra pilnai įrengtas, parduodamas su baldais ir buitine technika. Būstas orientuotas į pietų ir vakarų puses, todėl į jį patenka daug natūralios šviesos. Ekonomiška šildymo sistema užtikrina itin mažas šildymo sąskaitas.
Pagrindiniai buto duomenys:
| Parametras | Reikšmė |
|---|---|
| Bendras plotas | 36,27 kv.m |
| Kambarių skaičius | 2 (su atskiru miegamuoju) |
| Aukštas | 5 iš 6 |
| Šildymas | Centrinis-kolektorinis |
Šis butas yra puikus pasirinkimas tiek asmeniniam gyvenimui, tiek investicijai nuomos veiklai. Aplinkui gerai išvystyta infrastruktūra, patogus susisiekimas su kitais miesto rajonais.