Jei mėgstate pats tvarkyti savo automobilį arba turite mažas dirbtuves, greičiausiai svarstote įsigyti keltuvą, o gal net įsirengti savitarnos garažą. Norisi pigiau pataisyti automobilį? Didelės eilės autoservise? Patinka meistrauti pačiam?
Šiame straipsnyje aptarsime, kaip tinkamai įrengti garažą, kad jis būtų patogus ir saugus automobilių remonto darbams.
Garažo spintos ir baldai
Garažo spintos - tai specializuotos spintos, pritaikytos įvairaus dydžio reikmenims, įrankiams ir įrangai laikyti. Naudojant garažo baldus, sandėliavimo spintą ir įvairias lentynas, galima lengvai palaikyti tvarką patalpose, palengvinti daiktų paiešką ir užtikrinti jų saugumą.
Garažo spinta turi dvejopą naudą. Pirmoji yra orientuota į garažo savininką sukuriant jam patogią ir saugią darbo aplinką. Garaže dažnai būna vėsu ir drėgna, taip pat čia yra nemažai dulkių. Blogos sandėliavimo sąlygos ne tik pagreitina daiktų dėvėjimąsi, bet ir gali juos nepataisomai sugadinti. Spintos padeda kurti darbui saugią aplinką.
Garažo baldai su durelėmis tobulai tinka laikyti įvairius aštrius daiktus ir įrankius, chemikalus ir degius skysčius. Garaže yra įvairaus tipo daiktų, skirtų automobilio remontui, aplinkos priežiūrai, kenkėjų naikinimui ir kitiems ūkio darbams atlikti. Sugrupuoti, į atskiras sekcijas sudėti įrankiai bei prietaisai yra žymiai greičiau ir paprasčiau randami.
Dauguma garažo spintų turi reguliuojamas lentynas, kurios padeda sekcijų aukštį pritaikyti skirtingo dydžio prietaisams. Dažniausiai garažo baldai yra pagaminti iš metalo arba plastiko. Nerūdijančio plieno arba aliuminės spintos ir lentynos yra atsparios drėgmei, todėl nerūdija. Temperatūros svyravimas neturi poveikio baldų savybėms, todėl net ir po ilgo laiko garažo spinta išlieka tvirta ir stabili.
Turint skirtingus garažo baldus galima sukurti funkcionalią erdvę, kurioje daiktai bus sugrupuoti ir laikomi pagal tam tikrus kriterijus. Garažo spinta su durelėmis ir reguliuojamomis lentynomis užtikrins saugų elektrinių prietaisų laikymą ir prailgins jų tarnavimo laiką. Taip pat čia lengvai savo vietą atras įvairūs plaktukai, grąžtai, pjūklai ir kiti aštrūs bei sunkūs įrankiai, kuriuos geriau laikyti atokesnėje ir sunkiau prieinamoje vietoje.
Sandėliavimo spinta ypač pravers šluotų, kastuvų, grėblių, laistytuvų ir kitų nestandartinių dydžių sodo įrankių laikymui. Automobilio remontas ir priežiūra tampa žymiai paprastesnė, kai visos tam reikalingos priemonės yra vienoje vietoje. Tokiu būdu paprasta dirbti, stebėti ir papildyti atsargas, kurios yra būtinos tinkamai paruošti automobilį eksploatacijai. Tinkamai laikomos įvairios cheminės medžiagos, skysčiai ir valymo priemonės yra apsaugotos nuo išsiliejimo ir aplinkos užteršimo. Varžtai, vinys, veržlės, sraigtai ir kiti smulkūs komponentai yra labai birūs, todėl būtina užtikrinti tinkamas jų laikymo sąlygas.
Automobiliniai keltuvai
Jei mėgstate pats tvarkyti savo automobilį arba turite mažas dirbtuves, greičiausiai svarstote įsigyti keltuvą. Bet kokį pasirinkti - koloninį ar žirklinį?
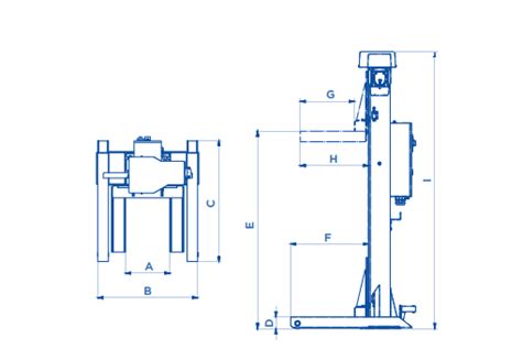
Koloninis keltuvas
Koloninis keltuvas - tai keltuvas, turintis dvi ar keturias kolonas, kurios pakelia automobilį į norimą aukštį.
Koloninio keltuvo privalumai:
- Didelė keliamoji galia. Koloniniai keltuvai puikiai tinka kelti sunkesnius automobilius, visureigius ar mikroautobusus.
- Patogi prieiga prie automobilio apačios.
- Universalumas. Juo galite kelti įvairaus dydžio ir tipo automobilius - nuo mažo lengvojo automobilio iki didesnio visureigio.
- Mažiau vietos užimantis įrenginys. Koloninis keltuvas užima mažiau vietos, tad jis puikiai tinka mažiems garažams. Tiesa, šis požymis labiau būdingas dviejų kolonų keltuvams.
Svarbu paminėti, kad yra du pagrindiniai koloninių keltuvų tipai pagal sujungimo būdą: su sujungimu per viršų ir su sujungimu per apačią. Jų keliamo aukščio diapazonas labai panašus, tačiau jei keltuvų sujungimas yra per viršų, tuomet keliant aukštą transporto priemonę, pavyzdžiui, džipą - negalėsite išnaudoti viso kėlimo aukščio.
Koloninio keltuvo trūkumai:
- Sunkesnis montavimas. Kadangi koloninis keltuvas turi būti tvirtai pritvirtintas prie grindų, jo montavimas gali reikalauti daugiau laiko ir pastangų.
- Reikalingas tinkamas grindinio paruošimas. Koloninis keltuvas turi turėti tvirtą ir gerai paruoštą pagrindą, dėl ko reikia grindinį perkasti ir betonuoti.

Žirklinis keltuvas
Žirklinis keltuvas - tai keltuvas, kuris veikia žirklinio mechanizmo principu.
Žirklinio keltuvo privalumai:
- Kompaktiškumas.
- Ant žirklinio keltuvo patogiau užvažiuoti, nereikia statyti letenų, paprastesnis ir spartesnis automobilio pakėlimas.
- Žirklinis keltuvas, priešingai, yra lengviau įrengiamas, bet taip pat reikia įsitikinti, kad grindys yra lygios ir tvirtos.
Žirklinio keltuvo trūkumai:
- Įprastai žirklinis keltuvas užima nemažai vietos, todėl jis dažniausiai tinka tik tiems garažams, kuriuose yra pakankamai erdvės.
- Ribota keliamoji galia. Šio tipo keltuvas nėra tinkamas sunkiems automobiliams.
- Ribota prieiga prie automobilio apačios.
- Tinkamas kasdieniams remonto darbams.

Kaip pasirinkti tinkamą keltuvą?
Prieš įsigydami keltuvą, atsakykite į šiuos klausimus:
- Kokius darbus planuojate atlikti? Dviejų kolonų keltuvai turi daug atviresnę prieigą prie transporto priemonės dugno.
- Ar turite pakankamai vietos? Jei jūsų garažas didelis, koloninis keltuvas bus patogesnis ir suteiks daugiau galimybių dirbti su įvairiais automobiliais.
- Koks jūsų automobilis?
- Prieš įsigydami keltuvą, apsvarstykite montavimo galimybes. Koloniniam keltuvui gali prireikti profesionalo pagalbos, kad jis būtų tinkamai pritvirtintas prie grindų.
Pasidomėkite, ar įmonė, iš kurios ketinate pirkti keltuvą, teikia montavimo paslaugas. Kalbant apie priežiūrą, abu keltuvų tipai reikalauja periodiškos priežiūros. Kai kurie keltuvai turi papildomų funkcijų, pavyzdžiui, ratų tvirtinimo sistemas, saugos užraktus ar apšvietimo sistemas.
Keltuvas - tai didelė investicija, todėl svarbu pasirinkti tinkamą.
Savitaros garažas
Jei neturite galimybės įsirengti savo garažo, galite pasinaudoti savitarnos garažo paslaugomis.
SAVITARNOS GARAŽAS (VERKIŲ G.). Mėgaukitės kokybišku remontu pilnai įrengtoje erdvėje.
Savitarnos garažo ypatumai:
- Gabaritai: Vartų aukštis ~1.90 m (autobusiukai netelpa).
- Atliekos: Tepalus, filtrus ir skysčius nuomininkas išsiveža pats.
- Švara: Po darbo garažą būtina susitvarkyti.
20 svarbiausių taisyklių atidarant autoservisą | Būtina žinoti verslo gudrybes
Teisiniai aspektai
Planuojant garažo statybą ar įrengimą, svarbu atsižvelgti į teisinius aspektus. Rekomenduojama susisiekti su vietos savivaldybe arba statybos inspekcija, kuri gali pateikti tikslias ir detalesnes rekomendacijas, atsižvelgdama į vietos teritorijų planavimo dokumentus ir galiojančius teisės aktus.
Pavyzdžiui:
- Pagalbinio ūkio statiniai (pvz., pirtis, sandėliai, svirnas): šių statinių bendras plotas per vieną sklypą gali būti iki 50 kv. m.
- Žemės ūkio paskirties pastatai (pvz., ūkininko namas), jei jie yra būtini ūkininkavimo veiklai, taip pat gali būti sodybos statiniai.
tags: #garazo #aukstis #automobiliu #remontui