Namų projektai iki 100 m2 - dažnas jaunų šeimų, turinčių arba planuojančių turėti 1-2 vaikus, pasirinkimas. Taip pat, namo projektas iki 100 m2 tinkamas ir vyresniems žmonėms, išleidusiems vaikus į gyvenimą. Jie pakeisdami didesnį būstą į mažesnį, pasilieka puikią galimybę gyventi nuosavame name ir naudotis jo teikiamais privalumais.

Kodėl verta rinktis namo projektą iki 100 kv.m?
Labai svarbus faktorius jaunoms šeimoms pasirenkant projektą iki 100 m2, o ne butą - nuosavas sklypas ir jo teikiami privalumai. Gyvenant su vaikais name, atsiranda papildoma erdvė šeimai turiningai leisti laiką lauke. Vaikai gali saugūs žaisti tvarkingoje aplinkoje, daugiau laiko praleisti gryname ore. Lauko terasa - jauki vieta smagiems pavakarojimams su šeima ar draugais.
Projektus iki 100 m2 mėgsta žmonės, kurie vertina tvarius sprendimus, pasisako už saikingą vartojimą, kuriems rūpi Žemės klimato atšilimo klausimai. Statydami iki 100 kv.m. namą sunaudosite optimalų medžiagų kiekį namo statybai.
Dažnai namų projektus iki 100 kv. m. pasirenka jaunos šeimos, kurios atsiradus vaikams pradeda dairytis didesnio nei butas būsto. Butų kainos šiuo metu didmiesčiuose ypač Vilniuje didelės, pvz.: jei šeima nori atskirų kambarių dviem vaikams, tuomet naujo buto kaina prilygsta mažo namo mažame sklype kainai. Ieškant didesnio ploto šeimai, dažnai svarstomas namo statybos variantas.
Kartais dėl mažo sklypo ir kitų ribojimų namų projektai iki 100 kv.m. pasirenkami ir tankiai apgyvendintose, aukštesnės klasės rajonuose esančiuose arčiau miesto centro ar miesto centrinėje dalyje. Tuomet tiek namo eksterjero, tiek interjero sprendimai ir medžiagos turėtų atitikti sklypo klasę, t.y. ir moderniai. Iš priekio namas gali niekuo neišsiskirti. Namo spalva yra jauki ir niekuo neišsiskirianti. galima matyti ne itin didelius langus. ir šeimyniškas. Visgi, iš galo namas atrodo visiškai kitaip. didelę dalį namo galo sudaro langai. tobulai derantys prie namo spalvų bei dizaino. prideda ir erdvi terasa. namą padaro moderniu.
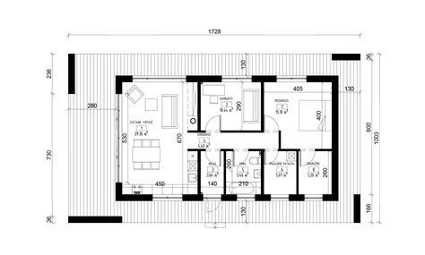
Parduodamas naujas 100 kv .m namas Pavilnyje, Vilniuje
Svarbūs aspektai planuojant statybas
Namo statybą patariame pradėti nuo savo galimybių biudžeto išsiaiškinimo ir jo planavimo. Visą tai labai svarbu atlikti dar pasirenkant ir įsigyjant sklypą. Dauguma namą stato naudodamiesi kredito įstaigų paslaugomis. Kreipkitės į jas, kad išsiaiškintumėte savo galimybes dar prieš pasirenkant sklypą.
Pirmieji svarbūs žingsniai statybai - tai geras pasiruošimas joms - piniginių srautų planas, statybos darbų planas ir tinkamai parinkta statybas vykdysianti komandą.
Jei statote mūrinį, ekonominį iki 100 kv.m. namą, ko gero brangu bus samdyti statybą valdančią įmonę, nes namo statybos valdymo kaštai yra panašaus dydžio tiek mažam, tiek dideliam namui. Ekonominius iki 100 m2 namus, esančius toli užmiestyje arba mažesniuose miesteliuose, kur sunku rasti tinkamos darbo jėgos, siūlome statyti ne mūrinius, o rinktis skydinių, sip tipo namo konstrukcijas.
Projektų katalogai ir sąmatos skaičiuoklės
Jei renkatės projektą iš mūsų projekto katalogo bus paprasta preliminariai sužinoti, kiek kainuos jūsų namo statyba. Projektų kataloge pasirinkę projektą po jo vizualizacijomis paspaudę mygtuką „Skaičiuoti sąmatą šio projekto pagrindu“ galėsite suskaičiuoti namo sąmatą.
Labai svarbu, pasirinkus keletą patinkančių nuosavų namų projektų, kurių namų išplanavimai jums tinkami, susiskaičiuoti preliminarią jų statybos sąmatą ir pasitikrinti ar nenukrypstate nuo suplanuoto biudžeto statybai. Namukainos.lt projektų kataloge visi esantys individualių namų projektai yra surišti su sąmatos skaičiuokle, todėl pasirinkę norimą projektą ir paspaudę mygtuką „Skaičiuoti sąmatą šio projekto pagrindu“ keisdami nuo projekto nepriklausančias namo apdailos, inžinerinių sistemų ir kitas dedamąsias, galėsite greitai suskaičiuoti kiek kainuoja namo statybos, gauti sąmatą. Norit ją pakoreguoti, galite pakeisti savo pasirinkimus ir gauti vis naujas sąmatas tiek kartų, kiek keisite savo pasirinkimus.
Kartotiniai ir individualūs projektai
Projekto kaina susideda iš kelių dalių: namo architektūrinės ir konstrukcinės dalies. Kartotiniai-tipiniai individualių namų projektai palyginti pigus sprendimas nei individualus projektavimas. Įsigijus kartotinį projektą statybas galėsite pradėti greičiau. Perkant kartotinį projektą labai svarbu įsigilinti, kas įeiną į projekto kainą, ar parduodami namų projektai su statybos leidimu, kokie darbai kainuoja papildomai ir kiek.
Jei nepavyksta planas rasti tinkamą kartotinį projektą, galite užsisakyti individualaus namo projektą. Architektas atsižvelgdamas į jūsų individualius poreikius vidaus planavimui ir išorės architektūrai, įvertinęs jūsų sklypą, suprojektuos jums tinkamą projektą. Individualus projektavimo kainos skiriasi, kaip ir skirtingai gali kainuoti kartotinis namo projektas. Jos priklauso nuo architektų kompetencijos, patirties, projektuojamo namo dydžio ir sudėtingumo.
Jei patiems sunku iki galo išsiaiškinti ir suprasti sklypo galimybes, visada galite kreiptis į jums patinkančio kartotinio projekto architektą, kuris pagal sklypo dokumentus patikrins ar norimas namas telpa ir tinkamai įsikomponuoja jūsų sklype. Atkreipiame jūsų dėmesį, kad kartotiniai projektai pritaikant prie sklypo gali būti konvertuojami veidrodiniu principu, taip pat vidaus patalpos, neliečiant laikančiųjų sienų, gali būti lengvai transformuojamos ir pan., todėl architekto konsultacija yra geriausias sprendimas efektyviai išsiaiškinti, ar patinkantys kartotiniai projektai gali būti papildomai pakeisti ir pritaikyti jūsų poreikiams, ir sklypo specifikai.
A++ klasės namų projektai
A++ ir A+ klasės namų projektavimo kaina, t.y. projektų kaina nesiskiria. Namo projektai A++ klasės pasižymi tuo, kad pirminės energijos sąnaudos privalo būti būti iš atsinaujinančių energijos šaltinių (saulės elektrinės, vėjo, hidro energijos, biokuro ir kt).
Tendencijos ir pasirinkimai
Pastebime tendencijas, kad modernius kartotinius namus žmonės renkasi, kurie bus statomi miesto vietovėse arba naujuose kvartaluose. Klasikiniai vienšlaičiai ar dvišlaičiai namai su mansarda labiau mėgstami žmonių, norinčių įsikurti toliau nuo miesto. Atitinkamai ir namo dydį dažniausiai sąlygoja vieta, kurioje planuojama namo statybą. Mažesni, ekonomiško tipo namai pasirenkami užmiesčio, kaimo teritorijose. Prabangių namų statyba užmiestyje būtų nelabai racionalus sprendimas, nebent sklypas yra išskirtinės vertės vietoje, pvz. prie ežero ir pan.
Kiti projektai
NP5 bendrovė savo klientams siūlo tiek planinius, tiek fasadinius kartotinio vieno aukšto namo projekto pakeitimus atsižvelgiant į užsakovo norus. Architektai ir projektuotojai kiekvieną pastatą kuria unikalų ir tarnaujantį Jums savo paprastumu, universalumu, tikslumu, inovatyvumu ir efektyvumu. Profesionalių specialistų komandos parengti vieno aukšto namų projektai 2019 m., 2020 m. ar ankstesniais laikotarpiais - yra ypač skirtingi ir įvairūs. Nuo labai modernaus, sutapdintu stogu, stogine automobiliui ir didele terasa vieno aukšto namo, kurio dviejuose fasaduose į terasą ir vidinį kiemą suprojektuoti dideli langai, taip pat užtikrinamas visiškas atitikimas A++ klasės energinio efektyvumo reikalavimams. Iki išraiškingų architektūrinių formų, šlaitinių stogų, didelės kvadratūros, erdvių kambarių namų.
Siekiame pasitikėjimu ir skaidrumu grįsto santykio su klientu, todėl mūsų kainodara ypač aiškiai apibrėžta. Kartotiniai vieno aukšto namo projektai jau turi preliminarias sąmatas, tačiau galutinės priklauso nuo daugybės veiksnių: pastato ploto, projekto parengimo termino, užsakovo išskirtinių pageidavimų, naudojamų gamybos ir statybos technologijų, išorės ir vidaus apdailos medžiagų ir kitų susijusių veiksnių. Norėdami sužinoti, kokia Jūsų planuojamo namo projekto parengimo kaina, kreipkitės į mus.
Ekonomiški, pigūs paprasti ir jaukūs dviejų namų projektai. Pastatai tasyklingos stačiakampės formos. Pastatas dengiamas ketrušlaičiu stogu. Tai suteikia pastatui klasikinį siluetą. Pastato konstruktyvinė schema iš trijų lygiagrečių nešančiųjų sienų, todėl stogo kraigas gali būti paprastai atremiamas ant vidurinės nešančiosios sienos neįrenginėjant papildomų atraminių konstrukcijų. Pastato fasadai dvisluoksniai, didesnioji fasado dalis tikuojama. Fasado vietos, kuriuose bus didžiausi mechaniniai poveikiai numatoma klijuoti klinkerine apdaila.
Šiuolaikiški, racionalaus išplanavimo, patogūs gyventi gyvenamieji namai iki 120 m2, tinkantys 4-5 asmenų šeimai namų projektai. Parašykite paklausimą ir sulauksite konkrečių pasiūlymų iš 89 specializuotų įmonių. Projektas Laimonas - tai puikus pasirinkimas dviejų - keturių asmenų šeimai. Tai nedidelio ploto, paprastų konstrukcijų ir nesudėtingos statybos namas. Pasižymi ekonominiu išlaikymu, ilgaamže...
Modernus 1 aukšto medinio karkaso 105m2 namo projektas. Namo projekto išskirtinumas - visos erdvės su vitrininiais langais. 3 erdvūs miegamieji, svetainė ir 2 vonios kambariai. Stogas - plokščias. ... Modernus 1 aukšto medinio karkaso 119m2 namo projektas. Namo projekto išskirtinumas - visos erdvės su vitrininiais langais. 2 erdvūs miegamieji, erdvi virtuvė, valgomasis ir svetainė, taip pat...
Projektas Smilte tai klasikinis, nebrangios statybos namas, skirtas jaunai šeimai. Name rasite erdvią virtuvės ir svetainės zoną iš kurios tiesioginis išėjimas į jaukią ir erdvią terasą.... Medinio karkaso 85m2 namo projektas. Šis namo projektas yra vieno aukšto su erdve svetaine, terasa ir dviem miegamaisiais kambariais. Stogas dvišlaitis. Šių namų privalumai: - unikali...
Pristatome subtilų, skandinaviškos architektūros, vieno aukšto namo projektą Benas. Namas puikiai tiks tiek mažai, tiek didesnei šeimai. Beno plane suprojektuoti trys erdvūs miegamieji kambariai.... Racionalaus išplanavimo, patogus, vieno aukšto gyvenamasis namas. Nedidelio ploto - 120.96 m² bendras plotas, bet yra visos būtiniausios patalpos: tamburas, drabužinė, katilinė, virtuvė, didelis...
Vaidotas. Mažo namo projektas skirtas keturiems gyventojams. Garažą galimą įrengti vietoje stoginės. Ekonomiškiausia statyba iš visų mūsų projektų. Bendras plotas ... Pristatome šiuolaikišką, skandinaviško stiliaus namo projektą Ieva. Puikiai tinkamas 2-4 asmenų šeimai. Namas nedidelio ploto, tačiau su erdvia svetaine ir židiniu. Mėgstate šviesius, nedidelius...
Individualaus gyvenamojo namo medinio karkaso 99m2 namo projektas. Namas projektuojamas su dvišlaičiu stogu, 2 aukštų su vitrininiais langais abiejuose aukštuose. Pirmame aukšte erdvi virtuvė su... Dviejų aukštų namo projektas Agneta bus geras pasirinkimas keturių asmenų šeimai. Ypač svarbią dalį šiame kartotiniame gyvenamojo namo projekte užima erdvi svetainė (net 30.68 kv.m). Namo...
Vieno buto gyvenamasis namas, su trim miegamaisiais, skirtas gyventi 3-5 asmenų šeimai. Tradicinės architektūros, nebrangios statybos, nesudėtingų konstrukcijų namas, kuris atitinka šiuo metu keliamus... Namas „Džiazas" - tai modernus šiuolaikiškas namas ieškantiems taisyklingų formų ir kokybiškų sprendinių. Namo eksterjero sprendiniai įtiks tiek jaunam, tiek ir brandžiam šeimininkui,...
Artūras populiariausios architektūros kūrinys, patiks vertinantiems mažus, jaukius namus. Trys miegamieji tiks vidutinio dydžio šeimai. Drabužinė suteiks komforto, padeda išvengti spintų kambariuose.... Ekonomiškas, patogus gyventi, vieno aukšto gyvenamasis namas 4 asmenų šeimai. Svetaine, virtuve, sandeliukas, 3 miegamieji, rūbinė, vonios kambarys, sanitarinis mazgas, pavėsinė dviems automobiliams....
Pristatome kompaktišką, nedidelio ploto namo projektą. Viso - 98kv.m. Tai puikus pasirinkimas jaunai šeimai, skirtas 2-4 asmenims. Taip pat puikus pasirinkimas tiems, kurie turi mažą sklypą. ... Gyvenamasis namas "Uola" pasižymi plano kompaktiškumu ir švaromis formomis. Namas puikiai tiks sklypui prie judrios, triukšmingos gatvės, nuo kurios norisi atsitverti. Namas yra lankstus tiek savo...
Vieno aukšto, kompaktiškas gyvenamasis namas. Skirtas įsikurti nedidelei šeimai su vienu - dviem vaikais. Svetainė ir virtuvė specialiai suprojektuotos vienoje, ne itin didėlėje erdvėje. Čia... Rūta paprastos konstrukcijos, nedidelio ploto namas, kuriame numatytos tik būtiniausios patalpos, reikalingos vidutinio dydžio šeimynai. Šiame name galėtų įsikurti vidutinio dydžio šeima. Svetainė...
Išskirtinės architektūros gyvenamasis namas leis džiaugtis kaimynų ir praeivių susižėjusoaos žvilgsniais. Pastato plotas nedidelis, numatytos tik pačios reikalingiausios patalpos. Vonia erdvi,... Mažo ploto, paprastas ir ekonomiškas. Tinka statyti tiek mieste, tiek kaime. Ypač jaukiai įsikompnuotų nedideliame sklype. Namelyje numatyti du miegamieji, patogi vonia ir jauki svetainės - virtuvės...
Tai itin ekonomiškas, kompaktiškas namukas, geriausiai atitinkantis poros be vaikų poreikius, kuomet vaikai jau dideli, išsilakstę po pasaulį ir atvyksta aplankyti tėvų savaitgaliais. Palėpėje... Tai šiuolaikiškas skandinaviško tipo sodybos projektas. Pagrindiniai bruožai: - gali būti 1 auksto arba su mansarda/antresole; - pirmas aukštas: 105m2 bendrojo ploto; - mansarda: 42m2 bendrojo...
Kuklus vieno aukšto namukas puikiai komponuojasi ir nedarko landšafto. Optimalus patalpų išplanavimas, maži statybos kaštai ir greitas įrengimas. Genialumas paprastume. Gyvenamas plotas: 59.33... Gyvenamasis namas „Miškas" - tai tradicinių formų ir naujų idėjų mišinys. „Miškas" pasižymi plano kompaktiškumu, atviromis erdvėmis ir švaromis formomis. Namas yra lankstus tiek savo dydžio,...
Pastebėjome, kad dažnas gyvenamojo namo projekto pasirinkimą pradeda nuo vizualinės dalies, t.y. kokia architektūra labiausiai patraukia akį, toliau nagrinėjamas namo planas: kambarių dydžiai, kiekis ir išdėstymas. Išties labai svarbu suprasti, kas jums yra gražus namas ir pasirinkti patinkančią namo architektūrinę išraišką, tačiau prieš tai reikėtų išsiaiškinti kokio dydžio ir formos namas tilps ir yra tinkamiausiais jūsų turimame sklype. Siūlome įsigilinti į savo sklypo galimybes t.y. užstatymo tankį, intensyvumą, aukštingumą, taip pat kitus sklype esančius apribojimus, servitutus, žinoti reikiamus nuo sklypo ribos išlaikyti atstumus. Taip pat nepamirškite, jog reikia įvertinti įvažiavimo į sklypą vietą, ne tik sklypo orientaciją pasaulio šalių atžvilgiu, bet atskirai ir kiekvieno kambario.
tags: #gyvenamasis #namas #100kv #su #balkonu