Bendrasis plotas yra vienas svarbiausių rodiklių, nustatant nekilnojamojo turto vertę ir tinkamumą. Šiame straipsnyje aptarsime, kaip skaičiuojamas bendrasis plotas įvairiuose pastatuose ir butuose Lietuvoje, pateiksime praktinių pavyzdžių ir patarimų.

Bendras ir Naudingas Buto Plotas: Kuo Jie Skiriasi?
Renkantis būstą, svarbu atkreipti dėmesį ne tik į kainą, bet ir į tai, kas įeina į bendrą ir naudingą plotą. Šie du rodikliai yra skirtingi ir gali turėti įtakos mokesčiams bei pačios gyvenamosios erdvės suvokimui. Išnagrinėsime, kuo skiriasi bendras ir naudingas buto plotas, remiantis Lietuvos Respublikos teisės aktais ir reglamentais.
Pagal Statybos techninio reglamento STR 1.05.06:2010 „Statinio projektavimas“ 2 straipsnio 6.10 papunktį:
Pastato bendras plotas - visų patalpų ir jų priklausinių (balkonų, lodžų, ant stogo numatomų terasų, verandų ir kitų priklausinių) plotų suma, m2. Į bendrą plotą neįskaitomas uždarų laiptinių, atvirų ar pusiau atvirų laiptinių laiptotakių ir tarpinių aikštelių, liftų šachtų plotas.
Tuo tarpu, 6.11 papunktis apibrėžia:
Pastato naudingas plotas - visų šiltomis atitvaromis atitveriamų ar atitvertų patalpų plotų suma, m2.
Apibendrinant, galima teigti, kad į bendrą plotą įeina visos buto patalpos ir jų priklausiniai, o į naudingą - tik tos patalpos, kurios yra apšildomos ir atitvertos.
Pagal Statybos techninio reglamento STR 2.02.01:2004 „Gyvenamieji pastatai“ 4.12 punktą:
Būsto naudingasis plotas - gyvenamųjų kambarių ir kitų būsto patalpų (virtuvių, sanitarinių mazgų, koridorių, įstatytų spintų, šildomų lodžijų ir kitų šildomų pagalbinių patalpų) suminis grindų plotas.
Į naudingąjį plotą neįeina balkonų, lodžijų, terasų, nešildomų rūsių grindų plotas.

Pavyzdinis buto planas, kuriame matomas patalpų išdėstymas ir plotai.
Butų Bendrojo Ploto Skaičiavimas
Nagrinėjant butų pavyzdžius, svarbu atkreipti dėmesį į tai, kas įeina į bendrą plotą. Štai keletas pavyzdžių iš Lietuvos nekilnojamojo turto rinkos:
- Senamiestis, Trakų g.: 2 kambarių buto bendras plotas - 75.56 kv.m.
- Senamiestis, Sodų g.: 2 kambarių buto bendras plotas - 68 kv.m.
- Baltupiai: Nuostabaus 2 kambarių buto bendras plotas - 53 kv.m. Svetainė apjungta su virtuvės zona - 28 kv.m, miegamasis izoliuotas - 15,5 kv.m.
- Antakalnis, P. Vileišio g.: 2 kambarių buto bendras plotas - 46 kv.m.
- Žvėrynas, Pūšų g.: 2 kambarių buto bendras plotas - 43,10 kv.m. Kambariai pereinami - 15,76 ir 13,15 kv.m, virtuvė - 7,79 kv.m.
- Centras, J. Jasinskio g.: 1,5 kambario buto bendras plotas - 37,58 kv.m. Kambariai - 7,48 ir 21,51 kv.m, virtuvė - 8,5 kv.m.
- Šnipiškės, Apkasų g.: Buto bendras plotas - 44 kv.m. Kambariai 17 kv.m. ir 14 kv.m., vienas pereinamas. Virtuvė - 5,3 kv.m.
- Lentvaris, Klevų al.: 2 kambarių buto bendras plotas - 47 kv.m. Pagal eksplikaciją vietuvės zona - 22,46 kv.m; kambarys - 19,27 kv.m., sanmazgas - 5,44 kv.m.
Svarbu atkreipti dėmesį, kad bendras plotas apima visas buto patalpas.
Namo Bendrojo Ploto Skaičiavimas
Skaičiuojant namo bendrą plotą, būtina atsižvelgti į visų patalpų plotus, įskaitant šildomas ir nešildomas patalpas visuose aukštuose.
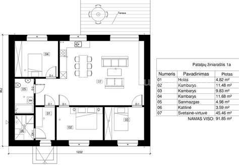
Pavyzdys: Vienaukštis Namas su Garažu "Rasa"
Šiame name su keturšlaičiu stogu, komfortiškai gali gyventi 4-5 asmenų šeima. Bendrasis namo patalpų plotas - 163,79 m2, gyvenamas plotas - 96,99 m2. Pastate suprojektuota dienos, poilsio ir ūkinė zonos.
- Dienos zona: Didelė svetainė, virtuvė-valgomasis, sanmazgas, koridorius-holas, drabužinė.
- Poilsio zona: Miegamieji, sanmazgas.
- Ūkinė zona: Katilinė ir garažas.
Gyvenamojo namo statyba yra nesudėtinga ir ekonomiška dėl parinktų paprastų konstrukcijų ir sprendinių. Kadangi energinio naudingumo reikalavimai aukšti, klasikinės statybos sprendiniai rinkai tampa ne tokie patrauklūs ir priimtini.
Pavyzdys: Dviejų Aukštų Namas su Garažu
Šis projektas pasižymi nedideliu užstatymo plotu, todėl gali būti įgyvendinamas ir nedideliame žemės sklype. Du namo aukštai išskirti į atskirus funkcinius vienetus - bendros ir privačios veiklos zonas.
- Gyvenamas plotas: 83.27 kv. m
- Naudingas plotas: 145.34 kv. m
- Bendras plotas: 174.28 kv. m
- Užstatytas plotas: 137 kv. m
Toks išplanavimas sukuria idealią aplinką tiek individualiam darbui, poilsiui, tiek bendravimui, nekeliant bereikalingos sumaišties.
Sodo Namelio Kvadratūros Skaičiavimas
Planuojant sodo namelį, svarbu žinoti, kaip skaičiuojama jo kvadratūra. Jei statinys neviršija 80 m2, skaičiuojami tik vidinių antžeminių patalpų plotai. Rūsys ir pavėsinė į bendrą plotą neįskaičiuojami. Mansardinių patalpų plotas skaičiuojasi nuo 1,6 m aukščio.
Pagal STR 1.14.01:1999 "Pastatų plotų ir tūrių skaičiavimo tvarką", gyvenamojo pastato bendrasis plotas yra visų jame esančių patalpų plotų suma, įskaitant funkcionaliai susietus priestatus.
Svarbu:
- Rūsys neįsiskaičiuoja į bendrą plotą.
- Pavėsinė neįskaičiuojama, nes tai nėra patalpa.
Ventiliuojamo fasado sienos, atitinkančios A++ reikalavimus, yra plonesnės už įprastines konstrukcijas, todėl išnaudojamas didesnis bendrasis vidaus patalpų plotas. Naudojamas plienas yra 100 % perdirbama medžiaga, atitinka žiedinės ekonomikos principus ir yra lengvai transportuojamas.
LPPK privalumai:
- Lengvumas ir greitas surinkimas
- Didesnis naudingas vidaus patalpų plotas
- Ekologiškumas (100% perdirbamas plienas)
- Atitinka A++ energinio naudingumo reikalavimus
Nesudėtingi statiniai: kas tai?
Pagal STR 1.01.07:2010 „NESUDĖTINGI STATINIAI“ apibrėžimą, jus domina II gr. nesudėtingas statinys - gyvenamasis namas iki 80 kv. m bendro ploto ir 8,5 m aukščio. Svarbu suprasti, kas įeina į šį plotą ir kaip jis skaičiuojamas.
Patalpa - sienomis ir kitomis atitvaromis apribota nustatytos paskirties erdvė.
Nors rūsio plotas skaičiuojamas į pastato bendrąjį plotą, nesudėtingas II-os gr. statinys - gyvenamasis namas - yra ne daugiau kaip 80 kv. m visų statinio patalpų ploto, skaičiuojant tik antžeminę dalį.
Kitaip tariant, į 80 kv. m plotą įeina visos šiltos ir šaltos patalpos (įskaitant pastogės patalpas ir garažą), išskyrus rūsį ir terasas.
Dažnai kyla klausimų, kaip skaičiuojamas plotas nesudėtingiems statiniams, pavyzdžiui, gyvenamiesiems namams ar sodo namams iki 80 kv. m. Skaičiuojamas bendras visų antžeminės dalies patalpų plotas. Į 80 kv. m. plotą įeina visos šiltos ir šaltos patalpos (įskaitant pastogės patalpas ir garažą). Rūsio ir terasų plotai į šį plotą neįskaičiuojami.
Jei norite statyti II gr. nesudėtingų pastatų kategorijai priskiriamą ūkinį pastatą, tuomet turite neviršyti 80m² bendro vidaus ploto ir 8,5m aukščio nuo vidutinio žemės lygio iki aukščiausios pastato dalies (dažniausiai stogo kraigo). Tokiems pastatams, jei jie statomi ne mieste ir ne saugotinose teritorijose (regioniniai parkai, kultūros paveldo teritorijos ir pan.), nereikalingas projektas ir statybą leidžiantis dokumentas.
Pastatų plotų skaičiavimo tvarką nustato ORGANIZACINIS TVARKOMASIS STATYBOS TECHNINIS REGLAMENTAS STR 1.14.01:1999 PASTATŲ PLOTŲ IR TŪRIŲ SKAIČIAVIMO TVARKA.
"17. Gyvenamojo pastato bendrasis plotas yra visų jame esančių patalpų, tarp jų - ir funkcionaliai susietuose priestatuose, plotų suma."
Skaičiuojamos visos patalpos, kurios turi keturias sienas. Garažas, jeigu jis sublokuotas, taip pat. Neskaičiuojama terasa, rūsys, pastogė. Pastogėje į plotą įskaičiuojamos patalpos ar jų dalys, kurios turi aukštį ne mažiau kaip 1,60 m.
Į plotą įskaičiuojamas iš atitvarų plotas. Tiksliuosius skaičiavimus atlieka matininkai ruošdami inventorinę bylą.
Kaip Skaičiuojamas Plotas?
Nekilnojamojo turto objektų kadastrinių matavimų ir kadastro duomenų surinkimo bei tikslinimo taisyklės nustato, kad:
- Gyvenamosios patalpos plotas skaičiuojamas kaip gyventi skirtų uždarų ar pusiau uždarų patalpų plotų suma.
- Ppg - pagrindinį plotą sudaro visos patalpos, išskyrus patalpas, kurios įskaitomos į pagalbinį plotą.
- Pagalbinis plotas - visų gyvenamųjų patalpų, išskyrus kambarius, verslo patalpas, rūsius (pusrūsius) ir garažus, plotų suma.
- Naudingasis plotas - tai bendras gyvenamųjų kambarių ir kitų patalpų (virtuvių, sanitarinių mazgų, koridorių, įstatytų spintų, šildomų lodžijų ar kitų pagalbinių patalpų) grindų plotas.
Projektuojant daugiabučius gyvenamuosius namus, bent vienas kambarys bute turi būti ne mažesnis kaip 16 kvad. m, bendras vonios ir tualeto plotas - ne mažesnis kaip 4 kvad. m, o vienam žmogui turi tekti ne mažiau kaip 14 kvad. m.
Patalpų plotų skaičiavimai nurodyti Kadastrinių matavimų ir kadastro duomenų surinkimo bei tikslinimo taisyklėse:
Gyvenamųjų patalpų bendras plotas (Pgp) apskaičiuojamas pagal formulę:
Pgp = Pg + Pp + Pv + Pkt
Kur:
- Pg - gyvenamasis plotas
- Pp - pagalbinis plotas (pagalbinis naudingas plotas, pagalbinis nenaudingas plotas)
- Pv - verslo plotas
- Pkt - kitas plotas (rūsio (pusrūsio) patalpų plotas, garažo patalpų plotas)
Svarbu: Rūsio (pusrūsio) ar garažo patalpos, į kurias patenkama tiesiog iš gyvenamosios patalpos, įskaičiuojamos į šios gyvenamosios patalpos bendrąjį plotą.
Kaip Apskaičiuoti Kambario Kvadratūrą?
Kvadratūrą dažniausiai turime žinoti, kuomet reikia užpirkti apdailos medžiagas, pvz. parketą, plyteles, dažus ar kt. Kvadratūros taip pat reikia įrenginėjant šildymo sistemą ar keičiant radiatorius (šiuo atveju yra aktualus ir tūris). Tuo tarpu perimetro skaičiavimas yra svarbus renkantis grinduostes, bagetus, durų apvadus.
Visų pirma dažniausiai kambarių plotai sudaro tam tikras formas, kurios gali būti arba taisyklingos, arba netaisyklingos.
Taisyklingos Formos Kambariai
Jeigu kambario perimetro forma yra taisyklinga (kvadratas, stačiakampis, rombas), tuomet apskaičiuoti kvadratūrai galima pasitelkti formulę.
Kvadrato Formos Kambarys
Kvadrato formos kambario kvadratūrą apskaičiuoti yra paprasčiausia. Tereikia pamatuoti vieną kraštinę ir pakelti turimą skaičių kvadratu, t. y. padauginti iš jo pačio. Pvz. jeigu kambario vienos sienos ilgis yra 6 metrai, tuomet kambario plotas bus (6*6) 36 kvadratiniai metrai.
Stačiakampio Formos Kambarys
Stačiakampio formos patalpos turi po dvi lygias kraštines (sienas). Perimetro apskaičiavimas (pavyzdžiui prieš perkant grindjuostes) nesiskiria nuo kvadrato formos skaičiavimo principo. Tereikia sudėti visas keturias kraštines ir gausime bendrą ilgį. Tuo tarpu plotas gali būti apskaičiuojamas sudauginus dvi šalia viena kitos esančias kraštines: jei kambario ilgis yra 6 m, o plotis 4, tai reikia sudauginti šiuos skaičius ir gausime bendrą kambario plotą (24 kv.
Sienų Plotų Skaičiavimas
Sienų plotų skaičiavimas pasitarnaus atliekant sienų dažymą ar tapetavimą. Tam, kad nebūtų išmetami pinigai ir medžiagų būtų užperkama tik tiek, kiek reikia, tikslus plotų apskaičiavimas yra esminis pasiruošimo darbas. Nedaug kas įvertina, jog sienos turi angas langams, durims ar sieninėms spintoms. Tokiu atveju net jeigu ir sienos perimetras yra taisyklingas, šiuos plotus teks iš bendros kvadratūros išskaičiuoti.
Pirmiausia išmatuokite sienos plotą paėmę jos kraštines ir pritaikę aukščiau minėtus skaičiavimo metodus. Tada išmatuokite angos (durų ar lango) plotą. Tą padarykite taipogi matuodami kraštines bei jas sudaugindami pagal tas pačias formules.
Svarbūs Aspektai Perkant Būstą
Renkantis naujos statybos būstą, būtina atkreipti dėmesį į tai, ką vystytojas nurodo kaip parduodamo būsto naudingąjį plotą. Visuomet rekomenduojama prašyti naudingąjį būsto plotą įrodančių dokumentų, pvz., buto plano.
Buto plane svarbu pastebėti, ar jame nėra įtrauktos papildomos ar pagalbinės erdvės, tokios kaip balkonas ir terasa ar sandėliukas.
Ekspertai pabrėžia, kad būtina prašyti būsto plano. Įprastai tokiame dokumente nurodomas ne tik buto išdėstymas, bet ir judėjimo srautai. Svarbu iš anksto žinoti, kad pastačius pastatą, viduryje buto neatsiras atraminė kolona, kuri, be abejonės, mažintų buto plotą.
Visų papildomų ir pagalbinių patalpų plotai turi būti skaičiuojami atskirai ir jokiu būdu neįtraukiami į buto plotą. Pasitaiko atvejų, kai NT skelbimuose buto plotas nurodomas su balkono ar terasos plotu. Taip elgtis negalima. Todėl raginama domėtis būtent naudinguoju būsto plotu.
Statomo būsto išmatavimai kartais gali skirtis nuo tų, kai būstas jau būna pastatytas, tačiau dažniausiai skirtumai būna minimalūs, o dėl jų rekomenduojama sutarti preliminarioje būsto pirkimo-pardavimo sutartyje.
Jei pastatytame bute išryškėja pažeidimai dėl būsto ploto, klientas visuomet gali reikalauti sumažinti perkamo būsto kainą arba išvis atsisakyti sudaryti galutinę pirkimo-pardavimo sutartį.
Visi būsto pirkimo proceso metu kylantys klausimai turi būti sprendžiami iki pagrindinės sutarties pasirašymo.
Būsto kvadrato kaina gali skirtis priklausomai nuo miesto ir rajono.
Ar Reikalingas Leidimas?
Net ir tuo atveju, kai statybą leidžiantis dokumentas nėra privalomas, rekomenduojama kreiptis į architektą, kuris įvertins esamą sklypo situaciją, patars, kaip geriausia organizuoti vidaus erdves, kokias pasirinkti statybines medžiagas ir konstrukcinius sprendinius, esant poreikiui paruoš kokybišką interjero projektą pagal jūsų poreikius ir finansines galimybes.
Rašytinis pritarimas supaprastintam statybos projektui privalomas statant II grupės nesudėtingą statinį - mieste, konservacinio prioriteto ar kompleksinėje saugomoje teritorijoje, kultūros paveldo objekto teritorijoje, kultūros paveldo vietovėje.
Reikalavimai Projektuotojams
Nesudėtingų statinių projektavimui, statybai, statinio projekto vykdymo priežiūrai turi teisę vadovauti fizinis asmuo, baigęs aukštojo ar specialiojo vidurinio mokslo studijas ir įgijęs architektūros, geologijos ir minerologijos mokslų studijų krypčių, technologijos mokslų studijų srities ar šioms kryptims ir sričiai prilyginamą išsilavinimą.
Šio išsilavinimo nereikia, kai supaprastintas statinio projektas rengiamas pasinaudojant kito tokio statinio (kai išlaikomi statinio matmenys ir statybos produktai) supaprastinto projekto sprendiniais; tokiu atveju valstybės tarnautojams pateikiamas ir statinio supaprastintas projektas, kurio sprendiniais pasinaudota.
Kiti Svarbūs Aspektai
Projektuojant daugiabučius gyvenamuosius namus, bent vienas kambarys bute turi būti ne mažesnis kaip 16 kvad. m. Bendras vonios ir tualeto plotas - ne mažesnis kaip 4 kvad. m. Vienam žmogui turi tekti ne mažiau kaip 14 kvad. m.
Būsto naudingasis plotas - tai bendras gyvenamųjų kambarių ir kitų patalpų (virtuvių, sanitarinių mazgų, koridorių, įstatytų spintų, šildomų lodžijų ar kitų pagalbinių patalpų) grindų plotas.
Kiekviename daugiabutyje name turi būti suprojektuoti žmonėms su negalia skirti butai, kurie turi sudaryti ne mažiau kaip 5 proc. visų butų. Šis reikalavimas taikomas tiems namams, kurie yra ne toliau kaip 500 m kelio pėsčiomis iki viešojo transporto stotelių. Pastatuose be lifto butai žmonėms su negalia turi būti planuojami pirmajame aukšte.
Nuo 2014 m. jau visi Lietuvoje naujai statomi pastatai turi atitikti B energinio naudingumo klasę, o nuo 2016 m. - ne žemesnę kaip A klasę.
Terminų Žodynas
Norint geriau suprasti statybos procesus ir reikalavimus, svarbu žinoti pagrindinius terminus:
| Terminas | Apibrėžimas |
|---|---|
| Antstatas | Pagalbinės patalpos virš viršutinio aukšto (vėdinimo kameros, katilinės, soliariumai ir kt.), turinčios atskirą stogą, kai jų plotas, matuojamas pagal antstato sienų išorės matmenis, yra mažesnis nei pusė viršutiniojo aukšto ploto. |
| Gyvenamasis pastatas (namas) | Pastatas, kurio visas naudingasis plotas, didžioji jo dalis ar bent pusė naudingojo ploto yra gyvenamosios patalpos. |
| Mansarda | Pastogėje įrengta patalpa (patalpos), bendru atveju apribota viršutinio Namo aukšto perdanga, nuožulnaus stogo konstrukcija bei išorės sienomis. |
| Nesudėtingas statinys | Paprastų konstrukcijų pastatas, kurio didžiausias aukštis 8,5 m, kurio visų aukštų, antstatų, pastogės patalpų ir naudojimo paskirtimi susietų priestatų plotų suma yra ne didesnė kaip 80 kvadratinių metrų ir kurio rūsys (pusrūsis) yra ne didesnis kaip vieno aukšto; paprastų konstrukcijų inžinerinis statinys. |
| Pastato (namo) aukštas | Erdvė nuo patalpų grindų paviršiaus iki virš jų esančių patalpų grindų paviršiaus (viršutinis aukštas - iki pastogės perdengimo šilumos izoliacijos arba sutapdinto denginio viršaus). |
| Priestatas | Prie esamo pastato pristatytas statinys, susietas su juo funkcionaliai ir tiesioginiu įėjimu iš pastato į priestatą; gyvenamojo namo šaltos pagalbinės patalpos, pastatytos jo “šiltų” atitvarų išorinėje pusėje. |
| Statinys | Bendrasis terminas, vartojamas apibrėžti visa tai, kas sukuriama statybos darbais, naudojant statybos produktus, ir yra tvirtai sujungta su žeme. |
Apskritimo plotas - kodėl ši sąvoka neteisinga, skritulys plotas, skaičiuojame | MatematikosGuru.com
tags: #kaip #skaiciuoti #bendra #plota