Planuojant ar įsigyjant būstą, svarbu suprasti skirtumus tarp gyvenamojo ir naudingo ploto. Šie du rodikliai yra esminiai, vertinant ne tik būsto dydį, bet ir jo funkcionalumą bei atitiktį teisiniams reikalavimams. Šiame straipsnyje išsamiai aptarsime, kas sudaro gyvenamąjį ir naudingąjį plotą, kaip jie apskaičiuojami ir kokie teisės aktai tai reglamentuoja Lietuvoje. Taip pat išnagrinėsime, kuo skiriasi bendras ir naudingas buto plotas, remiantis Lietuvos Respublikos teisės aktais ir reglamentais. Atsakysime į dažniausiai užduodamus klausimus apie bendrojo naudojimo patalpas ir jų administravimą. Taigi, panagrinėkime, kas įeina į gyvenamąjį plotą ir kaip jis skiriasi nuo kitų plotų.
Bene dažniausiai užduodamas klausimas - kaip skaičiuojamas plotas? Kas įeina į 80 kv. m plotą? Ar galima įsirengti rūsį ar pastogę? Ar skaičiuojasi garažas?

Pavyzdinis buto planas, kuriame matomas patalpų išdėstymas ir plotai.
Gyvenamasis plotas: kas į jį įeina?
Gyvenamasis plotas skaičiuojamas kaip gyventi skirtų uždarų ar pusiau uždarų patalpų plotų suma. Tai apima:
- Svetaines
- Valgomuosius
- Miegamuosius
- Darbo kabinetus
- Gyvenamuosius kambarius
- Virtuves ir kitas gyventi tinkančias šiltas patalpas, kurių grindų plotas didesnis kaip 4 m².
Šios patalpos turi turėti apšiltintas atitvarines konstrukcijas ir galimybę būti normaliai šildomos žiemą, neatsižvelgiant, ar jose yra stacionariniai šildymo įrenginiai, ar ne.
Taisyklių 145 punkte nustatyta: „Gyvenamosios patalpos (buto gyvenamuosiuose ir negyvenamuosiuose pastatuose; vieno buto namo; atskiro kambario su bendrojo naudojimo patalpomis) plotas skaičiuojamas kaip gyventi skirtų uždarų ar pusiau uždarų patalpų plotų suma.
Kas yra naudingas plotas?
Pagal Statybos techninio reglamento STR 2.02.01:2004 „Gyvenamieji pastatai“ 4.12 punktą, būsto naudingasis plotas - tai gyvenamųjų kambarių ir kitų būsto patalpų (virtuvių, sanitarinių mazgų, koridorių, įstatytų spintų, šildomų lodžijų ir kitų šildomų pagalbinių patalpų) suminis grindų plotas.
Į naudingąjį plotą neįeina balkonų, lodžijų, terasų, nešildomų rūsių grindų plotas.
Pagalbinis plotas yra visų gyvenamųjų patalpų, išskyrus kambarius, verslo patalpas, rūsius (pusrūsius) ir garažus, plotų suma.

Daugiabutis namas
Pastato bendras ir naudingas plotas
Statybos techninio reglamento STR 1.05.06:2010 „Statinio projektavimas“ 2 straipsnio 6.10 papunktyje nustatyta: „pastato bendras plotas - visų patalpų ir jų priklausinių (balkonų, lodžų, ant stogo numatomų terasų, verandų ir kitų priklausinių) plotų suma, m2. Į bendrą plotą neįskaitomas uždarų laiptinių, atvirų ar pusiau atvirų laiptinių laiptotakių ir tarpinių aikštelių, liftų šachtų plotas“.
6.11 papunktyje nustatyta: „pastato naudingas plotas - visų šiltomis atitvaromis atitveriamų ar atitvertų patalpų plotų suma, m2.
Apibendrinant, galima teigti, kad į bendrą plotą įeina visos buto patalpos ir jų priklausiniai, o į naudingą - tik tos patalpos, kurios yra apšildomos ir atitvertos.
Kaip apskaičiuojamas namo plotas?
Namo plotas apskaičiuojamas pagal ORGANIZACINIS TVARKOMASIS STATYBOS TECHNINIS REGLAMENTAS STR 1.14.01:1999 PASTATŲ PLOTŲ IR TŪRIŲ SKAIČIAVIMO TVARKA.
Gyvenamojo pastato bendrasis plotas yra visų jame esančių patalpų, tarp jų - ir funkcionaliai susietuose priestatuose, plotų suma. Skaičiuojamos visos patalpos, kurios turi keturias sienas, įskaitant ir sublokuotą garažą.
Neskaičiuojama terasa, rūsys, pastogė (išskyrus atvejus, kai pastogėje įrengtos patalpos, kurių aukštis ne mažesnis kaip 1,60 m). Į plotą įskaičiuojamas iš atitvarų plotas.
Statybos techninio reglamento STR 1.05.06:2010 „Statinio projektavimas“ 2 straipsnio 6.10 papunktyje nustatyta: „pastato bendras plotas - visų patalpų ir jų priklausinių (balkonų, lodžų, ant stogo numatomų terasų, verandų ir kitų priklausinių) plotų suma, m2. Į bendrą plotą neįskaitomas uždarų laiptinių, atvirų ar pusiau atvirų laiptinių laiptotakių ir tarpinių aikštelių, liftų šachtų plotas“.
Svarbu! Tiksliuosius skaičiavimus atlieka matininkai ruošdami inventorinę bylą.

Kaip montuoti armatūrą pamate
Namo statyba iki 80 kv. m: ką reikia žinoti?
Jei planuojate statyti namą iki 80 kv. m, svarbu žinoti, kaip apskaičiuojamas namo plotas ir kokie leidimai reikalingi. Jus domina II gr. nesudėtingas statinys - Gyvenamasis namas iki 80 kv. m. ir 8,5 m. aukščio.
Skaičiuojamas bendras patalpų plotas be rūsio (antžeminės dalies), su sąlyga, kad rūsiai negali būti įrengti už pastatų ribų.
Nors rūsio plotas skaičiuojamas į pastato bendrąjį plotą, nesudėtingas II-os gr. statinys gyvenamasis namas yra ne daugiau kaip 80 kv.m. visų statinio patalpų ploto, skaičiuojant tik antžeminę dalį.
Į 80 kv. m. plotą įeina visos visų aukštų patalpos (įskaitant pastogės patalpas ir garažą) išskyrus rūsį ir terasas.
Rašytinis pritarimas supaprastintam statybos projektui privalomas statant II grupės nesudėtingą statinį - MIESTE, konservacinio prioriteto ar kompleksinėje saugomoje teritorijoje, kultūros paveldo objekto teritorijoje, kultūros paveldo vietovėje.
Net ir tuo atveju, kai statybą leidžiantis dokumentas nėra privalomas, rekomenduojama kreiptis į architektą, kuris įvertins esamą sklypo situaciją, patars kaip geriausia organizuoti vidaus erdves, kokias pasirinkti statybines medžiagas ir konstrukcinius sprendinius, esant poreikiui paruoš kokybišką interjero projektą pagal jūsų poreikius ir finansines galimybes.
Nesudėtingų statinių projektavimui, statybai, statinio projekto vykdymo priežiūrai turi teisę vadovauti fizinis asmuo, baigęs aukštojo ar specialiojo vidurinio mokslo studijas ir įgijęs architektūros, geologijos ir minerologijos mokslų studijų krypčių, technologijos mokslų studijų srities ar šioms kryptims ir sričiai prilyginamą išsilavinimą.

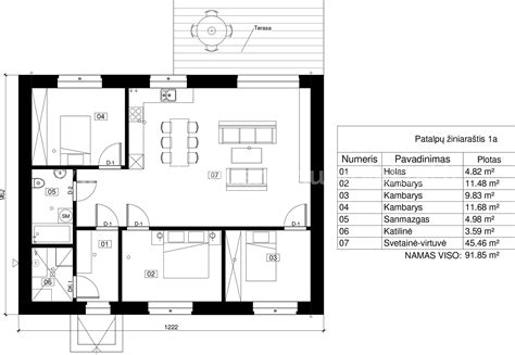
Namo projekto iki 80 kv. m pavyzdys
Reikalavimai daugiabučiams gyvenamiesiems namams
Projektuojant daugiabučius gyvenamuosius namus, būtina atsižvelgti į tam tikrus reikalavimus:
- Bent vienas kambarys bute turi būti ne mažesnis kaip 16 kv. m.
- Bendras vonios ir tualeto plotas - ne mažesnis kaip 4 kv. m.
- Vienam žmogui turi tekti ne mažiau kaip 14 kv. m.
Kiekviename daugiabučiame name turi būti suprojektuoti žmonėms su negalia skirti butai, kurie turi sudaryti ne mažiau kaip 5 proc. visų butų. Šis reikalavimas taikomas tiems namams, kurie yra ne toliau kaip 500 m kelio pėsčiomis iki viešojo transporto stotelių. Pastatuose be lifto butai žmonėms su negalia turi būti planuojami pirmajame aukšte.
Nuo 2014 m. visi Lietuvoje naujai statomi pastatai turi atitikti B energinio naudingumo klasę, o nuo 2016 m. - ne žemesnę kaip A klasę.
Svarbūs aspektai perkantiems būstą
Renkantis naujos statybos būstą, būtina atkreipti dėmesį į tai, ką vystytojas nurodo kaip parduodamo būsto naudingąjį plotą.
Eksperto teigimu, renkantis būstą, klientui visuomet rekomenduojama prašyti naudingąjį būsto plotą įrodančių dokumentų, pvz. buto plano. Buto plane svarbu pastebėti, ar jame nėra įtraukos papildomos ar pagalbinės erdvės, tokios kaip balkonas ir terasa ar sandėliukas. Visų papildomų ir pagalbinių patalpų plotai turi būti skaičiuojami atskirai ir jokiu būdu neįtraukiami į buto plotą.
Jei pastatytame bute išryškėja pažeidimai dėl būsto ploto, klientas visuomet gali reikalauti sumažinti perkamo būsto kainą arba išvis atsisakyti sudaryti galutinę pirkimo-pardavimo sutartį.
Pagrindiniai skirtumai tarp naudingojo ir gyvenamojo ploto
Apibendrinant, štai pagrindiniai skirtumai tarp naudingojo ir gyvenamojo ploto:
| Savybė | Naudingasis plotas | Gyvenamasis plotas |
|---|---|---|
| Apibrėžimas | Bendras gyvenamųjų kambarių ir kitų patalpų grindų plotas (virtuvės, san. mazgai, koridoriai ir kt.) | Gyventi skirtų uždarų ar pusiau uždarų patalpų plotų suma (svetainės, miegamieji, virtuvės ir kt.) |
| Įeina | Visos šildomos patalpos | Tik gyvenamieji kambariai |
| Neeina | Balkonai, lodžijos, terasos, nešildomi rūsiai | Pagalbinės patalpos (koridoriai, san. mazgai ir kt.) |
Bendrojo naudojimo objektai: kas tai?
Pastato bendrojo naudojimo objektai yra apibrėžti Bendrijų įstatymo 2 straipsnyje. Bendrija steigiama valdyti, naudoti ir prižiūrėti bendrosios dalinės nuosavybės teisės objektus. Pastato savininkų bendrija rūpinasi to pastato savininkų bendraisiais interesais.
Pastato savininkų bendrojo naudojimo objektai turi būti surašyti bendrojo naudojimo objektų apraše, kuriame, be kita ko, nurodoma, ar konkretus objektas priskiriamas visiems savininkams, ar tik jų daliai.
Pagal galiojantį Daugiabučių namų ir kitos paskirties pastatų savininkų įstatymą, bendrojo naudojimo objektai, be kita ko, yra bendrosios pastato inžinerinės sistemos - pastato bendrojo naudojimo mechaninė, elektros, dujų, šilumos, sanitarinės technikos ir kita įranga (įskaitant pastato elektros skydinę, šilumos punktą, šildymo ir karšto vandens sistemos vamzdynus ir radiatorius, vandentiekio ir kanalizacijos vamzdynus, rankšluosčių džiovintuvus); vietiniai.
Kas priskiriama bendrosioms pastato konstrukcijoms?
Bendrijų įstatyme bendrojo naudojimo objektams, be kita ko, priskiriamos bendrosios pastato konstrukcijos:
- Pagrindinės pastato konstrukcijos (pamatai, visos laikančiosios sienos ir kolonos).
- Išorinės sienos ir vidinės pertvaros, atskiriančios bendrojo naudojimo patalpas nuo skirtingiems savininkams priklausančių butų ir kitų patalpų.
- Perdangos, stogas, fasado architektūros detalės ir išorinės (fasado) konstrukcijos (balkonų, lodžijų ir terasų laikančiosios konstrukcijos).
Mokesčių paskirstymas ir bendrijos sprendimai
Jeigu bendrojo naudojimo objektų apraše būtų numatyta, kad tam tikras bendrojo naudojimo objektas priskirtas ne visiems, o tik daliai savininkų, pavyzdžiui, vienos laiptinės savininkams, tai mokesčiai proporcingai būtų paskirstomi tik tos laiptinės savininkams.
Civilinio kodekso 4.82 str. 3 dalimi „Butų ir kitų patalpų savininkai privalo proporcingai savo daliai apmokėti išlaidas namui (statiniui) išlaikyti ir išsaugoti, įstatymuose nustatyta tvarka mokėti mokesčius, rinkliavas ir kitas įmokas.
Visi mokestiniai įnašai bendrijai priskaitomi proporcingai pagal užimamą plotą, nesvarbu, ar jie yra jau surinkti (juk irgi buvo priskaityti proporcingai), ar dar tik priskaitomi ir bus susirinkti.
Kaip paskirstomi mokesčiai bendrijoje?
Civilinio kodekso 4.76 str. "Kiekvienas iš bendraturčių proporcingai savo daliai turi teisę į bendro daikto (turto) duodamas pajamas, atsako tretiesiems asmenims pagal prievoles, susijusias su bendru daiktu (turtu), taip pat privalo apmokėti išlaidas jam išlaikyti ir išsaugoti, mokesčiams, rinkliavoms ir kitoms įmokoms.
Nesudėtingi statiniai: kas tai?
Pagal STR 1.01.07:2010 „NESUDĖTINGI STATINIAI“ apibrėžimą, jus domina II gr. nesudėtingas statinys - gyvenamasis namas iki 80 kv. m bendro ploto ir 8,5 m aukščio. Svarbu suprasti, kas įeina į šį plotą ir kaip jis skaičiuojamas.
Nesudėtingų statinių iki 80 kv. m atveju, skaičiuojamas bendras visų antžeminės dalies patalpų plotas. Patalpa - sienomis ir kitomis atitvaromis apribota nustatytos paskirties erdvė.
Nors rūsio plotas skaičiuojamas į pastato bendrąjį plotą, nesudėtingas II-os gr. statinys - gyvenamasis namas - yra ne daugiau kaip 80 kv. m visų statinio patalpų ploto, skaičiuojant tik antžeminę dalį. Kitaip tariant, į 80 kv. m plotą įeina visos šiltos ir šaltos patalpos (įskaitant pastogės patalpas ir garažą), išskyrus rūsį ir terasas.
Patalpų plotas skaičiuojamas tarp pastato vidinių sienų. II gr. statinio 80m2 plotas yra visų patalpų suma. Svarbu atkreipti dėmesį, kad didžiausias leistinas atstumas tarp laikančių sienų turi būti ne didesnis nei 6 m, o pastato aukštis - iki 8,5 m.
Ar reikalingas leidimas?
Rašytinis pritarimas supaprastintam statybos projektui privalomas statant II grupės nesudėtingą statinį - mieste, konservacinio prioriteto ar kompleksinėje saugomoje teritorijoje, kultūros paveldo objekto teritorijoje, kultūros paveldo vietovėje.

Vaikų zona
Net ir tuo atveju, kai statybą leidžiantis dokumentas nėra privalomas, rekomenduojama kreiptis į architektą, kuris įvertins esamą sklypo situaciją, patars, kaip geriausia organizuoti vidaus erdves, kokias pasirinkti statybines medžiagas ir konstrukcinius sprendinius, esant poreikiui paruoš kokybišką interjero projektą pagal jūsų poreikius ir finansines galimybes.
Nesudėtingų statinių projektavimui, statybai, statinio projekto vykdymo priežiūrai turi teisę vadovauti fizinis asmuo, baigęs aukštojo ar specialiojo vidurinio mokslo studijas ir įgijęs architektūros, geologijos ir minerologijos mokslų studijų krypčių, technologijos mokslų studijų srities ar šioms kryptims ir sričiai prilyginamą išsilavinimą.
Pastatų plotų ir tūrių skaičiavimo tvarka
Pastatų plotų skaičiavimo tvarką nustato ORGANIZACINIS TVARKOMASIS STATYBOS TECHNINIS REGLAMENTAS STR 1.14.01:1999 PASTATŲ PLOTŲ IR TŪRIŲ SKAIČIAVIMO TVARKA.
"17. Gyvenamojo pastato bendrasis plotas yra visų jame esančių patalpų, tarp jų - ir funkcionaliai susietuose priestatuose, plotų suma."
Skaičiuojamos visos patalpos, kurios turi keturias sienas. Garažas, jeigu jis sublokuotas, taip pat. Neskaičiuojama terasa, rūsys, pastogė. Pastogėje į plotą įskaičiuojamos patalpos ar jų dalys, kurios turi aukštį ne mažiau kaip 1,60 m. Į plotą įskaičiuojamas iš atitvarų plotas. Tiksliuosius skaičiavimus atlieka matininkai ruošdami inventorinę bylą.
Pagal STR 1.05.06:2010 "STATINIO PROJEKTAVIMAS" (2015 m. birželio 22 d. pakeitimas): 6.10 pastato bendras plotas - visų patalpų ir jų priklausinių (balkonų, lodžų, ant stogo numatomų terasų, verandų ir kitų priklausinių) plotų suma, m2. Į bendrą plotą neįskaitomas uždarų laiptinių, atvirų ar pusiau atvirų laiptinių laiptotakių ir tarpinių aikštelių, liftų šachtų plotas.
Klausimai ir atsakymai
Žemiau pateikiami atsakymai į dažniausiai užduodamus klausimus apie bendrojo naudojimo plotą ir su juo susijusias situacijas:| Klausimas | Atsakymas |
|---|---|
| Ar sandėliukai, neturintys unikalaus numerio, yra bendrojo naudojimo patalpos? | Jeigu asmeniškai naudojami sandėliukai priskiriami bendrajai dalinei nuosavybei, tai kaimynas teisėtai reikalauja didesnio ploto sandėliuko. Savininkai gali nustatyti naudojimosi bendrojo naudojimo objektu tvarką, proporcingumas yra svarbus argumentas, bet galbūt ne vienintelis, savininkai gali nuspręsti ir kitaip. |
| Ar laiptinė, kuria naudojasi vienas butas iš penkių, yra bendro naudojimo objektas? | Jeigu pastato bendrojo naudojimo objektų apraše būtų nurodyta, kad bendrijo naudojimo objektas - konkreti... |
| Namo išorinė siena sudaryta iš langų. Ar pats stiklo paketas (ne rėmas) yra bendro naudojimo, ar priklauso tam butui, kuriame yra? | Bendrijų įstatyme bendrojo naudojimo objektams, be kita ko, priskiriamos bendrosios pastato konstrukcijos - pagrindinės pastato konstrukcijos (pamatai, visos laikančiosios sienos ir kolonos, išorinės sienos ir vidinės pertvaros, atskiriančios bendrojo naudojimo patalpas nuo skirtingiem... |