Planuojant statyti namą, ypač jei jis neviršija 80 kv. m, svarbu žinoti, kaip teisingai apskaičiuojamas gyvenamasis plotas. Tai padės ne tik tinkamai suplanuoti būsimas patalpas, bet ir įsitikinti, ar statybai nereikalingas specialus leidimas. Šiame straipsnyje išsamiai aptarsime, kaip apskaičiuojamas namo plotas, kokie reikalavimai taikomi nesudėtingiems statiniams ir ką reikia žinoti projektuojant tokį būstą.

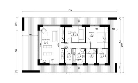
Namo projekto iki 80 kv. m pavyzdys
Kas Yra Naudingas Plotas?
Pagal Statybos techninio reglamento STR 2.02.01:2004 „Gyvenamieji pastatai“ (patvirtinto 2003 m. gruodžio 24 d. įsakymu Nr. 4.12), būsto naudingasis plotas - tai gyvenamųjų kambarių ir kitų būsto patalpų (virtuvių, sanitarinių mazgų, koridorių, įstatytų spintų, šildomų lodžijų ir kitų šildomų pagalbinių patalpų) suminis grindų plotas.
Svarbu pažymėti, kad į naudingąjį plotą neįeina balkonų, lodžijų, terasų ir nešildomų rūsių grindų plotas.
Nekilnojamojo turto objektų kadastrinių matavimų ir kadastro duomenų surinkimo bei tikslinimo taisyklės nustato, kad Gyvenamosios patalpos plotas skaičiuojamas kaip gyventi skirtų uždarų ar pusiau uždarų patalpų plotų suma.
- Ppg - pagrindinį plotą sudaro visos patalpos, išskyrus patalpas, kurios įskaitomos į pagalbinį plotą.
- Pagalbinis plotas - visų gyvenamųjų patalpų, išskyrus kambarius, verslo patalpas, rūsius (pusrūsius) ir garažus, plotų suma.
- Naudingasis plotas - tai bendras gyvenamųjų kambarių ir kitų patalpų (virtuvių, sanitarinių mazgų, koridorių, įstatytų spintų, šildomų lodžijų ar kitų pagalbinių patalpų) grindų plotas.
Gyvenamasis Plotas: Kas Į Jį Įeina?
Gyvenamasis plotas skaičiuojamas kaip gyventi skirtų uždarų ar pusiau uždarų patalpų plotų suma. Tai apima:
- Svetaines
- Valgomuosius
- Miegamuosius
- Darbo kabinetus
- Gyvenamuosius kambarius
- Virtuves ir kitas gyventi tinkančias šiltas patalpas, kurių grindų plotas didesnis kaip 4 m2.
Šios patalpos turi turėti apšiltintas atitvarines konstrukcijas ir galimybę būti normaliai šildomos žiemą, neatsižvelgiant, ar jose yra stacionariniai šildymo įrenginiai, ar ne.
Pagalbinis plotas yra visų gyvenamųjų patalpų, išskyrus kambarius, verslo patalpas, rūsius (pusrūsius) ir garažus, plotų suma.
Taisyklių 145 punkte nustatyta: „Gyvenamosios patalpos (buto gyvenamuosiuose ir negyvenamuosiuose pastatuose; vieno buto namo; atskiro kambario su bendrojo naudojimo patalpomis) plotas skaičiuojamas kaip gyventi skirtų uždarų ar pusiau uždarų patalpų plotų suma.
Pastato Bendras Ir Naudingas Plotas
Statybos techninio reglamento STR 1.05.06:2010 „Statinio projektavimas“ 2 straipsnio 6.10 papunktyje nustatyta: „pastato bendras plotas - visų patalpų ir jų priklausinių (balkonų, lodžų, ant stogo numatomų terasų, verandų ir kitų priklausinių) plotų suma, m2. Į bendrą plotą neįskaitomas uždarų laiptinių, atvirų ar pusiau atvirų laiptinių laiptotakių ir tarpinių aikštelių, liftų šachtų plotas“.
6.11 papunktyje nustatyta: „pastato naudingas plotas - visų šiltomis atitvaromis atitveriamų ar atitvertų patalpų plotų suma, m2.
Apibendrinant, galima teigti, kad į bendrą plotą įeina visos buto patalpos ir jų priklausiniai, o į naudingą - tik tos patalpos, kurios yra apšildomos ir atitvertos.

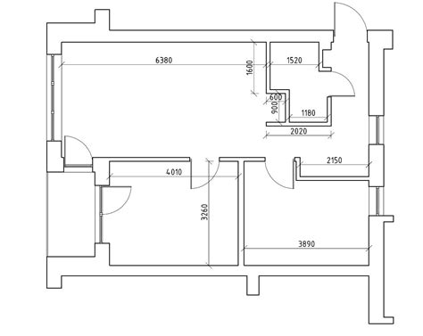
Buto plano pavyzdys
Kaip Apskaičiuojamas Namo Plotas?
Namo plotas apskaičiuojamas pagal ORGANIZACINIS TVARKOMASIS STATYBOS TECHNINIS REGLAMENTAS STR 1.14.01:1999 PASTATŲ PLOTŲ IR TŪRIŲ SKAIČIAVIMO TVARKA.
Gyvenamojo pastato bendrasis plotas yra visų jame esančių patalpų, tarp jų - ir funkcionaliai susietuose priestatuose, plotų suma. Skaičiuojamos visos patalpos, kurios turi keturias sienas, įskaitant ir sublokuotą garažą.
Neskaičiuojama terasa, rūsys, pastogė (išskyrus atvejus, kai pastogėje įrengtos patalpos, kurių aukštis ne mažesnis kaip 1,60 m). Į plotą įskaičiuojamas iš atitvarų plotas.
Statybos techninio reglamento STR 1.05.06:2010 „Statinio projektavimas“ 2 straipsnio 6.10 papunktyje nustatyta: „pastato bendras plotas - visų patalpų ir jų priklausinių (balkonų, lodžų, ant stogo numatomų terasų, verandų ir kitų priklausinių) plotų suma, m2. Į bendrą plotą neįskaitomas uždarų laiptinių, atvirų ar pusiau atvirų laiptinių laiptotakių ir tarpinių aikštelių, liftų šachtų plotas“.
Svarbu! Tiksliuosius skaičiavimus atlieka matininkai ruošdami inventorinę bylą.
BŪSTO PASKOLA: 3 žingsniai kaip SUTAUPYTI
Reikalavimai Daugiabučiams Gyvenamiesiems Namams
Projektuojant daugiabučius gyvenamuosius namus, būtina atsižvelgti į tam tikrus reikalavimus:
- Bent vienas kambarys bute turi būti ne mažesnis kaip 16 kv. m.
- Bendras vonios ir tualeto plotas - ne mažesnis kaip 4 kv. m.
- Vienam žmogui turi tekti ne mažiau kaip 14 kv. m.
Kiekviename daugiabučiame name turi būti suprojektuoti žmonėms su negalia skirti butai, kurie turi sudaryti ne mažiau kaip 5 proc. visų butų. Šis reikalavimas taikomas tiems namams, kurie yra ne toliau kaip 500 m kelio pėsčiomis iki viešojo transporto stotelių. Pastatuose be lifto butai žmonėms su negalia turi būti planuojami pirmajame aukšte.
Nuo 2014 m. visi Lietuvoje naujai statomi pastatai turi atitikti B energinio naudingumo klasę, o nuo 2016 m. - ne žemesnę kaip A klasę.
Namo Statyba Iki 80 Kv. M: Ką Reikia Žinoti?
Jei planuojate statyti namą iki 80 kv. m, svarbu žinoti, kaip apskaičiuojamas namo plotas ir kokie leidimai reikalingi. Jus domina II gr. nesudėtingas statinys - Gyvenamasis namas iki 80 kv. m. ir 8,5 m. aukščio.
Skaičiuojamas bendras patalpų plotas be rūsio (antžeminės dalies), su sąlyga, kad rūsiai negali būti įrengti už pastatų ribų.
Nors rūsio plotas skaičiuojamas į pastato bendrąjį plotą, nesudėtingas II-os gr. statinys gyvenamasis namas yra ne daugiau kaip 80 kv.m. visų statinio patalpų ploto, skaičiuojant tik antžeminę dalį. Į 80 kv. m. plotą įeina visos visų aukštų patalpos (įskaitant pastogės patalpas ir garažą) išskyrus rūsį ir terasas.
Rašytinis pritarimas supaprastintam statybos projektui privalomas statant II grupės nesudėtingą statinį - MIESTE, konservacinio prioriteto ar kompleksinėje saugomoje teritorijoje, kultūros paveldo objekto teritorijoje, kultūros paveldo vietovėje.
Net ir tuo atveju, kai statybą leidžiantis dokumentas nėra privalomas, rekomenduojama kreiptis į architektą, kuris įvertins esamą sklypo situaciją, patars kaip geriausia organizuoti vidaus erdves, kokias pasirinkti statybines medžiagas ir konstrukcinius sprendinius, esant poreikiui paruoš kokybišką interjero projektą pagal jūsų poreikius ir finansines galimybes.
Pastatų Energinio Naudingumo Klasės
Pastatų energinio naudingumo klasės nurodo pastato energijos vartojimo efektyvumą. Nauji daugiabučiai iš esmės skiriasi nuo senųjų energiniu naudingumu. Nuo 2014 m. jau visi Lietuvoje naujai statomi pastatai turi atitikti B energinio naudingumo klasę, o nuo 2016 m. - ne žemesnę kaip A klasę.
| Klasė | Aprašymas |
|---|---|
| A++, A+, A | Aukščiausio energinio naudingumo klasės |
| B, C | Vidutinio energinio naudingumo klasės |
| D, E, F, G | Žemiausio energinio naudingumo klasės |
Pagrindiniai Skirtumai Tarp Naudingojo Ir Gyvenamojo Ploto
Apibendrinant, štai pagrindiniai skirtumai tarp naudingojo ir gyvenamojo ploto:
| Savybė | Naudingasis plotas | Gyvenamasis plotas |
|---|---|---|
| Apibrėžimas | Bendras gyvenamųjų kambarių ir kitų patalpų grindų plotas (virtuvės, san. mazgai, koridoriai ir kt.) | Gyventi skirtų uždarų ar pusiau uždarų patalpų plotų suma (svetainės, miegamieji, virtuvės ir kt.) |
| Įeina | Šildomos patalpos | Gyvenamosios patalpos |
| Neįeina | Balkonai, lodžijos, terasos, nešildomi rūsiai | Pagalbinės patalpos (koridoriai, san. mazgai ir kt.), verslo patalpos, rūsiai, garažai |
Svarbūs aspektai perkantiems būstą
R. Pleteras pabrėžia, kad renkantis naujos statybos būstą, būtina atkreipti dėmesį į tai, ką vystytojas nurodo kaip parduodamo būsto naudingąjį plotą.
Eksperto teigimu, renkantis būstą, klientui visuomet rekomenduojama prašyti naudingąjį būsto plotą įrodančių dokumentų, pvz. buto plano. Buto plane svarbu pastebėti, ar jame nėra įtraukos papildomos ar pagalbinės erdvės, tokios kaip balkonas ir terasa ar sandėliukas.
Įprastai tokiame dokumente nurodomas ne tik buto išdėstymas, bet ir judėjimo srautai, mat labai svarbu iš anksto žinoti, kad, pavyzdžiui, pastačius pastatą, viduryje buto neatsiras atraminė kolona, kuri, be abejonės, mažintų buto plotą.
Visų papildomų ir pagalbinių patalpų plotai turi būti skaičiuojami atskirai ir jokiu būdu neįtraukiami į buto plotą. Pasitaiko atvejų, kai NT skelbimuose buto plotas nurodomas su balkono ar terasos plotu. Taip elgtis negalima, - pabrėžia R. Pleteras ir ragina domėtis būtent naudinguoju būsto plotu.
Visgi, R. Pleteras sako, kad statomo būsto išmatavai kartais gali skirtis nuo tų, kai būstas jau būna pastatytas, tačiau dažniausiai skirtumai būna minimalūs, o dėl jų rekomenduojama sutarti preliminarioje būsto pirkimo-pardavimo sutartyje.
Ekspertas patikina, jei pastatytame bute išryškėja pažeidimai dėl būsto ploto, klientas visuomet gali reikalauti sumažinti perkamo būsto kainą arba išvis atsisakyti sudaryti galutinę pirkimo-pardavimo sutartį.
Tuo pačiu „Bonava Lietuva“ vadovas pažymi, kad visi būsto pirkimo proceso metu kylantys klausimai turi būti sprendžiami iki pagrindinės sutarties pasirašymo.
tags: #kas #yra #pastato #gyvenamasis #plotas