Norint pradėti savo verslą ir atidaryti restoraną, kavinę ar barą, pirmiausia reikia susirasti tinkamas patalpas ir pradėti ne nuo maitinimo įstaigos dizaino, kaip daugelis norėtų, bet paruošti technologinį planą, kuris atitiktų visus Valstybinės maisto ir veterinarijos tarnybos keliamus reikalavimus. Toks planas - tai įmonės saugiklis, kuris užtikrina, kad įpusėjus, ar vos tik pabaigus statybos darbus, nereikės visko išgriauti ir statyti iš naujo.
Kiekvienas restoranas turi veikti pagal savo verslo sistemą. Tai yra pagrindinis komercinių įmonių reikalavimas. Įmonė turi būti kuriama pagal nustatytus tikslus, kurie įgalintų vadovybę suformuluoti organizacijos politiką. Verslo filosofija yra reikalinga tam, kad galima būtų suformuluoti elgesio bei požiūrių standartus. Taip pat turėtų būti sukurta įmonės veiklos augimo bei plėtros strategija, o šiam tikslui pasiekti kuriami ilgalaikiai, vidutiniai ir trumpalaikiai įmonės tikslai.
Formuluojant įmonės tikslus yra oficialiai apibrėžiama restorano veiklos sritis. Paprastai kompanija siekia kelių tikslų, kurie turėtų būti išdėstyti svarbos tvarka. Tikslai turėtų būti nuoseklūs bei kur įmanoma išreikšti skaitmenine forma. Įmonės filosofija išreiškia bendras taisykles ir doktrinas, įsitikinimus (nuomones) bei elgesio normas, kurios veikia verslo plėtrą. Filosofija iš dalies yra susijusi su etikos normomis bei veiksmų standartais (sąžiningumas, patikimumas, etiketas, efektyvumas ir higiena) taip pat su tarpusavio santykiais (kompanijos pozicija, kliento svarbumas. individuali atsakomybė. personalo dalyvavimas ir konsultavimas).
Apibendrinant, galima teigti, norint patenkinti vartotojų poreikius ir gauti naudą, būtina atsižvelgti į įmonės vidinę ir išorinę aplinką.
Pagrindiniai iššūkiai ir sprendimai
Norintys įsirengti savo restoraną, kavinę ar kitą maitinimo įstaigą, dažniausiai susiduria su keliomis pagrindinėmis problemomis: neefektyviai paskirstytas patalpų plotas, netinkama ventiliacija ir blogai pasirinkta įranga.
Dažnai restorano įkūrėjai susiranda patalpas, pradeda statybas ir tik joms įpusėjus ar net pasibaigus skambina mums ir pasako, kokios virtuvės įrangos jiems reikia. Tačiau vėliau paaiškėja, kad jie nebūna numatę visų reikiamų prietaisų, tam tikrų zonų, kurios reikalingos ne tik pagal Valstybinės maisto ir veterinarijos tarnybos reikalavimus, bet ir norint efektyviai dirbti. Pasirinkę tokį veiksmų eiliškumą jie rizikuoja išleisti daugiau, kadangi gali prireikti griauti, perdaryti arba apskritai ieškoti naujos vietos virtuvei. Su tokia problema dažniausiai susiduria tie, kurie atidaro pirmąjį restoraną. Kitą kartą jie jau žino, kad reikia pradėti nuo technologinio plano ir jame numatyti ir tinkamai įrengti visas reikiamas zonas, kad restoranui pradėjus veiklą virtuvės darbuotojai turėtų visas sąlygas dirbti efektyviai ir kokybiškai.
Anot didelę patirtį rinkoje turinčios maisto technologės Jurgitos Vilktrakienės, prieš pradedant įgyvendinti nuosavo restorano, kavinės ar desertinės idėją, būtina įsivardinti, koks produktas bus įstaigos konkurencinis pranašumas. Taip pat - ar pakaks laiko ir energijos verslo vystymui.
Paklausta apie pagrindinius iššūkius, su kuriais susiduria daugelis pradedančiųjų maitinimo versle, specialistė išskiria skubotus sprendimus besirenkant patalpas bei įrangą.
„Dažnai užsidegę šeimininkai nesilaiko eiliškumo, dirba chaotiškai, mano, kad viską gali patys, ko pasekoje padaro daug netinkamų sprendimų. Tai kainuoja brangiai - laiko ir finansine prasme. Vienas iš pavyzdžių: nusiperka įrenginius, atlikę remontą supranta, kad elektros galingumas patalpose nepakankamas. Na, o grubiausia klaida yra tada, kai neįvertinamas licencijos gavimo sudėtingumas, patalpoms esant gyvenamosios paskirties name“, - sako „Kitchen Rules“ maisto technologė.
Ventiliacijos svarba
Įrengiant virtuvę būtina atkreipti dėmesį į kokybišką ventiliaciją, kurią daug kas tiesiog užmiršta. Tinkamai parinkta ventiliacija turi užtikrinti, kad restorane, kavinėje nebūtų jokių pašalinių kvapų, kad joje jaukiai jaustųsi ne tik darbuotojai, bet ir klientai.
Tinkama ventiliacija turi visą nereikalingą kvapą, blogą orą ne tik ištraukti iš kavinės patalpų, bet ir tinkamai jį išleisti į orą. Ventiliacijos sprendimas parenkamas priklausomai nuo patalpų dydžio, taigi kiekviename restorane ar kavinėje turi būti paruošiamas individualus planas, kuris užtikrintų reikiamą oro kaitą. Jeigu restorane bus sumontuota nekokybiška ventiliacija, klientai užuos iš virtuvės sklindančius pašalinius kvapus, jiems bus nemalonu sėdėti restorane, sunkės sąlygos darbuotojams.
Bute sumontavome priverstinio vėdinimo sistemą su lanksčiais plastikiniais ortakiais
Virtuvės įrangos pasirinkimas
Išrinkti įrangą restorano virtuvei nėra taip paprasta kaip atrodo - viskas turi būti apgalvota. Kiekvienas įrengimas turi stovėti reikiamoje vietoje, būti patogus ir kokybiškas. Tačiau universalių taisyklių, kaip turi atrodyti virtuvės įranga - nėra. Kiekvienas atvejis vertinamas atskirai, priklausomai nuo restorano, kavinės koncepcijos, planuojamo klientų srauto, naudojamų puodų tūrio ir pan.
Pavyzdžiui, vienas iš pagrindinių virtuvės prietaisų - viryklė, konvekcinė krosnis, kurios parenkamos priklausomai nuo restorano paskirties, gaminamų patiekalų ir dydžio. Jeigu restorane verdami cepelinai, jame būna dideli lankytojų srautai, rengiamos puotos, vestuvės, tai reikalinga didesnė, galingesnė viryklė su konvekcine krosnimi. Į tokio restorano virtuvę patalpinus 2 degiklių, negalingą viryklę, klientai bus priversti ilgai laukti savo maisto, kils nepasitenkinimas, restoranas gaus blogus atsiliepimus, nes nesukurs geros nuotaikos. Tačiau jeigu restorane vyrauja prabangūs patiekalai, mažos porcijos, nėra didelių lankytojų srautų, tokiam restoranui pakaks ir mažesnės viryklės. Svarbu atkreipti dėmesį ne tik į degiklių skaičių, bet ir į viryklės galingumą. Silpna viryklė prailgins maisto ruošimo laiką, o kai kurių patiekalų gali ir nepavykti pagaminti. Taip pat reikia nuspręsti, ar reikalinga konvekcinė krosnis ar kokios nors kitos, labiau specifinės funkcijos. Viskas priklauso nuo maitinimo įstaigos koncepcijos.
Žinodami planus, kas ir kokiais kiekiais bus gaminama virtuvėje, mes galime patarti, kokią įrangą pasirinkti geriausia.
Specialistas taip pat rekomenduoja virtuvei pirkti įrenginius ne po vieną iš 5 skirtingų įmonių, bet viską kartu. Tuomet maitinimo įstaigos savininkas bus garantuotas, kad viskas derės tarpusavyje, o iškilus nenumatytoms problemoms iš karto žinos, į kurią įmonę kreiptis.
Geriausias sprendimas, kai galite vienoje vietoje nusipirkti ne tik visą virtuvėms skirtą įrangą, bet galite įsigyti visą kompleksinį sprendimą - nuo technologinio plano sudarymo, įrangos parinkimo ir montavimo iki virtuvės pristatymo virėjų komandai. Taip už visą virtuvės įrengimą bus atsakinga viena įmonė, taigi ir visus nesklandumus bus galima išspręsti kur kas lengviau. Taip pat rekomenduojama pirkti tik žinomų, patikimų gamintojų įrangą ir vengti kiniškos produkcijos. Pirmas žingsnis, kaip tokius atskirti - internetinė svetainė. Jeigu gamintojas neturi savo internetinės svetainės, tai gali būti ženklas, kad jis nenori savęs reprezentuoti, nori išlikti nepastebėtas ir ateityje gali vengti prisiimti atsakomybę už nekokybiškus gaminius.
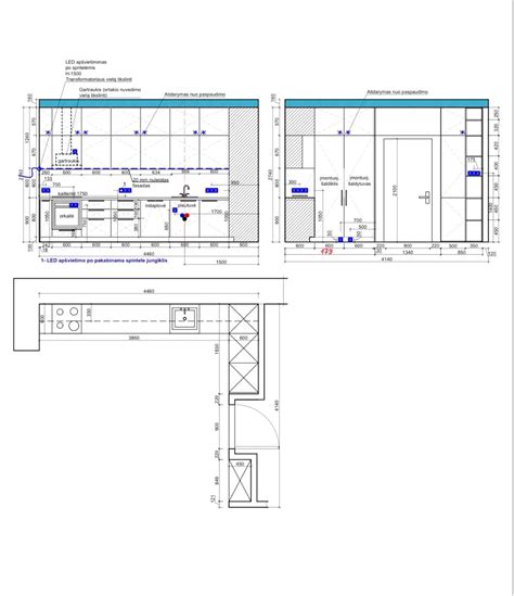
Virtuvės išplanavimo pavyzdžiai
Štai keletas restoranų planų pavyzdžių, kuriuose pavaizduoti visi pagrindiniai restorano veiklai reikalingi įrenginiai, patalpos ir erdvės.
Planuojant atidaryti maitinimo įstaigą, svarbiausia yra žinoti restorano ar kavinės koncepciją, kokia bus pagrindinė veikla, į kokią auditoriją orientuota, nes nuo to priklauso virtuvei reikalingas plotas, kiek erdvės reikės klientams ir pan.
Sushi išsinešimui restorano planas
Šiame plane pavaizduotas restoranas, kuriame gaminami sushi išsinešimui ir keliolika sėdimų vietų. Visas restorano plotas apie 80 kV/m. Virtuvė su sandėliavimo zona apie 18 kv/m atitinka kliento poreikius ir visus reikalavimus. Kaip matote skaičiais pažymėti įrengimai, patalpos ir zonoa:
- Personalo kambarys
- Sandėliavimo zona
- N.pl. šaldytuvas
- N.pl. šaldiklis
- N.pl. stelažas
- Pjaustymo zona
- N.pl. stalas su lentyna ir borteliu
- N.pl. pakabinama lentyna dviguba
- Virtuvės inventoriaus plovimo zona
- N.pl. stalas su plautuve
- N.pl. stelažas
- Šiukšlių kibiras
- Kepimo zona
- Gartraukis su riebaliniais filtrais virš įrengimų
- N.pl. šaldomas darbo stalas 3-jų durelių
- Gruzdintuvė
- Indukcinė viryklė
- Ryžių puodas
- Svarstyklės
- Atleidimo zona
- N.pl. stalas su plautuve kairėje ir lentyna
- Marmitas
- Sušistų zona
- N.pl. šaldomas stalas 4 durelių
- Sushi vitrinėlė
- N.pl. taburetė ryžiu puodui
- Baro zona
- Medinis stalviršis su plautuve dešinėje
- Kavos malūnas
- Kavos aparatas
- Medinis stalviršis
- Kasos aparatas

Picerijos virtuvės plano pavyzdys
Norint įrengti piceriją, reikia didesnės virtuvės nei sushi restoranui, kadangi naudojamos picų krosnys, daugiau šaldytuvų, didesni paviršiai ir pan. Kaip pavyzdį įmonės vadovas pateikia vienos iš picerijų planą. Šiame plane nepavaizduota klientų erdvė, tačiau ji gali būti tokio dydžio, kokius žmonių srautus planuoja savininkas. Pagal tokį planą klientų zona galėtų būti panašaus dydžio kaip ir virtuvė.
Skaičiais 1, 3, 5, 7, 18 pažymėti stalai su plautuvėmis, 2, 24, 25 - nerūdijančio plieno stelažai, 4 , 13, 19 - nerūdijančio plieno stalai, 6 - šaldytuvas, 8 - picų stalas, 9 - šaldomas darbo stalas, 14 - gruzdintuvės, 22 - indų plovimo mašina, o pagrindinis įrenginys pažymėtas 10 numeriu - picų krosnis. Taip pat virtuvėje gausu įvairios technikos: gastronominė, daržovių pjaustyklės, tešlos maišyklė, ledų generatorius, picų tešlos kočioklė, pieno plaktuvas.
Šalia virtuvės zonos taip pat įrengtas personalo kambarys su tualetu bei biuro kabinetas, kuriame ramiai gali dirbti restorano administratorius. Kadangi padavėjams tenka daug vaikščioti nešant užsakymus, visur, kur jiems teks eiti, numatytos dvigubos varstomos durys.

Virtuvės ant ratų išprojektavimo pavyzdys
Dar vienas pavyzdys - tik 5 kv. m. virtuvė ant ratų, kuri pritaikyta lietinių blynų kepimui. Nors jos plotas ypač mažas, tačiau ji atitinka visus Valstybinės maisto ir veterinarijos tarnybos reikalavimus. Iš šios priekabos žmonės aptarnaujami iš trijų pusių. Daugiausiai vietos virtuvėje skirta 1 pažymėtai blynkepei ir 5 numeriu pažymėtai marmitai, skirtai sudėti įvairioms salotoms ir blynų įdarui. Virtuvėlėje taip pat yra nerūdijančio plieno stalai (2, 4, 6), vienas iš jų su plautuve (6), termodėžės (3), karšto vandens šildytuvas ir viryklė. Namelio gale įmontuota dujų balionų dėžė.
Ant ratų daugiausiai tenka įrengti virtuves, skirtas kebabų, lietinių gamybai. Taip pat populiarėja ledainės bei sushi gaminimo kioskai.

Didelio restorano virtuvės projekto pavyzdys
Vienoms virtuvėms užtenka 5 kv. m., o kitoms reikia ir 30 kartų daugiau vietos. Didelės virtuvės pavyzdys, - tai 140 kv. m. gamybines patalpas turintis restoranas. Tokio dydžio patalpos skirtos didelius žmonių srautus turinčiam restoranui, kuris planuoja organizuoti įvairias šventes, pobūvius. Jose montuojama galinga įranga, konvekcinės krosnys ir, be abejo, galingi bei tinkamai sumontuoti gartraukiai.
Šiame plane aiškiai matomos išskirtos zonos. Per 11 skaičiumi pažymėtą perėjimą, į 2 ir 3 patalpas (pliusinę šaldymo kamerą ir sausų produktų sandėlį) darbuotojai atveža įvairius produktus. Patalpoje Nr. 1 vykdomas pirminis daržovių apdirbimas, kur jos sutvarkomos ir švariai nuplaunamos. Tada produktai paskirstomi į reikiamas patalpas: 4 - mėsos ir žuvies cechas (viena pusė skirta mėsai, kita - žuviai), 5 - miltinių patiekalų zona, 8 - salotų gamybos zona. 7 ir 12 zonose vyksta karštų patiekalų gaminimas, o 8 zonoje gaminamos salotos. 9 ir 10 skaičiais pažymėtos zonos skirtos padavėjams, kur jie atneša ir padeda nešvarius indus ir paima naujus patiekalus, švarius indus, stalo įrankius. Visos darbo zonos sukurtos ir suplanuotos taip, kad darbuotojai nešvaistytų jėgų eidami didelius atstumus, viskas būtų lengvai pasiekiama. Dirbdami ir judėdami jiems paskirtose zonose, kiekvienas žino savo darbo vietą ir nesipainioja kitose zonose dirbantiems kolegoms.
Patalpos pasirinkimas
Rasti tinkamą vietą restoranui nėra lengva, nes jie turi skirtingus reikalavimus, normas ir apribojimus. Geriau rasti patalpas, kurios anksčiau buvo restoranas ar kavinė, tokiu atveju galite sutaupyti pinigų ir laiko, nes jums nereikės kapitalinio remonto. Kartais galima rasti patalpą su reikiama įranga, inventoriumi ir ventiliacija.
Renkantis patalpą, pirmiausia reikia atsižvelgti į du parametrus: kambario būklę ir jo vietą. Restorano vieta parenkama atsižvelgiant į būsimo restorano koncepciją. Pavyzdžiui, jaunimo kavinė yra geriau įsikūrti netoli švietimo įstaigos ar mokymo centro, o šeimos kavinė yra geriau įsikūrimo vietoje, kurioje yra didelis pėsčiųjų srautas. Neteisinga vieta gali palikti restoraną be lankytojų.
Įvertinkite pasirinkta vietą ir sužinokite, ar netoliese nėra jūsų konkurentų, kokia yra jūsų tikslinė auditorija ir koks geras viešasis transportas, kad klientui būtų lengviau atvykti. Įvertinkite patį patalpą ir sužinokite, ar ji atitinka visiems norminiams reikalavimams. Kitas svarbus klausimas yra tai, ar galite pertvarkyti patalpas, kad galėtumėte remontuoti jį pagal savo dizainą. Ar yra visi reikalingi komunikacijos ryšiai. Turite sužinoti, kiek turite elektros energijos, nes maisto įranga sunaudoja daug elektros energijos.
Reikalavimai restorano patalpoms:
- Virš 100 m²
- Gera vėdinimo įranga
- Kanalizacija
- Pagalbinės patalpos
Svarbiausias klausimas yra kokia yra nuoma. Restoranui reikia daug vietos ir ne visi turi galimybę nupirkti tinkamą patalpą. Nuoma įvairiais faktoriais skiriasi - koks bus plotas, kokio miesto ir rajono patalpos yra, koks yra pėsčiųjų srautas ir kokia gera kaimynystėje yra kitose svarbiose viešose vietose.
Strateginis virtuvės išplanavimas ir lankytojų zonos koncepcija
Kiekvienam verslininkui vienas iš svarbiausių klausimų yra laikas. Specialistės teigimu, mažiesiems restoranams startuoti gali pakakti ir mėnesio, tačiau didiesiems veiklos pradžią planuoti reikia gerokai iš anksčiau.
Kalbėdama apie svarbiausios - virtuvės - zonos projektavimą, J. Viltrakienė pataria planuoti strategiškai. Zonų išdėstymas lems darbo našumą ir patogumą personalui.
„Virtuvė neapsiriboja tik virtuve. Patalpų planas turi atitikti higienos reikalavimus, reikia numatyti visas būtinas erdves ir zonas bei išdėstyti jas taip, kad srautai nesikirstų, būtų patogu dirbti, nereikėtų švaistyti laiko bei jėgų nešiojant, bėgiojant produktų ar patiekalų. Jeigu projektas netrumpalaikis, labai svarbu pasirinkti kokybišką, ilgaamžį, pagrindinį darbo įrenginį“, - pataria ekspertė.
Tuo tarpu lankytojų zoną specialistė pataria planuoti remiantis bendrąja įstaigos idėja - ką norima perteikti restorano lankytojui.
„Svarbu, kad atėjus į kavinę ar restoraną svečias jaustųsi pastebėtas, laukiamas, kad aplinka bei aptarnavimas atitiktų įstaigos nuotaiką. Gerą įspūdį palieka patogumas, švara, kokybė, socialinis bei ekologinis aspektas. Be abejo, be išskirtinio produkto - visi šie įspūdžiai greitai nublanksta, nes nebėra ko grįžti“, - sako J. Viltrakienė.
Rinkodaros planas
Vis dėlto patalpos, projektas, įranga, higienos ir kiti reikalavimai - tik pusė sėkmingo restorano atidarymo žingsnių.
„Kitchen Rules“ restoranų marketingo specialistė Ieva Vaičiūnaitė pradedantiesiems verslininkams pataria labai atsakingai pažiūrėti į biudžeto planavimą bei rinkos ir konkurencinės aplinkos analizę.
„Vienas svarbiausių žingsnių - biudžeto paruošimas su maždaug papildomu 15 proc. rezervu. Neretai pasitaiko, kad neturintys patirties kuriant tokį verslą, sustoja pusiaukelėje vien dėl lėšų trūkumo, arba pradeda taupyti prieš pat atsidarant, kas lemia bendrą maitinimo paslaugos kokybės mažėjimą. Toliau turėtų sekti bendrieji rinkodaros higienos, ar kitaip - audito veiksmai, rinkos tyrimas bei konkurencinė analizė, tam, kad prie, pavyzdžiui, vienos picerijos neatsirastų kita, kepanti neapolietiško tipo picas“, - sako I. Vaičiūnaitė.
Vis dėlto, turbūt kiekvienam verslininkui pats svarbiausias klausimas yra klientų pritraukimas. Kokiais būdais ir kanalais tai daryti efektyviausia?
„Pagrindinis kanalas - tai pats konceptualus produktas, kuris turėtų tiek savo veidą, tiek balsą, girdimą maksimaliam potencialių svečių kiekiui. Antra - šefas, kuris norėtų ir mokėtų pasakoti savo unikalią maitinimo vietos istoriją. Ne tik skaniai gamintų, bet ir noriai tai rodytų socialiniuose tinkluose. O vieną dieną pakviestas į televizijos laidą nesibaimintų kameros, drąsiai pasakotų, pavyzdžiui, kaip per valandą pamaitinti 150 svečių šviežiai iškeptomis picomis. Naudojant šiuos kanalus pritrauksite tiek žiniasklaidos, tiek svečių dėmesį, kuriuo jie dalinsis nemokamai socialiniuose tinkluose“, - sako I. Vaičiūnaitė.
Sukūrus „veidą“ ir „balsą“ turinčius produktus bei radus istoriją pasakojantį šefą, svarbu tinkamai paruošti ir platformas, per kurias bus kviečiami klientai.
„Savo jėgomis ar su keliomis profesionalų konsultacijomis galima susitvarkyti pagrindinius higieninius kanalus, tokius kaip „Google“, „Trip Advisor“, „Table In“ ar „Meniu.lt“ paskyras. Taip pat, kiek daugiau investicijų reikalaujantis „Google“ raktažodžių pirkimas. Atidarinėjant tinklą, galima naudoti ir nacionalinius kanalus, kaip radiją, spaudą ar televiziją. Įvaizdžiui stiprinti visada puikiai veikia pastarųjų komunikacijos kanalų derinimas su lauko reklama. Galiausiai, jeigu turite ką pasakyti, stiprus kanalas maitinimo versle yra viešieji ryšiai. Juk maitinimo sfera yra daugiausiai emocijų kelianti verslo niša po vaistų sektoriaus“, - sako restoranų marketingo ekspertė.
Paklausta apie dažniausiai daromas pradedančiųjų klaidas reklamuojant savo maitinimo įstaigą, I. Vaičiūnaitė išskiria bendrosios strategijos svarbą.
„Dažniausias išblaškytojas - tai koncepcijos neturėjimas. Pamačius daug dėmesio sulaukusį kaimyno įrašą, bandoma jį atkartoti. Deja, ne visada sėkmingai. Ar kas savaitinis meniu keitimas senojo dar neišdirbus, nes „girdėjau, kad dabar tai madinga“. Socialinių profilių „tvarkymas“, nesuprantant kokią nuotrauką naudoti, ar kokiam stiliuje formuoti įrašus. Dažnai pataupoma ir profesionalioms konsultacijoms, kurios puikiai parodo, kiek toje srityje jūs galite nežinoti“, - sako specialistė.
Galiausiai, ekspertė pabrėžia, kad turint gerai apgalvotą marketingo strategiją ir verslo planą, ne mažiau svarbu išlaikyti bendrą stilistiką jį įgyvendinant.
„Kaip ir žmogaus aprangoje, komunikuojant apie restoraną labai svarbu turėti vientisą stilistiką. Visi elementai turi būti suderinti. Pirmiausia - atpažįstamumui. Tiek vizualiniam, tiek skonio. Antra - svarbus sukurtas lūkestis, kuriuo vedinas lyg į pirmą pasimatymą ateina svečias. Jeigu socialiniame kanale ar straipsnyje bus sukurta labai autentiško pateikimo iliuzija, kurios, deja, negaus klientas, bus didelis nusivylimas. O jį užglaistyti bei vietai suteikti antrąjį šansą - reikės ypatingai daug pastangų.“, - sako I. Vaičiūnaitė.
Todėl vienas pagrindinių ekspertės uždavinių - atrasti kliento paslaugos išskirtinumą ir apie ją sukurti unikalią istoriją, kurios pasakojimas būtų adaptuotas skirtingiems reklaminiams kanalams.
tags: #patalpu #tinkamumas #naudoti #restorano #veiklai