Nors Lietuvos orai nelepina šiltomis dienomis visos vasaros metu, daugelis iš mūsų neįsivaizduoja savo atostogų be poilsio gamtos prieglobstyje - vasarnamyje. O ir pavasario bei rudens sezonais mielai leidžiame laiką jame, nors pats žodis ,,vasarnamis’’ reiškia, kad tai namas, skirtas praleisti vasaros akimirkas… Jei anksčiau į vasarnamius ar sodo namelius žmonės važiuodavo užsiimti sodininkyste, tai šiais laikais, vasarnamis - poilsio, laisvalaikio ir šeimos susibūrimo vieta.

Statybos leidimai ir reikalavimai
Svarbiausias dalykas, kurį reikėtų žinoti visiems, svarstantiems statyti vasarnamį ar sodo namelį, yra tai, kad nuo jo ploto ir aukščio priklausys, ar jo statyboms bus reikalingas leidimas. Leidimas bus reikalingas tuo atveju, jeigu statomo vasarnamio/sodo namelio plotas viršys 80 m2 arba statinys bus aukštesnis nei 8,5 m. Tokiu atveju jam galios visi gyvenamo namo statybai taikomi reikalavimai.
Tačiau, jei ketinate statyti vasarnamį, kurio patalpų (įskaitant pastogės ir naudojimo paskirtimi susietų patalpų) bendras plotas ir aukštis neviršys minėtų normų, jam statybos leidimas reikalingas nebus. Svarbu atkreipti dėmesį, jog palėpės plotas į bendrą pastato plotą nėra įskaičiuojamas tuo atveju, jeigu ji nėra įrengta.
Jei vasarnamį planuojate statyti sodų bendrijoje ir jis neviršija 80 kv. metrų bendrojo patalpų ploto, nėra aukštesnis nei 8,5 metro, tuomet nereikia paruošti statinio projekto bei gauti statybos leidimo ir energinio naudingumo sertifikato. Palėpės plotas neskaičiuojamas tuo atveju, jeigu ji nėra įrengta. Rūsio plotas neįtraukiamas į bendrojo ploto skaičiavimus. Jei planuojate įsirengti terasą - jos plotas neįtraukiamas į bendrąjį plotą taip pat.
Užbaigus tokio statinio statybas tereikia surašyti deklaraciją apie statybų užbaigimą. Per 3 mėn. po deklaracijos užpildymo, statinį reikia įregistruoti Nekilnojamojo turto registre.
Net ir išsiaiškinus, jog planuojamam vasarnamiui ar sodo nameliui statybos leidimas nėra reikalingas, derėtų žinoti, apie kitus, šiam statiniui taikomus reikalavimus. Tokiu atveju statinys vis tiek privalės atitikti sodų bendrijos nustatytus reikalavimus - sodo namas/vasarnamis privalo išlaikyti reglamentuotą atstumą - statinys negali būti statomas arčiau nei 3 metrai iki sklypo ribos. Jeigu atstumas mažesnis, prieš pradedant statybas privalu gauti rašytinį kaimyninio sklypo savininko sutikimą.
Statiniui, kuriam nereikalingas leidimas, statybų projektas taip pat nėra būtinas. Sodo paskirties pastatams, kurių naudojimas oficialiai įvardijamas kaip ne ilgesnis nei keturi mėnesiai per metus, taip pat nėra nustatomi minimalūs privalomi pastatų energetinio naudingumo reikalavimai. Tai reiškia, jog prieš teikiant deklaraciją apie statybos užbaigimą energetinio naudingumo sertifikavimas nėra būtinas.
Paprasčiausias būdas gauti statybos leidimą - kreiptis į bet kurią architektūros paslaugas teikiančią įmonę, kuri padės išspręsti kilusius klausimus ir atliks visus būtinus žingsnius už jus. Tačiau pateikti prašymą statybų leidimui gauti galite ir patys. Jei visi nurodyti reikalavimai įvykdomi iš karto, įgaliotas valstybės tarnautojas IS „Infostatyba“ prašymą užregistruoja.
Nors vasarnamiui statyti sodininkų bendrijoje statybos leidimas nereikalingas, tenka atsižvelgti į bendrijos nustatytus reikalavimus. Svarbiausia - išlaikyti reglamentuotą atstumą nuo kaimyninių sklypų, o tai reiškia, kad namas negali būti arčiau kaip 3 metrai iki sklypo ribos. Jeigu norite sumažinti atstumą iki sklypo ribos - reikalingas rašytinis kaimyninio sklypo savininko sutikimas. Papildomai reikalinga paisyti priešgaisrinių ir sanitarinių atstumų iki kitų statinių.
Jeigu pageidaujate statyti pastatą gyvenvietėje, už miesto ribų, bus reikalingas projektas ir statybų leidimas.
Vasarnamio projektavimas ir įrengimas
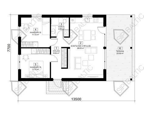
Optimalus pagrindinio pastato dydis apie 70 - 80 kvadratinių metrų. Svetainė apie 20 kvadratų arba 25-30 kvadratų, jei jungiama su virtuve. Pagrindinis įėjimas neturėtų būti tiesiai į svetainę, reikėtų koridoriaus. Iš svetainės verta padaryti išėjimą į terasą. Koridoriui reikia apie 10 kvadratinių metrų.
Dažniausiai vasarnamiai statomi tradicinės architektūros, su šlaitiniu stogu. Pastogėje galima įrengti keletą miegamųjų. Optimalus variantas - laiptai vasarnamio viduryje, tada viršutinė aikštelė atskirs du miegamuosius. Viršutinėje aikštelėje galima įrengti papildomą tualetą, labai praverčia.
Terasa įrengiama toje vasarnamio pusėje, iš kurios atsiveria gražiausi vaizdai. Terasos plotis neturėtų būti mažesnis nei 2 metrai. Geriausia terasos kryptis - į pietų, pietvakarių pusę. Turint sodą ir daržą, verta įsirengti rūsį. Tai kiek pabrangina statybą, tačiau labai praverčia saugant obuolius, daržoves, uogienes, vyną.

Statybinės medžiagos ir technologijos
Paprasčiausi vasarnamiai statomi iš profiliuotų tašų, apkalant juos lentomis. Tai gana pigi, greita statyba. Tačiau tokiame vasarnamyje vasarą bus karšta, žiemą šalta. Didelio pastato iš profiliuotų tašų taip pat nepastatysi.
Kiek solidesnis variantas statyti namą iš rąstų. Tačiau ir pastačius namą iš rąstų be papildomo apšiltinimo, geriausiu atveju bus pasiekta C energetinio efektyvumo klasė. Vasarą tokiame name bus maloniai vėsu, bet žiemą bus sunaudojama daug energijos šildymui.
Geriausias variantas - statyti karkasinį arba mūrinį vasarnamį. Karkasinio ir mūrinio vasarnamio pritaikymas prie aplinkos ar saugomų teritorijų reikalavimų panašus, fasado apdailos variantai tie patys. Mūriniam namui reikės solidesnių pamatų.
Pastatyti karkasinį namą naudojant modernias technologijas neužims daug laiko. Statyba prasideda nuo pamatų. Greičiausiai pamatai karkasiniam namui įrengiami naudojant blokelius. Galima naudoti tuščiavidurius betoninius blokelius (pvz., GKG3) arba polistireninio putplasčio blokelius, kurie naudojami kaip liktiniai klojiniai.
Medinį karkasą geriausia gaminti iš išdžiovintos ir kalibruotos medienos. Dar geresnis variantas- susipjauti medieną kompiuterinėmis staklėmis. Mediena supjaunama milimetrų tikslumu ir sudėlioti karkasą galima turint vidutinę statybininko kvalifikaciją. Karkaso sudėjimas pagreitėja apie 3 kartus. Tai sparčiai populiarėjantis statybos būdas Vakarų Europos šalyse.
Šiltinimas ir apdaila
Vasarnamio šiluminės savybės priklauso nuo šiltinamojo sluoksnio storio ir sandarumo. Pagrindinis izoliacinis sluoksnis dedamas tarp karkaso elementų. Dažniausiai tai 15 centimetrų storio mineralinės vatos sluoksnis.
Karkaso statramsčiai yra šilumos tilteliai. Karkaso elementai uždengiami skersiniais tašais. Skersiniai tašai dedami iš vidaus ir išorės. Iš vidaus izoliacinė medžiaga uždengiama garo izoliacine plėvele. Ji praleidžia garus iš konstrukcijos ir atspindi infraraudonuosius spindulius į patalpų vidų. Iš išorės montuojama vėjo izoliacinė plėvelė.
Panaši konstrukcija naudojama šiltinant šlaitinį stogą. Stogui naudojama speciali stogo plėvelė. Per ją nuteka kondensatas susidarantis ant stogo dangos. Plėvelė klojama sluoksniais, tvirtinama vėdinimo tašeliais (vertikaliais grebėstais).
Sudėtingesni izoliacinio sluoksnio mazgai yra angokraščiai aplink langus ir duris. Ties angomis vidinė ir išorinė plėvelė sujungiamos. Įtvirtinami langai ir durys. Medinėje konstrukcijoje geriau naudoti elastingas poliretano putas, pavyzdžiui, Soudal Flexi. Jos atsparios daugybei medienos deformacijos ciklų, taip pat turi geresnes garso izoliacines savybes. Montavimo putas būtina padengti izoliacine juosta.
Jei vasarnamis gamtoje, norisi fasadui naudoti natūralias medžiagas. Reikia įvertinti, kad fasadas yra pagrindinis barjeras nuo pelių. Pelės yra baisiausias karkasinių namų priešas. Nedidelė skylutė fasade ir į vidų gali patekti pelė, kuri sudraskys vėjo izoliacinę plėvelę ir pridarys landų iziliacinėje medžiagoje. Visos galimos skylės uždengiamos tinkleliu.
Greičiausias būdas įrengti vasarnamio fasadą yra dailylentės. Dailylenčių tipų yra gana daug. Platesnės dailylentės atrodo panašesnės į rąstą, tačiau labiau lankstosi ir skilinėja. Problemą išsprendžia WPC fasadinės dailylentės. Jos nebijo drėgmės, temperatūros svyravimų, neskilinėja ir tarnauja dešimtmečiais.
Komunikacijos ir inžineriniai sprendimai
Vandentiekis turėtų būti pritaikytas galimoms minusinėms temperatūroms. Dažniausiai vasarnamiui išgręžiamas grežinys, iš kurio vanduo tiekiamas į hidroforą. Hidroforas palaiko vandens slėgį visoje vandentiekio sistemoje. Geriausia jei hidroforas būna žemiausioje vietoje ir prie jo yra kranai vandeniui išleisti iš sistemos.
Patogioje privažiavimo vietoje įrengiamas valymo įrenginys. Pagrindinis kanalizacijos vamzdis montuojamas vasarnamio viduryje.
Įrengus sandarų vasarnamį reikia įsirengti priverstinį vėdinimą ir rekuperaciją. Jei dar nėra planų gyventi žiemą, vis tiek verta išvedžioti ortakius. Ortakiai išvedžiojami visose patalpose. Svetainėje dažniausiai atvedamas oro padavimas ir ištraukimas. Dideliuose miegamuosiuose taip pat įrengiamas oro padavimas ir ištraukimas. Mažesniame miegamąjame įrengiamas tik oro padavimas ir koridoriuje - ištraukimas.
Vasarnamio viduryje įrengiamas kaminas ir židinys. Variantų yra keletas. Gali būti krosnelė su stiklu uždengta pakura, nuo kurios greitai įšyla pagrindinė patalpa. Galima panaudoti židinio kapsulę ir joje įrengti karščio kamerą. Iš karščio kameros galima išvedžioti karšto oro padavimo ortakius po kitas patalpas. Vasarnamiams jau dažnai ima naudoti šilumos siurblius. B ar A klasės vasarnamiams tai labai tinkamas variantas.
Ūkiniai pastatai ir technika
Vasarnamio teritorijai prižiūrėti reikės daug technikos. Dažniausiai naujokai pradeda nuo mažos technikos palaipsniui pirkdami vis galingesnę. Jei anksčiau vejos traktorius buvo retenybė, dabar daug vasarnamių savininkų juos turi. Galingesnė technika leidžia darbus atlikti greičiau. Jei sodybos plotas didesnis kaip 1 ha, gali tekti pirkti netgi mažajį traktorių.
Galvojant tokias ar panašias perspektyvas reikia galvoti apie didelį ir aukštą įvažiavimą į ūkinį pastatą. Jei mėgstate žvejoti, bent keletą lentynų užims žvejybos įranga. Turint sodą verta turėti didesnio galingumo sulčių spaudyklę.
Pirtis - dar vienas tradicinis sodybos pastatas. Anksčiau visame kaime buvo viena kita pirtis. Jos būdavo dažnai naudojamos visos bendruomenės. Dabar kiekvienas nori individualios pirties.
Malkinė taip pat yra svarbus vasarnamio ar sodybos pastatas. Malkos natūraliai džiūsta pusantrų - du metus.
Žemės ūkio paskirties sklypas: ką galima statyti?
2025 metais galiojančios taisyklės numato, kad žemės ūkio paskirties sklype galima statyti gyvenamuosius ir ūkinio tipo pastatus, tačiau tam yra nustatyti tam tikri reikalavimai ir apribojimai. Pagal Lietuvos įstatymus, žemės ūkio paskirties žemėje galima statyti įvairius statinius, tačiau jie turi būti tiesiogiai susiję su žemės ūkio veikla.
Pagal dabar galiojančius teisės aktus, žemės sklypuose, kurių pagrindinė žemės naudojimo paskirtis žemės ūkio paskirties žemė, naudojimo būdas kiti žemės ūkio paskirties žemės sklypai, galimi ūkininkų sodybų ir žemės ūkio veiklai ar alternatyviajai veiklai reikalingi statiniai.
Žemės ūkio paskirties žemėje gyvenamojo namo statyba yra griežtai reglamentuojama. Gyvenamasis namas žemės ūkio paskirties sklype gali būti statomas tik tada, kai jis tiesiogiai susijęs su ūkininkavimo veikla.
| Reikalavimas | Apribojimas |
|---|---|
| Statinio dydis | Gyvenamasis namas, kurio plotas neviršija 80 kvadratinių metrų be žemės paskirties keitimo. |
| Ūkininkavimo veikla | Jeigu gyvenamasis namas žemės ūkio paskirties sklype bus naudojamas ūkininkavimui, jį galima statyti be žemės paskirties keitimo. |
| Statybos leidimas | Statant gyvenamąjį namą žemės ūkio paskirties žemėje, net ir iki 80 m2, reikalingas statybos leidimas. |
| Ūkininko statusas | Žemės ūkio paskirties sklypuose gyvenamieji namai gali būti statomi ūkininkams ir jų šeimos nariams, jei tai būtina ūkininkavimui. |
Valstybinė teritorijų planavimo ir statybos inspekcija (VTPSI) informuoja, kad pagal Ūkininko ūkio įstatymą ūkininko sodyba - tai nuosavybės teise priklausančiame žemės sklype pastatytas vienas gyvenamosios paskirties pastatas su pagalbinio ūkio ir kitos paskirties (fermų, ūkio, šiltnamių, kaimo turizmo) pastatais, reikalingais ūkininko veiklai vykdyti.
Konkrečių galimų statyti statinių (pastatų, inžinerinių statinių) dydžių, pasak VTPSI, teisės aktai nenustato. Reikia vadovautis teritorijų planavimo dokumentų ar kaimo plėtros žemėtvarkos projektų sprendiniais, konkrečiu atveju taikytinais teisės aktų reikalavimais.
Advokatas tokį teisės akto pakeitimą vertina gana kritiškai. Jo teigimu, pakeitimas vis tiek riboja ūkininkų galimybes.„Mes ribojame ūkininkus. Ribodami juos mes bandome spręsti naujakurių poreikį turėti gyvenamuosius plotus, kurie yra žemės ūkio paskirties sklypai. Bet juk žemės ūkio paskirties sklypai ne visi tinkami žemės ūkio veiklai. Yra masė žemės sklypų, kurie apleisti, nes netinkami žemės ūkiui, žemas našumas, bet juose ir statybos apribotos. Įstatymo leidėjas galėtų sureguliuoti tokius dalykus, kad žemės ūkio paskirties plotuose, kurie nėra realiai tinkami tokiai veiklai, būtų galima žmonėms statyti nuosavus namus ar sodybas“, - pažymi A. Stačiokaitis.
Antro gyvenamojo namo statyba viename sklype
Šiame straipsnyje aptarsime, kokie reikalavimai taikomi statant antrą gyvenamąjį namą viename sklype Lietuvoje.
Pagal Lietuvos statybos įstatymus, gyvenamosios paskirties namas arba kitas statinys gali būti statomas namų valdos sklype be statybos leidimo, jei atitinka kelis svarbius reikalavimus. Tai leidžia statyti mažesnius, sezoninius ar pagalbinius pastatus be biurokratinių procedūrų.
Pagal galiojančius teisės aktus, namuose valdos sklype galima statyti mažesnius gyvenamuosius pastatus, kurie atitinka tam tikras ribas, nesukeliant būtinybės gauti statybos leidimą: Gyvenamasis namas arba vasarnamis: Kurio naudingojo ploto dydis neviršija 80 m². Paskirtis: Namas turi būti skirtas sezoniniam naudojimui. Žemės paskirtis: Namas turi būti statomas namų valdos sklype, kuris yra skirtas gyvenamajai statybai.
Kaimo teritorijoje, vieno savininko žemės sklype, galima statyti du namus iki 80 kv. m, tačiau jie turi būti skirtingos paskirties. Du gyvenamieji namai ūkininko sodyboje negali būti. Ūkininko ūkio įstatyme įrašyta nuostata, kad ūkininko sodyba yra 1 gyvenamasis namas su priklausiniais. Jei tai namų valda - galima, bet vienam namui turi būti ne mažiau kaip 4 arai žemės.
Nėra reglamentuota, kiek namų gali stovėti, jei išlaikomi visi atstumai ir STR reikalavimai, galima ir 100 namų statyti. Statyti galima, tačiau projekte juos reikia įvardyti skirtingai, t. y. vieną - kaip gyvenamąjį namą, antrą - kaip ūkinį, daržinę, svečių namus ar pan. Be to, reikia dalyti sklypą - padaryti topografinę nuotrauką, o pagal sklypo situaciją gali būti reikalinga padaryti ir detalųjį planą su numatytu servitutu pravažiavimui ir komunikacijoms.
Statant antrą gyvenamąjį namą viename sklype Lietuvoje, būtina atsižvelgti į daugybę reikalavimų ir apribojimų, ypač jei sklypas yra regioniniame draustinyje ar kitoje specifinėje teritorijoje.
Jei sklypas yra regioniniame draustinyje, sklypo dalinimas gali būti neįmanomas, nes draustiniuose dažnai draudžiamas sklypų smulkinimas. Dėl konkrečių apribojimų reikėtų kreiptis į savivaldybę su nuosavybės dokumentais ir pasikonsultuoti su rajono architektu. Taip pat, gali būti apribojimai dėl antro gyvenamojo namo statybos.
Nors įstatyme nėra tiesioginio draudimo statyti du gyvenamuosius namus viename sklype, savivaldybės darbuotojai dažnai laikosi nuostatos, kad viename sklype gali būti tik vienas gyvenamasis namas. Be to, reikia pasidomėti, ar galima didinti sklypo intensyvumą, atsižvelgiant į draustinio apribojimus.
Jei tiesioginė gyvenamojo namo statyba yra apribota, galima apsvarstyti alternatyvius variantus: Kaimo turizmo pastato statyba Pagalbinio ūkio pastato statyba
Bet kokiu atveju, rekomenduojama konsultuotis su savivaldybe. Jei senojo namo paskirtis būtų pakeista į ūkinį pastatą, naująjį namą būtų galima įteisinti kaip vienbutį gyvenamąjį namą, o sklypo dalinti nereikėtų. Draudžiami du vienbučiai gyvenamieji namai viename sklype, tačiau galima žaisti su statinių paskirtimi ir statyti juos pagal poreikį.