Svajojate apie nuosavą būstą? Vieno aukšto namai - puikus pasirinkimas tiems, kurie vertina patogumą, funkcionalumą ir jaukumą. Šiame straipsnyje aptarsime, kaip pasirinkti tinkamą vieno aukšto namo projektą, kokie yra jų privalumai ir į ką atkreipti dėmesį planuojant statybas.

Kaip Pasirinkti Tinkamą Namo Projektą?
Renkantis savo svajonių būsto projektą, labai svarbu įvertinti keletą aspektų:
- Jūsų Asmeniniai Poreikiai
- Galimybės
- Turimas Sklypas
- Projektavimo Apribojimai
Pirmiausia, įvertinkite, kokio ploto namo norite - kelių asmenų šeima jame gyvens, kokio dydžio reikalingi miegamieji ir kiti kambariai, pagalbinės patalpos. Ar norite namo su garažu, stogine? Jūsų poreikius tenkins vieno aukšto namo projektas ar dviejų? Iš kokių medžiagų norite statyti? Kokio stiliaus namai jums patinka? O gal norite statyti pardavimui? Ar tai bus vienbutis, dvibutis gyvenamasis namas, o gal blokuotų namų daugiabutis?
Ar turite nusimatę statyboms skirtą biudžetą? Atsižvelgiant į rinkos kainas, įvertinkite, ar pasirinktas bendrasis plotas, architektūra atitinka jūsų galimybes.
Tik turint sklypą galima pradėti galvoti apie konkretų projektą. Reikėtų įvertinti jo dydį, orientaciją, reljefą, įvažiavimo, atsiveriančių vaizdų, kaimyninių pastatų, medžių lokaciją.
Kiekvienas sklypas turi tam tikrus apribojimus - kokio ploto, aukščio namo statybos jame galimos. Kokio dydžio yra užstatymo zona, sanitarinės apsaugos zonos, atstumai iki kaimyninių pastatų, kelių, inžinerinių tinklų. O gal jūsų sklypas patenka į saugotiną teritoriją ir joje gali būti projektuojami tik tam tikros stilistikos ir dydžio namai.

Namų Projektai ir Jų Privalumai
Modernūs namų projektai gali turėti įvairių privalumų, kurie padeda žmonėms įgyvendinti savo svajonių būstą, atitinkantį jų poreikius ir norus. Štai keletas privalumų, susijusių su namų projektų planavimu ir vykdymu:
- Individualumas ir Tinkamumas Poreikiams
- Efektyvus Funkcionalumas
- Kainų Kontrolė ir Biudžeto Planavimas
- Ilgalaikiai Pranašumai
- Sklandus Statybos Procesas
Namų projektai leidžia žmonėms sukurti unikalius būstus, atspindinčius jų asmeninį stilių, poreikius ir pageidavimus. Jie gali pasirinkti norimą architektūros stilių, kambarių išdėstymą, medžiagas, spalvas ir kitus elementus, kad sukurtų būstą, kuris atitiktų jų gyvenimo būdą.
Geras namų projektas leidžia efektyviai išnaudoti turimą plotą ir sukurti funkcionalų bei patogų namą. Tai reiškia, kad namo dizainas atitinka gyvenimo būdą, pasižymi geru erdvių išnaudojimu, patogiomis erdvėmis ir srautais tarp jų.
Turint iš anksto sukurtą projektą, lengviau planuoti biudžetą ir kontroliuoti išlaidas. Projektas leidžia iš anksto numatyti, kiek reikės investuoti į skirtingus darbus ir medžiagas, taip mažinant galimas neplanuotas išlaidas.
Geras namų projektas ne tik atitiks dabarties poreikius, bet ir žvelgs į ateitį. Įtraukti energijos taupymo sprendimai, tvarių medžiagų naudojimas ar galimybė įdiegti pažangias technologijas gali padėti sumažinti būsto eksploatacijos išlaidas ir padidinti jo vertę ilgalaikiu laikotarpiu.
Turėdamas kokybišką ir gerai apgalvotą namo projektą, statybos procesas gali vykti sklandžiau ir efektyviau. Tai padeda išvengti nesklandumų, nesutarimų su rangovais ar kitų problemų, kurios gali iškilti dėl neaiškaus ar nepatikimo projekto.
Svarbu paminėti, kad kiekvienas namo projektas yra unikalus ir gali turėti savų privalumų, kurie priklauso nuo žmonių poreikių, biudžeto, vietos ir kitiems individualiems veiksniams.
Namo inžinerijos ir interjero centras NIC - čia atviros durys svajonių namams
Populiarūs Vieno Aukšto Namų Projektų Pavyzdžiai
- Modernus vieno aukšto, keturių kambarių, mišraus stogo gyvenamasis namas.
- Modernus vieno aukšto, plokščio stogo gyvenamasis namas su stogine, dvejais darbo kambariais, erdvia svetaine bei jaukia lauko terasa.
- Modernus vieno aukšto, L formos, penkių kambarių gyvenamasis namas daugiašlaičiu stogu su garažu, erdvia svetaine bei lauko terasa.
- Kompaktiškas vieno aukšto namas sutapdintu stogu su vienviečiu garažu, darbo kambariu.
- Nedidelis ir modernus vieno aukšto šeimos namas pritaikytas siauram sklypui.
- Erdvus vieno aukšto namas su dviviete stogine.
Vieno aukšto namų projektas - tinkamas sprendimas užsakovams, norintiems pasistatyti iki 80 kv. m ar iki 100 kv. m individualų gyvenamąjį namą.
Kartotiniai projektai yra iš anksto suprojektuoti A++ energinės klasės metalo karkaso individualūs vieno aukšto gyvenamieji namai.
NP5 bendrovė savo klientams siūlo tiek planinius, tiek fasadinius kartotinio vieno aukšto namo projekto pakeitimus atsižvelgiant į užsakovo norus.
Architektai ir projektuotojai kiekvieną pastatą kuria unikalų ir tarnaujantį Jums savo paprastumu, universalumu, tikslumu, inovatyvumu ir efektyvumu.
Profesionalių specialistų komandos parengti vieno aukšto namų projektai 2019 m., 2020 m. ar ankstesniais laikotarpiais - yra ypač skirtingi ir įvairūs.
Nuo labai modernaus, sutapdintu stogu, stogine automobiliui ir didele terasa vieno aukšto namo, kurio dviejuose fasaduose į terasą ir vidinį kiemą suprojektuoti dideli langai, taip pat užtikrinamas visiškas atitikimas A++ klasės energinio efektyvumo reikalavimams.
Iki išraiškingų architektūrinių formų, šlaitinių stogų, didelės kvadratūros, erdvių kambarių namų.
Siekiame pasitikėjimu ir skaidrumu grįsto santykio su klientu, todėl mūsų kainodara ypač aiškiai apibrėžta.
Kartotiniai vieno aukšto namo projektai jau turi preliminarias sąmatas, tačiau galutinės priklauso nuo daugybės veiksnių: pastato ploto, projekto parengimo termino, užsakovo išskirtinių pageidavimų, naudojamų gamybos ir statybos technologijų, išorės ir vidaus apdailos medžiagų ir kitų susijusių veiksnių.
Norėdami sužinoti, kokia Jūsų planuojamo namo projekto parengimo kaina, kreipkitės į mus.
Namų projektai iki 180 kv.m. Erdvūs, funkcionalaus išplanavimo, nesudėtingų konstrukcijų, tinkantys 4-7 asmenų šeimai namų projektai iki 180 kv.m.
Namo projektas Marius - vienas populiaresnių projektų dėl funkcionalaus išplanavimo bei nedidelės statybų kainos.
Erdvus vieno aukšto namo planas, atitiksiantis keturių asmenų šeimos poreikius.
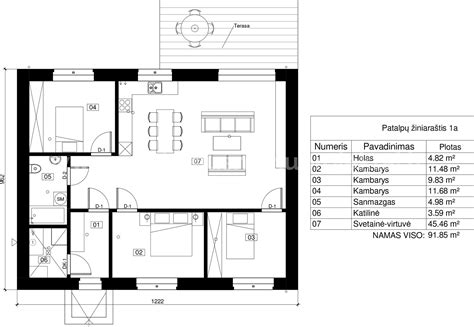
Gyvenamojo namo projektas 3-4 asmenų šeimai. Vieno aukšto name suprojektuotos patalpos: tambūras, holas, salonas su valgomuoju, virtuvė, sandėliukas, miegamasis kambarys su rūbine ir vonios kambariu,...
Namo projektas „Dalius”. Vieno aukšto namo projektas keturių asmenų šeimai. Projektas gali būti koreguojamas pagal individualius poreikius.
Namo projektas „Mindaugas” vienas populiaresnių Enamai architektų sukurtų mažų namų projektų. Populiarus dėl labai nedidelės statybų kainos bei funkcionalaus išplanavimo. Galimybė gyventi...
Tradicinės "lietuviškos" architektūros, ekonomiškas namas dviejų asmenų šeimai. Vieno aukšto su mansarda, dvišlaičiu stogu, medžio ir tinko fasadų apdaila. Pirmame aukšte svetaine, virtuve,...
Užmiesčio gyvenamojo namo projektas, Vieno aukšto su mansarda. Dvišlaitis togas, fasadai iš apdailinės dekoro plokštės. Namas skirtas 3-4 asmenų šeimai. Pirmame aukšte: tambūras, katilinė,...
Medinio karkaso 142m2 namo projektas. Namas dvišlaičiu stogu, 1 aukšto su vitrininiais langais. L formos terasa per dvi namo puses, 3 miegamieji, erdvi virtuvė, valgomasis ir svetainė bendroje erdvėje...
Manto Stonkaus ir Gelminės Glemžaitės namų turas!
Naujas mūsų architektų kurtas gyvenamojo namo projektas pavadinimu Afroditė. Tai modernių linijų, nesudėtingų konstrukcijų gyvenamasis namas, kuris atitinka energinio naudingumo klasę A+.
Modernus vieno aukšto gyvenamasis namas. Namas tinka 4-5 asmenų šeimai. Pastate yra tamburas, katilinė, garažas. Erdvūs: valgomasis, virtuvė, svetainė. Vonia su wc, bei trys gyvenamieji kambariai....
Vienbutis 1 aukšto su garažu 2 automobiliams, gyvenamasis namas skirtas 4-6 asmenų šeimai. Pirmame aukšte centrinėje dalyje projektuojamas didelis gyvenamasis kambarys su virtuve ir valgomuoju iš...
Vienbutis 1 aukšto su mansarda ir garažu 2 automobiliams, gyvenamasis namas skirtas 4-6 asmenų šeimai. Pirmame aukšte centrinėje dalyje projektuojamas didelis gyvenamasis kambarys iš kurio pro vitrininį...
Tai šiuolaikiškas, nedidelio ploto gyvenamasis namas, atitinkantis nedidelės šeimos poreikius su erdve svetainės ir virtuvės zona, erdviu, du automobilius talpinančiu garažu. Trys nedideli kambariai,...
Pristatome modernų, išraiškingų linijų gyvenamąjį namą skirtą gyventi 4-5 asmenų šeimai. Name suprojektuotas dvivietis garažas, du vaikų kambariai, šeimininkų miegamasis su atskiru vonios...
Idomus ir patogus vieno aukšto, su cokoline pastato dalimi namas, keturių asmenų šeimai. Suprojektuotas konkrečiam sklypui su šlaitų, cokoliniame aukšte paliekant technines, pagalbines patalpas...
Gyvenamojo namo projektas - Kevinas. Vienas populiariausių enamai.lt architektų namo planas - tai nedidelis tačiau labai funkcionalus gyvenamasis namas puikiai tenkinantis keturių asmenų šeimos...
Ekonominis dviejų aukštų vieno buto gyvenamas namas. Namas tinka 4-7 asmenų šeimai. Pirmame aukšte yra svetainė, virtuvė, valgomasis, darbo kambarys, tambūras, sanmazgas, katilinė, garažas...
Tai - vienbučio, gyvenamojo namo projektas. Priklausomai nuo kliento pageidavimų ir norų, projekte gali būti daromi įvairūs pakeitimai. Šis gyvenamasis namas - optimalus erdvės, jaukumo ir natūralumo...
Nedidelio ploto, itin paprastos konstrukcijos gyvenamasis namas su trim miegamaisiais ir darbo kambariu. Erdvė svetainės ir virtuvės zona leis patogiai vakaroti visai šeimai, bei pasikviesti nemenką...
L formos namų projektai jau daugelį metų yra labai populiarūs. Dažniausiai vieno aukšto namai su mansarda, garažu bei terasa puikiai atliepia šeimų poreikius, juose viską galima išdėstyti itin patogiai.
Vieno aukšto L formos namų projektus, dviaukščius, su garažu ar terasa visų pirma verta rinktis todėl, kad jie išskirtinai suteikia vidinio kiemo privatumo jausmą.
Vieno aukšto L formos namai gali turėti mansardą, kurioje, esant reikalui, įsirengsite papildomas patalpas - darbo, vaikų kambarį ar miegamąjį. Tokie projektai puikia pritaikyti 4-5 asmenų šeimai.
Daugelis bijo, kad L formos namuose lieka nenaudingo ploto - ilgų, siaurų koridorių. Tačiau tai tikrai netiesa.
L formos vieno aukšto namų projektai gali būti ir su garažu.