Eksplikacija yra svarbus dokumentas, kuris pateikia išsamią informaciją apie patalpas bute ar name. Ji naudojama planuojant remontą, įrengiant baldus ar tiesiog norint geriau suprasti turimą erdvę. Šiame straipsnyje pateikiamas 1 kambario buto eksplikacijos pavyzdys ir paaiškinimai, kaip ją suprasti ir pritaikyti savo poreikiams.
Eksplikacijoje paprastai nurodomi šie duomenys:
- Patalpos numeris
- Patalpos pavadinimas (pvz., virtuvė, kambarys, vonia)
- Patalpos plotas (kvadratiniais metrais)
- Papildoma informacija (pvz., langų ir durų skaičius, apdailos medžiagos)
Žemiau pateikiama lentelė su pavyzdine 1 kambario buto eksplikacija:
How-To: Reading Construction Blueprints [Architectural #1 - Doors, Windows, Layout]

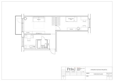
Pavyzdinė 1 Kambario Buto Eksplikacija
| Patalpos numeris | Patalpos pavadinimas | Patalpos plotas (kv. m) |
|---|---|---|
| 1 | Kambarys | 18.5 |
| 2 | Virtuvė | 6.2 |
| 3 | Vonios kambarys | 3.1 |
| 4 | Koridorius | 4.8 |
Šis pavyzdys rodo, kaip gali atrodyti tipinė 1 kambario buto eksplikacija. Kiekviena eilutė apibūdina atskirą patalpą, nurodant jos numerį, pavadinimą ir plotą.
Kaip Naudoti Eksplikaciją?
Eksplikacija gali būti naudinga įvairiais atvejais:
- Planuojant remontą: Žinant patalpų plotą, galima tiksliau apskaičiuoti reikalingų medžiagų kiekį.
- Įrengiant baldus: Eksplikacija padeda suprasti, kokio dydžio baldai tilps į patalpą.
- Perkant ar parduodant butą: Eksplikacija yra svarbus dokumentas, kuris suteikia informacijos apie buto išplanavimą ir plotą.
Taigi, eksplikacija yra nepakeičiamas įrankis kiekvienam, kuris nori geriau suprasti savo būstą ir efektyviai planuoti jo įrengimą ar remontą.

Eksplikacijoje taip pat gali būti nurodyta papildoma informacija, tokia kaip langų ir durų skaičius, apdailos medžiagos ir kitos svarbios detalės. Ši informacija gali būti naudinga planuojant remontą ar įrengiant baldus.
Išsamesnis Eksplikacijos Pavyzdys
Pateikiame išsamesnį eksplikacijos pavyzdį su papildoma informacija:
| Patalpos numeris | Patalpos pavadinimas | Patalpos plotas (kv. m) | Apdailos medžiagos | Kita informacija |
|---|---|---|---|---|
| 1 | Kambarys | 18.5 | Tapetai, laminatas | 2 langai, 1 durys |
| 2 | Virtuvė | 6.2 | Plytelės, dažai | 1 langas, dujinė viryklė |
| 3 | Vonios kambarys | 3.1 | Plytelės | Dušo kabina, WC |
| 4 | Koridorius | 4.8 | Tapetai, laminatas | Įmontuota spinta |
Šiame pavyzdyje matome, kad kiekviena patalpa turi ne tik numerį, pavadinimą ir plotą, bet ir papildomą informaciją apie apdailos medžiagas ir kitas svarbias detales.

Manytume, kad toks erdvių išplanavimas yra pakankamai optimalus - koridorių ploto yra minimaliai.
Eksplikacija yra svarbus dokumentas, kuris pateikia išsamią informaciją apie patalpas bute ar name. Ji naudojama planuojant remontą, įrengiant baldus ar tiesiog norint geriau suprasti turimą erdvę.
tags: #1 #kambario #buto #patalpu #eksplikacija