Planuojant statyti namą, vienas svarbiausių klausimų - tinkamo projekto pasirinkimas. Šiame straipsnyje aptarsime 180 kv. m namo projektą, kuris puikiai tinka standartiniam 6 arų sklypui. Toks namas gali būti puikus pasirinkimas šeimai, vertinančiai erdvę, komfortą ir modernų dizainą.
6 arų sklypas miestuose ilgą laiką buvo laikomas standartu, todėl jame tikrai puikiai suplanuosite tiek vieno, tiek dviejų aukštų namą, skirtą ne tik dviejų asmenų, bet ir didesnei šeimai.

Kodėl verta rinktis 180 kv. m namą?
180 kv. m namas suteikia pakankamai erdvės patogiam gyvenimui. Tokiame name galima įrengti:
- Erdvią svetainę sujungtą su virtuve
- Kelis miegamuosius
- Darbo kambarį
- Dvi ar daugiau vonios patalpas
- Sandėliuką
- Katilinę
- Garažą arba stoginę automobiliui
Be to, 180 kv. m namas leidžia įgyvendinti įvairius interjero dizaino sprendimus ir pritaikyti erdvę pagal individualius poreikius.
Projektavimo ypatumai
Rekomenduojame rinktis dviejų aukštų namą. Renkantis namo projektą 4 arų sklypui, verta kreipti dėmesį į kompaktiškumą, tuomet namas gali būti pritaikytas net ir 5 asmenų šeimai, o jo plotas gali būti didesnis nei 100 kvadratinių metrų.
Kuriant 180 kv. m namo projektą 6 arų sklype, svarbu atsižvelgti į šiuos aspektus:
- Sklypo forma ir orientacija: Tai padės optimaliai išdėstyti namą sklype ir išnaudoti natūralų apšvietimą.
- Namo aukštų skaičius: Vienas aukštas ar du - pasirinkimas priklauso nuo šeimos poreikių ir sklypo dydžio. Didesnei šeimai vertėtų rinktis dviejų aukštų namą.
- Erdvių išplanavimas: Svarbu apgalvoti, kaip bus išdėstytos patalpos, kad būtų patogu gyventi ir judėti.
- Energetinis efektyvumas: Pasirinkus tinkamas medžiagas ir technologijas, galima sumažinti šildymo ir vėsinimo išlaidas.
- Estetika: Namo išvaizda turėtų derėti su aplinka ir atitikti Jūsų skonį.
Mūsų puslapyje galėsite išsirinkti kartotinį projektą arba susikurti individualų planą. Namų projektai pailgam sklypui taip pat gali būti kuo įvairiausi. Pavyzdžiui siauram, pailgam sklypui puikiausiai tiks mūsų populiarus projektas „Karolis“, kurio plotis nesiekia net 10 metrų, tačiau bendras plotas - kone 240 kvadratų.
Pavyzdiniai projektai ir jų kainos
Žemiau pateikiami keli pavyzdiniai namų projektai ir jų kainos:
Namo projektavimas Karolis, Vilnius Šiuolaikiškas, dviejų aukštų, keturių asmenų šeimos namas pritaikomas standartiniame 6 arų sklype. Projekto kaina - 2860 Lt. Namo techninis projektas, dalis - statinio architektūra. Statytojui pageidaujant galima paruošti projektą derinimui - statybos leidimo „išėmimui“. Sklypo planai, inžinerinių tinklų ir konstrukcinės dalies projektai už papildomą kainą. Organizuotume specialistus sklypo tiksliesiems matavimams, topografinei nuotraukai.
- Bendrasis namo plotas: 131,5 kv. m
- Naudingas namo plotas: 109,20 kv. m
- Gyvenamasis namo plotas: 99,20 kv. m

Individualių namų projektai. Šiuolaikiški, modernūs ar klasikiniai gyvenamųjų namų projektai iki 80 kv.m, 120 kv.m, iki 180 kv.m ir virš 180 kv.m. Parašykite paklausimą ir sulauksite konkrečių pasiūlymų iš 56 specializuotų įmonių.
Pavyzdiniai namų projektai
Vieno aukšto namo projektas "Skaistė"
- Plotis: 7 m
- Ilgis: 14.4 m
- Aukštis: 4.41 m
- Aukštai: 1
- Kambarių sk.: 3
- Virtuvių sk.: 1
- Sanmazgų sk.: 2
- Gyvenamas pl.: 60.71 m²
- Bendras pl.: 80.49 m²
- Užstatytas...
Gyvenamojo namo projektas „Tautvydas“
- Plotis: 11.56 m
- Ilgis: 13.21 m
- Aukštis: 4.45 m
- Aukštai: 1
- Kambarių sk.: 3
- Virtuvių sk.: 1
- Sanmazgų sk.: 2
- Gyvenamas plotas: 56.3 m²
- Bendras plotas:...
Dviejų aukštų mažo namo projektas "Tajus"
- Plotis: 6.6 m
- Ilgis: 7.6 m
- Aukštis: 6.6 m
- Aukštai: 2
- Kambarių sk.: 3
- Virtuvių sk.:...
Gyvenamojo namo projektas „Augustas“
- Plotis: 8.12 m
- Ilgis: 8.32 m
- Aukštis: 6.9 m
- Aukštai: 2
- Kambarių sk.: 4
- Virtuvių sk.: 1
- Sanmazgų sk.: 2
- Gyvenamas plotas: 47.1 m²
- Bendras plotas...
Dviejų aukštų namo projektas "Eitvydė"
- Plotis: 7.38 m
- Ilgis: 7.83 m
- Aukštis: 7.0 m
- Aukštai: 2
- Kambarių sk.: 3
- Virtuvių sk.:...
Žinoma, namų projektai mažiems sklypams turi būti labai apgalvoti.
Statybos leidimas ir dokumentacija
Planuojant statyti namą, svarbu pasirūpinti reikiamais dokumentais ir gauti statybos leidimą. Statytojui pageidaujant galima paruošti projektą derinimui - statybos leidimo „išėmimui“.
Norėčiau statyti namą iki 100-120 kv.m, bet man sako, kad iki 80 kv.m yra supaprastinta statyba. Paaiškinkite, ar tikrai sudėtingiau statyti namą virš 80 kv.m ir kuo tai skiriasi.
Domina pilnos apimties vieno aukšto namo projekto iki 180m2 kaina BE įkėlimo į Infostatybą ir SU įkėlimu (prašymo sąlygoms ir reikalavimams išduoti pateikimu ir statybą leidžiančio dokumento išdavimu).
Pavyzdys: 180 kv. m namas Avižieniuose
Netoli Vilniaus esanti Avižienių gyvenvietė dėl savo išvystytos infrastruktūros pritraukė gausų būrį naujakurių, todėl čia nemažai naujos statybos namų. 9 arų sklype 2008 m. pastatytas dviejų aukštų, 180 kv. Pirmame namo aukšte yra erdvi svetainė su bendra virtuve, darbo kambarys, tualetas su kriaukle ir didelis sandėliukas su geoterminio šildymo įranga. Antrame aukšte - trys kambariai, iš kurių du turi terasas-balkonus. Miegamajame įrengta rūbų spinta. Yra dvi vonios patalpos.
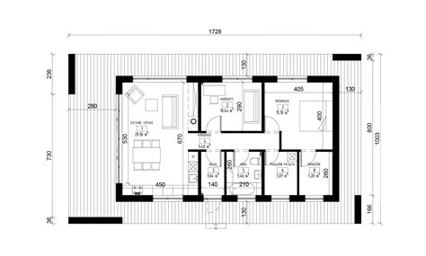
180 kv. m, 5 kambariai, 2 aukštai. Pirmame aukšte svetainė kartu su virtuve, darbo/svečių kambarys, san. mazgas, katilinė ir garažas 2 automobiliams. Namas pastatytas iš keramikinių molio blokelių, sienos apšiltintas polistireniniu putplasčiu, stogas akmens vata. Stogo danga - profiliuota plieninė skarda. Plastikiniai langai. Įrengtos mūrinės pertvaros, nutinkuotos sienos. Grindys - nebetonuotos, be šildymo sistemos.
12 km nuo Vilniaus centro arba 20 minučių automobiliu.
Pastaba: Straipsnyje pateiktos kainos yra orientacinės. Tiksli projekto kaina priklauso nuo individualių poreikių ir pasirinktų medžiagų.
Tikimės, kad šis straipsnis padės Jums apsispręsti dėl 180 kv. m namo projekto 6 arų sklype. Sėkmės planuojant ir statant savo svajonių namus!