Apie 300 tūkst. vilniečių gyvena sovietmečiu statytuose namuose, o dalis jų - blokiniai, kurių būklė tik patenkinama. Nors lietuviai šluoja butus senuose namuose, ekspertai įspėja dėl kai kurių jų, pavyzdžiui, blokinių namų, kokybės. Juose gali kauptis pelėsis, drėgmė, dėl įtrūkių susidaryti skersvėjis.
Neretai jaunos šeimos nenori būsto sename daugiabutyje, nors tokį įsigyti yra pigiau nei naujosios statybos name. Nepatogus patalpų planas, prasta techninė būklė atbaido ne vienus. Vis dėlto, racionaliai perplanavus patalpas, įmanoma susikurti tokius namus, kokių norisi.
Svarbiausia - įvertinti savo gyvenimo būdą ir poreikius, gyventojų skaičių, o baldų planas tai atspindės. Standartinio dviejų kambarių buto išplanavimas gali būti keičiamas keliais skirtingais būdais, vieni jų - labai nesudėtingi, kitiems būtinas projektas ir leidimas.

Blokinių Namų Ypatumai ir Problemos
Vilniaus miesto savivaldybės duomenimis, sostinėje yra daugiau nei 7 tūkst. daugiabučių gyvenamųjų namų, o iš jų daugiau kaip pusė statyti 1960-1993 metų laikotarpiu.
V. sako: „Didžiausios bėdos - tarpblokinių siūlių nesandarumas, sieninių plokščių supleišėjimas, išporėjimas, stogo dangos nesandarumas, vidaus inžinerinių tinklų - vidaus nuotekų, vandentiekio, šilumos tinklų - fizinis susidėvėjimas, inžinerinės įrangos, pavyzdžiui, liftų, nusidėvėjimas. Dėl šių priežasčių blokiniai namai yra energetiškai neefektyvūs - gyventojai suvartoja daug šilumos šaltuoju metų laiku, taip pat gali jausti diskomfortą dėl drėgmės, pastebėti skersvėjį, pelėsį“.
KTU mokslininkė J. Černeckienė išskiria, kad vienas didžiausių blokinių namų trūkumų - didelės šildymo sąskaitos ir išbalansuota šildymo sistema: „Daugelyje blokinių pastatų buvo įrengiamos vienvamzdės šildymo sistemos, taip taupant ir darbo sąnaudas, ir metalą. Tokioje šildymo sistemoje butai yra priklausomi vienas nuo kito. Jeigu viename aukšte šildymo įrenginys buvo ne visai legaliai pakeistas, tai dažniausiai išbalansuoja viso namo gyvenimą.
Vis dėlto, VGTU profesorius J. teigia: „Jeigu tinkamai prižiūrimos konstrukcijos, neperplanuojamos sienos, pastato medžiaga yra šimtametė. Betonas yra ilgaamžis, o stiprumo charakteristikomis niekuo nenusileidžia mūrui. Tačiau pastatą reikia prižiūrėti, reikia prižiūrėti sujungimo siūles, jas tvarkyti.
Anot jos, negalima išskirti, kuriais metais statyti blokiniai namai yra kokybiškesni: „Problema - ne amžius. Žinoma, vienas ar kitas pastatas gali būti pastatytas ne taip kokybiškai, bet tai labai individualūs atvejai. Nėra taip, kad kuriam nors laikotarpiui buvo būdingi nekokybiški pastatai. Visi jie buvo statomi laikantis statybos normų“, - sako J.
Blokinių Namų Kainos
Nekilnojamojo turto ekspertas M. Mikočiūnas teigia, kad apie 70 proc. „Jei kalbėsime apie Vilnių, blokiniame name, priklausomai nuo buto dydžio, pigiausių butų kaina (neskaičiuojant bendrabutinių butų) prasideda vidutiniškai nuo 40-45 tūkst. eurų. Didžiausi keturių kambarių butai kainuoja apie 100-110 tūkst. eurų“, - sako M.
NT bendrovės „Ober-haus“ 2021 metų balandžio duomenimis, gyvenamuosiuose rajonuose, senos statybos 2 kambarių buto blokiniame name kvadratinio metro kaina gali siekti nuo 1 260 iki 1 580 eurų.
Vis dėlto M. sako: „Yra žmonių, kurie vengia nebūtinai senos statybos, bet vengia blokinių namų. Šie pastatai turi prastą šilumos izoliaciją ir ypač kenčia kampiniai, pirmo aukšto ir paskutinio aukšto butų gyventojai. Be to, neretai pasitaiko problemų dėl stogo ar pelėsio. Taip yra ne visada. Kai kurie pastatai tvarkingai prižiūrimi, pakeistas stogas, bet blokiniuose namuose problemų pasitaiko gana dažnai, todėl žmonės jų vengia“, - sako M.
Nekilnojamojo turto ekspertas M. Mikočiūnas taip pat atkreipia dėmesį, kad žmonės, norintys blokiniame name įsigyti būstą, turi pagalvoti ir apie didesnį nei 15 proc. „Banko kreditavimo sąlygos norint įsigyti butą blokiniame name yra truputį prastesnės: naujos statybos būstui pradinis įnašas yra 15 proc., o senos - 20-25 proc. Tačiau tai priklauso ir nuo besiskolinančio žmogaus kreditingumo“, - aiškina M.
A. sako: „Teikdami būsto paskolą visų pirma vertiname individualias kliento galimybes ją grąžinti. Jeigu kliento finansinė padėtis atitinka reikalavimus, tuomet žiūrime ir į jo įkeičiamą turtą. Jis turėtų būti priimtinas kaip būsto paskolos grąžinimo užtikrinimo objektas, t. y. skirtas gyventi, priimtinos būklės (arba klientas turi turėti aiškų planą, kaip tą būklę pagerins) ir pakankamai likvidus. Tad puikios būklės butas senos statybos name likvidžioje vietoje lygiai taip pat užtikrina paskolos gavimą kaip ir naujos statybos butas toje pačioje vietovėje“.
S. sako: „Visais atvejais kliento pajamos turi būti pakankamos, visų kliento turimų įsipareigojimų suma negali viršyti 40 proc. jo mėnesinių pajamų, maksimalus paskolos laikotarpis negali viršyti 30 metų ir klientas privalo būti sukaupęs ne mažesnį nei 15 proc. Vis dėlto verta atkreipti dėmesį, kad tam tikrais atvejais bankui įvertinus perkamo būsto likvidumą gali būti prašoma ir didesnio pradinio įnašo, tai gali galioti ir senesnės statybos būstui“.
Patogus vonios kambarys: koks jis? II INTERJERO TV
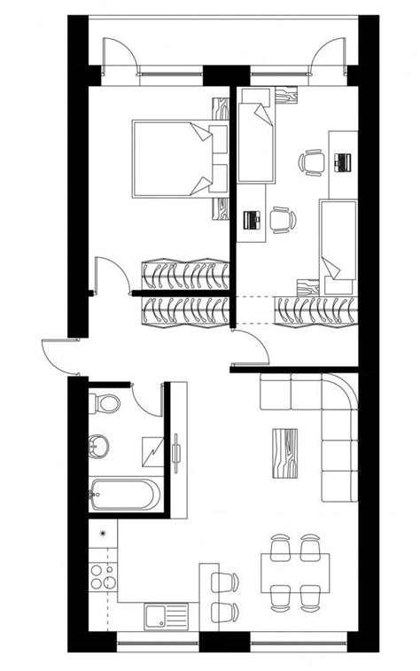
Buto Perplanavimo Galimybės
Jauna šeima, senos statybos daugiabutyje įsigijusi trijų kambarių butą, nusprendė jį radikaliai perplanuoti. Taigi buvo nutarta mažą virtuvę perkelti į didįjį kambarį, o jos vietoje įrengti šeimininkams labai reikalingą darbo erdvę. Taip pat nuspręsta perdaryti vonios kambarį - iki tol buvusias atskiras tualeto ir vonios patalpas sujungti į vieną bendrą.
Buto šeimininkė - architektė, todėl jai nesunku buvo racionaliai ir patogiai perplanuoti butą. Norint įgyvendinti visas idėjas, pirmiausia reikėjo išspręsti inžinerinę problemą: esamas virtuvės ir higienos patalpų vamzdynas nebetiko - jį teko suprojektuoti ir sumontuoti iš naujo. Virtuvėje stovėjusią dujinę viryklę reikėjo perkelti į kambarį, tiksliau - anapus sienos. Bet viryklę prijungti prie dujotiekio kainuoja brangiau nei visiškai atsisakyti dujų įvado.
Dažniausi Išplanavimo Keitimo Atvejai
- Virtuvės sujungimas su svetaine: Koridoriaus sąskaita padidintas vonios kambarys, virtuvė sujungta su svetaine, panaikintas mažai naudingas koridorius - toks baldų planas dažniausiai sutinkamas nedideliuose naujos statybos butuose.
- Kambarių atskyrimas: Atskiri kambariai - praktiškesnis pasirinkimas jaunai šeimai su vaikais, nuomai butą ruošiantiems savininkams ar tiesiog tiems, kurie nenori virtuvės svetainėje.
- Drabužinės formavimas: Jei nesate pasiryžę griauti sienų, galite kambarius atskirti ir suformuoti drabužinę.

Sienų Griovimas ir Leidimai
Populiarus, nors turbūt daugeliu atvejų - ne visada teisėtas - išplanavimo variantas. Tokiems darbams būtinas kapitalinio remonto projektas, kaimynų sutikimai ir leidimas darbams vykdyti. Jei angą išsigriausite jūs, jūsų kaimynai po jumis, kaimynai virš jūsų, kaimynai gretimame bute, tikrai susilpninsite savo namo konstrukcijas. Tačiau Jūs galite šias erdves sujungti laikydamiesi reikalavimų - niekas jūsų nepaskųs dėl neteisėtų darbų, nekils klausimų parduodant tokį būstą.
Su sienomis blokiniame sovietiniame daugiabutyje reikėtų elgtis ypač atsakingai. Tokios konstrukcijos namas- lyg kortų namelis: sienos ir perdangos čia surinktos iš stambių gelžbetonio plokščių („kortų“), kurių dydis lygus visai kambario sienai ar viso kambario plotui. Plokščių viduje įbetonuota laikančioji armatūra yra lyg audinio siūlai, kuriuos nukirpus, audinys išyra.
Teisės aktai numato, kad prieš atlikdamas laikančiųjų konstrukcijų pertvarkymą, buto savininkas privalo supažindinti kaimynus su planuojamais statybos darbais, gauti daugiau kaip 50proc. namo gyventojų pritarimą, parengti kapitalinio remonto projektą ir gauti teigiamą ekspertizės išvadą projektui.
Nelaikančiomis pertvaromis blokinių daugiabučių butuose paprastai būna atitverti tik sanitariniai mazgai, o visos kitos (kambarių) sienos dirba kaip laikančiosios konstrukcijos. Konkrečiu atveju gali būti išimčių, todėl visada verta kreiptis į specialistą.
Remonto Darbų Eiga
- I etapas.
- Architekto paslaugos išplanavimo paieškai ir buto kapitalinio remonto projekto parengimui.
- Laikančiųjų konstrukcijų projektinių sprendinių derinimas su namo administratoriumi.
- II etapas.
- Projekto ekspertizės užsakymas ir ekspertų paslaugų apmokėjimas yra įstatymais numatyta statytojo prievolė planuojant konstrukcijų demontavimą butuose.
Patarimai Prieš Įsigyjant Butą
Buto įsigijimas yra vienas lengviausių NT sandorių, todėl dauguma labai greitai ir lengvai apsisprendžia pirkti patikusį butą. Vienaip ar kitaip išsirinkto buto būklę reikėtų įsivertinti plačiąja prasme: kuo detaliau ir išsamiau įsivertinsite butą ir atkreipsite dėmesį į visus niuansus, tuo teisingesnis bus Jūsų sprendimas ir tuo mažiau reikės gailėtis dėl naujojo pirkinio.
Prieš įsigydami turtą nepatingėkite paieškoti informacijos apie rajono, miesto, vietovės, gretimų sklypų detaliuosius planus. Tai padės Jums suprasti, ko galima tikėtis priešais langus ar šalia jūsų būsimų namų.
Taip pat turi įtakos toliau išvardinti niuansai:
- Prastame rajone ir gatvėje esančių butų pardavimo ir nuomos kainos yra mažesnės nei visuose kituose mikrorajonuose.
- Visuomet sunku yra parduoti “dalį” buto - t.y. su kitais bendraturčiais, kad ir kur jis bebūtų.
- Ekonominės klasės butus, kurių brangi eksploatacija, likviduoti taip pat gana sudėtinga.
- Sunkiausiai realizuojami didelio ploto (4 ir daugiau kambarių) senos statybos butai blokiniuose namuose.
- Dar vienas sunkiau parduodamų butų segmentas yra didelio ploto butai, esantys 5/6 aukšte namuose be LIFTO.
Dokumentų Patikrinimas
Skirtingai nei visi kiti nekilnojamo turto sandoriai - buto dokumentų patikrinimas yra ganėtinai nesudėtinga procedūra. Dokumentų nėra daug, jie yra lengvai skaitomi ir suprantami praktiškai visiems. Suklastoti BUTO VĮ „Registrų centro“ nuosavybės išrašą yra ypatingai paprasta, nes tai dokumentas be „apsaugų“ ir jį padirbti gali bet kas, kas šiek tiek moka naudotis kompiuteriu ir spausdintuvu.
Siūlyčiau nepasikliauti sėkme, nerizikuoti ir kreiptis į teisininką arba notarą konsultacijos-pagalbos. Kreipkitės į teisininką ar notarą, šie specialistai turi prieigą prie VĮ „Registrų centro“ duomenų bazės, tam kad buto nuosavybės duomenys butų atnaujinti šią akimirką.
Kodėl Jums prieš preliminarios sutarties ar kitokio susitarimo pasirašymą reikia naujausio (šios dienos) VĮ „Registro centro“ išrašo?- Juridinis buto statusas, t.y.
- Jame gali būti įrašytas vienas savininkas ar keli.
- Labai svarbi yra nuosavybės pažymėjimo išdavimo data.
Idealiausiai būtų gauti visų savininkų raštišką patvirtinimą apie tai, kad jie žino apie sandorį, jo detales ir jie sutinka ir nori turtą parduoti Jums už sutartą kainą ir sąlygas (tinka elektroniniu laišku, bet idealiausia raštu).
Taip pat reikalingi:
- Galiojantis savininko asmens dokumentas.
- Buto planas/ adresas/ vieta dokumentuose turi atitikti tą turtą, kurį apžiūrite realybėje.
Jeigu butas išnuomotas, tokiu atveju pirmumo teisę pirkti turi nuomininkas. Perkant kotedžą ar butą statiniuose su bendraturčiais pirmumo teisė įgyti turtą suteikiama bendraturčiams.
PASTABA: Jeigu savininkas įvardija, jog yra bendraturčių sutikimai, leidimai (galimybė) įsirengti židinį, pakeisti paskirtį, išplanavimą, perkelti įėjimą ar kt. svarbiausia, jis turi būti galiojantis.
| Kriterijus | Sena Statyba (Blokinis Namas) | Nauja Statyba |
|---|---|---|
| Kaina | Žemesnė | Aukštesnė |
| Šilumos Izoliacija | Prastesnė | Geresnė |
| Pradinis Įnašas (Paskola) | 20-25% | 15% |
| Išplanavimas | Dažnai nepatogus, reikalauja perplanavimo | Dažnai patogesnis, bet gali būti mažo ploto |
| Techninė Būklė | Gali būti prasta, reikalingas remontas | Paprastai gera, bet gali būti trūkumų |
tags: #2k #buto #isplanavimas #blokiniame #name