Planuojant statybas ar įsigyjant būstą, svarbu suprasti, kaip skaičiuojamas namo plotas ir kas į jį įeina. Šiame straipsnyje išsamiai aptarsime, ar į namo plotą įskaičiuojamas balkonas, kokie teisės aktai tai reglamentuoja Lietuvoje, ir pateiksime praktinių patarimų planuojantiems statybas ar įsigyjantiems būstą.

Maksimalus Sklypo Užstatymo Plotas: Pagrindiniai Reikalavimai
Planuojant statybas, vienas svarbiausių aspektų yra maksimalaus sklypo užstatymo ploto nustatymas. Šis rodiklis tiesiogiai veikia galimą pastato dydį ir jo išdėstymą sklype. Lietuvoje šį procesą reglamentuoja įvairūs teisės aktai ir statybos techniniai reglamentai.
Maksimalus sklypo užstatymo tankis nustatytas lentelėje „Maksimalūs sklypo užstatymo tankio dydžiai“. Statybos techninio reglamento STR 2.02.09:2005 „Vienbučiai ir dvibučiai gyvenamieji pastatai" 9 priedo 1 punkte nurodyta, kad maksimalus sklypo užstatymo intensyvumas yra 0,4, vienbučio blokuoto užstatymo tipo, kai namai statomi atskiruose sklypuose - 0,8, išskyrus atvejus, kai teritorijų planavimo dokumentuose užstatymo intensyvumas nustatytas mažesnis.
Nauji gyvenamieji namai gali būti statomi ne mažesniuose kaip 400 m² sklypuose.
Svarbu: Gyvenamasis namas ir jo priklausiniai nuo gatvių raudonųjų linijų turi būti statomi ne arčiau kaip 3 m, išskyrus atvejus, kai mažesnis atstumas numatytas teritorijų planavimo dokumentuose.
Sklypuose, didesniuose kaip 2500 m², maksimalus sklypo užstatymo tankumas nustatomas pagal formulę: 50000/F, %, kur F - sklypo plotas, m².
Žemės Ūkio Paskirties Sklypai
Kai žemės ūkio paskirties žemės sklype, išskyrus ūkininko sodyboje, žemės naudotojui priklausančiais gyvenamaisiais pastatais ir jų priklausiniais užstatyti plotai nesuformuoti atskirais sklypais, maksimalus sklypo užstatymo tankis skaičiuojamas pagal Nekilnojamojo turto kadastro duomenis faktiniam užstatytos teritorijos naudmenų plotui (pastatų, kiemų, aikštelių užimtai žemei ir kitai tiesioginiam statinių eksploatavimui naudojamai žemei).
Žemės ūkio paskirties sklype ūkininko sodyboje namo užimamas žemės plotas neturi viršyti 1000 m², o bendras užstatymo tankis - 50 %.
Užstatymo tankio žemės ūkio paskirties žemės sklype, išskyrus ūkininko sodyboje, skaičiavimas nurodytas Lietuvos Respublikos teritorijų planavimo įstatymo 20 straipsnio 5 dalyje.
Svarbu: Atkreipkite dėmesį, kad dauguma pusė sklypo būna užstatyta, bet pagal įstatymą tik apie 20% galima užstatyti. Nuo ko priklauso užstatymo procentas? Žiūrėti daugiau...
Atstumai Iki Sklypo Ribos
Minimalus atstumas nuo atskirai statomo Namo ir jo priklausinių (išskyrus nesudėtingus statinius) iki kaimyninio žemės sklypo ribos turi būti ne mažesnis kaip 3 metrai. Minimalus atstumas tiesiamų inžinerinių tinklų iki kaimyninio žemės sklypo ribos turi būti ne mažesnis kaip 1 metras, jei nepažeidžiami kaimyninio žemės sklypo savininko (naudotojo) interesai.
Mažinant pastatų atstumą iki kaimyninio žemės sklypo ribos arba blokuojant gretimų žemės sklypų pastatus, turi būti išlaikomi gaisrinės saugos reikalavimai (žr. Gaisrinės saugos pagrindinius reikalavimus, Gyvenamųjų pastatų gaisrinės saugos taisykles) ir gautas kaimyninio žemės sklypo savininko sutikimas raštu, išskyrus atvejus, kai pastatų blokavimas numatytas patvirtintuose teritorijų planavimo dokumentuose.
Mažinant tiesiamų inžinerinių tinklų atstumą iki kaimyninio žemės sklypo ribos, reikalingas šio sklypo savininko sutikimas raštu.
Namo ir jo priklausinių, inžinerinių tinklų statyba, rekonstravimas ir remontas neturi daryti neleistino poveikio kaimyniniam žemės sklypui ir jame esantiems statiniams. Šių statinių esminis reikalavimas „mechaninis atsparumas ir pastovumas" turi būti užtikrintas pagal 2011 m. kovo 9 d. Europos Parlamento ir Tarybos reglamento (ES) Nr.
Svarbu: Sodų bendrijoje atstumas iki sklypo ribos skaičiuojasi nuo pamato ar nuo stogo? Žiūrėti daugiau...
Kiti Svarbūs Aspektai
Planuojant statybas, svarbu atkreipti dėmesį ir į kitus aspektus, kurie gali turėti įtakos maksimaliam sklypo užstatymo plotui:
- Teritorijų planavimo dokumentai (detalieji planai, bendrieji planai).
- Specialūs reikalavimai saugomoms teritorijoms.
- Gaisrinės saugos reikalavimai.
- Sanitarinės apsaugos zonos.
Taip pat svarbu žinoti, kaip skaičiuojamas pastato tūris (ūkinės paskirties pastatas). Ar pagal išorinį pastato kontūrą? Ar naudingas plotas dauginamas iš naudingo ploto aukščio? Žiūrėti daugiau...
Statant pirtį, nereikalaujančią leidimo nei projekto ūkininko sodyboje, už apsauginės vandens zonos, kaip skaičiuojasi statinio BENDRO PLOTO kvadratūra? Iš vidaus ar iš laukinės pusės? Ir kokio kvadratūros limito negalima viršyti su šiuo statiniu. Žiūrėti daugiau...
Kaip apskaičiuojamas mansardos plotas, jei statinys yra II kategorijos? STR reglamente rašo, kad nišos iki 1.6 m aukščio ir ploto apskaita neįeina. Kodėl tuomet pirmojo aukšto plotas skaičiuojamas pagal išorines sienas? Žiūrėti daugiau...
Taip pat svarbu, ar į bendrą patalpos plotą įskaičiuojamas židinių, koklių krosnių plotas? Žiūrėti daugiau...
Sklypo Užstatymo Tankio Pavyzdys
Jei sklypas yra 34 arai (3400 m²), maksimalus užstatymo tankumas skaičiuojamas pagal formulę: 50000/3400 = 14,7 %. Tai reiškia, kad maksimalus užstatymo plotas yra 3400 m² * 0,147 = 499,8 m².
Svarbu: Sklypas yra bendrasavininkų. Vienas valdo 15 arų, kitas 19 arų. Kiek kuris gali užstatyti savo teritoriją kvadratiniais metrais? Žiūrėti daugiau...
Planuojant sodo namo statybą mieste, svarbu žinoti, kaip skaičiuojamas sodo namo plotas miesto teritorijoje? Planuojama statyti iki 80m2, tačiau vieni teigia, kad skaičiuojamas namo užstatymo plotas neturi viršyti 80kv., kiti, kad vidaus gyvenamasis plotas. Taip pat bus kasamas šulinys ir nuotėkų valymo įrenginys, kokie reikalavimai ir reikalingi dokumentai? Žiūrėti daugiau...
Norint rekonstruoti senos statybos gyvenamąjį namą ir keisti stogo konstrukciją į plokščią stogą, reikėtų pasidomėti, ar su EPS100 polisterolu išsilyginti ir laiptuotai... Žiūrėti daugiau...
Kiek kainuotų vienaaukščio namo 170kv.m su garažu konstrukciniai skaičiavimai A++ klasė? Žiūrėti daugiau...
Suprojektuotas karkasinis naujos statybos pagalbinis ūkinis pastatas, bet galvojama, jog norėtume jį statyti iš blokelių. Statant iš blokelių ir jį apšildant, jo ilgis ir plotis padidėtų po 26cm. Norėjau paklausti ar reikia keisti projektą keičiant namo konstrukcijas (iš medinio karkaso į mūrą)? Žiūrėti daugiau...
Gavus statybos leidimą buvo pradėta namo ir ūkinio pastato statybos darbai. Gyvenamas namas jau stovi, norime pradėti ūkinio pastato statybas. Bet iškilo viena problema, ūkinio pastato sienos turi būti daromos iš Arko M18 blokelių. Projektuojant niekas nepasakė, kad Arko blokeliai yra vieni iš brangiausių. Ar galiu pakeisti Arko blokelius į kitus blokelius, kokios yra taisyklės? Žiūrėti daugiau...
Norint pakelti alytnamio antrą aukštą ir palikti vienšlaitį stogą, reikėtų atkreipti dėmesį į karkaso stiprumą. Ar galite atsakyti į ką turėtume atkreipti dėmesį prieš darant rekonstrukciją? Žiūrėti daugiau...
Planuojant statybas, svarbu žinoti, kokią informaciją be namo projekto ir geologinių tyrimų reikia pateikti konstruktoriui, kad paskaičiuotų pamatų apkrovas? Ar šiame etape būtina žinoti tikslų blokelių ir stogo dangos tipą (čerpė ar skarda)? Man atrodo, kad ta informacija turi didelę įtaką namo pamatų apkrovų paskaičiavimui. Man pasirodė keista, kad konstruktorius šitos informacijos nesiteiravo. Mano klausimas būtų ar konstruktoriui pakanka žinoti, kad namas bus mūrinis ir kiek aukštų ar visgi reikia detalesnės informacijos kaip aš ir galvoju? Žiūrėti daugiau...
Svarbu: Prieš pradedant statybas, rekomenduojama pasikonsultuoti su specialistais - architektais, inžinieriais, teisininkais - ir išsiaiškinti visus galiojančius reikalavimus bei apribojimus.
Šis straipsnis suteikia tik bendrą informaciją apie maksimalų sklypo užstatymo plotą. Kiekvienas atvejis yra individualus, todėl būtina atsižvelgti į konkretaus sklypo ypatumus ir galiojančius teisės aktus.
Bendras ir Naudingas Būsto Plotas: Esminiai Skirtumai
Planuojant ar įsigyjant būstą, svarbu suprasti skirtumus tarp gyvenamojo ir naudingo ploto. Šie du rodikliai yra esminiai, vertinant ne tik būsto dydį, bet ir jo funkcionalumą bei atitiktį teisiniams reikalavimams.
Renkantis būstą, svarbu atkreipti dėmesį ne tik į kainą, bet ir į tai, kas įeina į bendrą ir naudingą plotą. Šie du rodikliai yra skirtingi ir gali turėti įtakos mokesčiams bei pačios gyvenamosios erdvės suvokimui.
Šiame straipsnyje išnagrinėsime, kuo skiriasi bendras ir naudingas buto plotas, remiantis Lietuvos Respublikos teisės aktais ir reglamentais.
Kas Yra Naudingas Plotas?
Pagal Statybos techninio reglamento STR 2.02.01:2004 „Gyvenamieji pastatai“ 4.12 punktą, būsto naudingasis plotas - tai gyvenamųjų kambarių ir kitų būsto patalpų (virtuvių, sanitarinių mazgų, koridorių, įstatytų spintų, šildomų lodžijų ir kitų šildomų pagalbinių patalpų) suminis grindų plotas.
Į naudingąjį plotą neįeina balkonų, lodžijų, terasų, nešildomų rūsių grindų plotas.

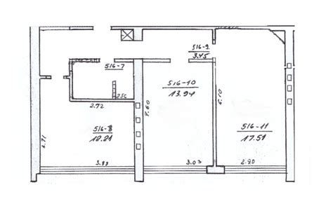
Pavyzdinis buto planas, kuriame matomas patalpų išdėstymas ir plotai.
Gyvenamasis Plotas: Kas Į Jį Įeina?
Gyvenamasis plotas skaičiuojamas kaip gyventi skirtų uždarų ar pusiau uždarų patalpų plotų suma. Tai apima:
- Svetaines
- Valgomuosius
- Miegamuosius
- Darbo kabinetus
- Gyvenamuosius kambarius
- Virtuves ir kitas gyventi tinkančias šiltas patalpas, kurių grindų plotas didesnis kaip 4 m2.
Šios patalpos turi turėti apšiltintas atitvarines konstrukcijas ir galimybę būti normaliai šildomos žiemą, neatsižvelgiant, ar jose yra stacionariniai šildymo įrenginiai, ar ne.
Pagalbinis plotas yra visų gyvenamųjų patalpų, išskyrus kambarius, verslo patalpas, rūsius (pusrūsius) ir garažus, plotų suma.
Taisyklių 145 punkte nustatyta: „Gyvenamosios patalpos (buto gyvenamuosiuose ir negyvenamuosiuose pastatuose; vieno buto namo; atskiro kambario su bendrojo naudojimo patalpomis) plotas skaičiuojamas kaip gyventi skirtų uždarų ar pusiau uždarų patalpų plotų suma.
Pastato Bendras Ir Naudingas Plotas
Statybos techninio reglamento STR 1.05.06:2010 „Statinio projektavimas“ 2 straipsnio 6.10 papunktyje nustatyta: „pastato bendras plotas - visų patalpų ir jų priklausinių (balkonų, lodžų, ant stogo numatomų terasų, verandų ir kitų priklausinių) plotų suma, m2. Į bendrą plotą neįskaitomas uždarų laiptinių, atvirų ar pusiau atvirų laiptinių laiptotakių ir tarpinių aikštelių, liftų šachtų plotas“.
6.11 papunktyje nustatyta: „pastato naudingas plotas - visų šiltomis atitvaromis atitveriamų ar atitvertų patalpų plotų suma, m2.
Apibendrinant, galima teigti, kad į bendrą plotą įeina visos buto patalpos ir jų priklausiniai, o į naudingą - tik tos patalpos, kurios yra apšildomos ir atitvertos.
Kaip Apskaičiuojamas Namo Plotas?
Namo plotas apskaičiuojamas pagal ORGANIZACINIS TVARKOMASIS STATYBOS TECHNINIS REGLAMENTAS STR 1.14.01:1999 PASTATŲ PLOTŲ IR TŪRIŲ SKAIČIAVIMO TVARKA.
Gyvenamojo pastato bendrasis plotas yra visų jame esančių patalpų, tarp jų - ir funkcionaliai susietuose priestatuose, plotų suma. Skaičiuojamos visos patalpos, kurios turi keturias sienas, įskaitant ir sublokuotą garažą.
Neskaičiuojama terasa, rūsys, pastogė (išskyrus atvejus, kai pastogėje įrengtos patalpos, kurių aukštis ne mažesnis kaip 1,60 m). Į plotą įskaičiuojamas iš atitvarų plotas.
Statybos techninio reglamento STR 1.05.06:2010 „Statinio projektavimas“ 2 straipsnio 6.10 papunktyje nustatyta: „pastato bendras plotas - visų patalpų ir jų priklausinių (balkonų, lodžų, ant stogo numatomų terasų, verandų ir kitų priklausinių) plotų suma, m2. Į bendrą plotą neįskaitomas uždarų laiptinių, atvirų ar pusiau atvirų laiptinių laiptotakių ir tarpinių aikštelių, liftų šachtų plotas“.
Svarbu! Tiksliuosius skaičiavimus atlieka matininkai ruošdami inventorinę bylą.
Namo Statyba Iki 80 Kv. M: Ką Reikia Žinoti?
Jei planuojate statyti namą iki 80 kv. m, svarbu žinoti, kaip apskaičiuojamas namo plotas ir kokie leidimai reikalingi. Jus domina II gr. nesudėtingas statinys - Gyvenamasis namas iki 80 kv. m. ir 8,5 m. aukščio.
Skaičiuojamas bendras patalpų plotas be rūsio (antžeminės dalies), su sąlyga, kad rūsiai negali būti įrengti už pastatų ribų.
Nors rūsio plotas skaičiuojamas į pastato bendrąjį plotą, nesudėtingas II-os gr. statinys gyvenamasis namas yra ne daugiau kaip 80 kv.m. visų statinio patalpų ploto, skaičiuojant tik antžeminę dalį.
Į 80 kv. m. plotą įeina visos visų aukštų patalpos (įskaitant pastogės patalpas ir garažą) išskyrus rūsį ir terasas.
Rašytinis pritarimas supaprastintam statybos projektui privalomas statant II grupės nesudėtingą statinį - MIESTE, konservacinio prioriteto ar kompleksinėje saugomoje teritorijoje, kultūros paveldo objekto teritorijoje, kultūros paveldo vietovėje.

Namo projekto iki 80 kv. m pavyzdys
Net ir tuo atveju, kai statybą leidžiantis dokumentas nėra privalomas, rekomenduojama kreiptis į architektą, kuris įvertins esamą sklypo situaciją, patars kaip geriausia organizuoti vidaus erdves, kokias pasirinkti statybines medžiagas ir konstrukcinius sprendinius, esant poreikiui paruoš kokybišką interjero projektą pagal jūsų poreikius ir finansines galimybes.
Reikalavimai Daugiabučiams Gyvenamiesiems Namams
Projektuojant daugiabučius gyvenamuosius namus, būtina atsižvelgti į tam tikrus reikalavimus:
- Bent vienas kambarys bute turi būti ne mažesnis kaip 16 kv. m.
- Bendras vonios ir tualeto plotas - ne mažesnis kaip 4 kv. m.
- Vienam žmogui turi tekti ne mažiau kaip 14 kv. m.
- Kiekviename daugiabučiame name turi būti suprojektuoti žmonėms su negalia skirti butai, kurie turi sudaryti ne mažiau kaip 5 proc. visų butų. Šis reikalavimas taikomas tiems namams, kurie yra ne toliau kaip 500 m kelio pėsčiomis iki viešojo transporto stotelių. Pastatuose be lifto butai žmonėms su negalia turi būti planuojami pirmajame aukšte.
- Nuo 2014 m. visi Lietuvoje naujai statomi pastatai turi atitikti B energinio naudingumo klasę, o nuo 2016 m. - ne žemesnę kaip A klasę.
Kaip išmatuoti namo plotą kvadratūra! | Atsitiktinė paieška nekilnojamajame turte
Svarbūs Aspektai Perkantiems Būstą
R. Pleteras pabrėžia, kad renkantis naujos statybos būstą, būtina atkreipti dėmesį į tai, ką vystytojas nurodo kaip parduodamo būsto naudingąjį plotą.
Eksperto teigimu, renkantis būstą, klientui visuomet rekomenduojama prašyti naudingąjį būsto plotą įrodančių dokumentų, pvz. buto plano. Buto plane svarbu pastebėti, ar jame nėra įtraukos papildomos ar pagalbinės erdvės, tokios kaip balkonas ir terasa ar sandėliukas.
Įprastai tokiame dokumente nurodomas ne tik buto išdėstymas, bet ir judėjimo srautai, mat labai svarbu iš anksto žinoti, kad, pavyzdžiui, pastačius pastatą, viduryje buto neatsiras atraminė kolona, kuri, be abejonės, mažintų buto plotą.
Visų papildomų ir pagalbinių patalpų plotai turi būti skaičiuojami atskirai ir jokiu būdu neįtraukiami į buto plotą. Pasitaiko atvejų, kai NT skelbimuose buto plotas nurodomas su balkono ar terasos plotu. Taip elgtis negalima, - pabrėžia R. Pleteras ir ragina domėtis būtent naudinguoju būsto plotu.
Visgi, R. Pleteras sako, kad statomo būsto išmatavai kartais gali skirtis nuo tų, kai būstas jau būna pastatytas, tačiau dažniausiai skirtumai būna minimalūs, o dėl jų rekomenduojama sutarti preliminarioje būsto pirkimo-pardavimo sutartyje.
Ekspertas patikina, jei pastatytame bute išryškėja pažeidimai dėl būsto ploto, klientas visuomet gali reikalauti sumažinti perkamo būsto kainą arba išvis atsisakyti sudaryti galutinę pirkimo-pardavimo sutartį.
Tuo pačiu „Bonava Lietuva“ vadovas pažymi, kad visi būsto pirkimo proceso metu kylantys klausimai turi būti sprendžiami iki pagrindinės sutarties pasirašymo.
Pagrindiniai Skirtumai Tarp Naudingojo Ir Gyvenamojo Ploto
Apibendrinant, štai pagrindiniai skirtumai tarp naudingojo ir gyvenamojo ploto:
| Savybė | Naudingasis plotas | Gyvenamasis plotas |
|---|---|---|
| Apibrėžimas | Bendras gyvenamųjų kambarių ir kitų patalpų grindų plotas (virtuvės, san. mazgai, koridoriai ir kt.) | Gyventi skirtų uždarų ar pusiau uždarų patalpų plotų suma (svetainės, miegamieji, virtuvės ir kt.) |
| Įeina | Visos šildomos patalpos | Tik gyvenamieji kambariai |
| Neeina | Balkonai, lodžijos, terasos, nešildomi rūsiai | Pagalbinės patalpos (koridoriai, san. mazgai ir kt.) |
Balkono Įstiklinimas Ir Plotas: Teisiniai Aspektai
LRT.lt laišką parašė vilnietė Kotryna, kuri susiduria su problema norėdama parduoti butą renovuotame name. Ji pasakoja pasikvietusi matininkę, mat nuo paskutinių matavimų bute būta pokyčių. Tačiau Registrų centras atmeta matininkės pateiktą bylą, nes butas yra sudėtinė gyvenamojo namo dalis, o šis Registrų centre po renovacijos nebuvo registruotas nei namo administratoriaus, nei VšĮ „Atnaujinkime miestą“, besirūpinančios namų modernizacijos programa sostinėje.
„Rudens viduryje įdėjau skelbimą dėl parduodamo buto renovuotame name. Susidomėjęs pirkėjas atsirado, o aš pasižadėjau savo lėšomis pasamdyti matininką, kuris atliks kadastrinės bylos matavimus, nes nuo to laiko, kada buvo atlikti paskutiniai matavimai, bute įvyko šiek tiek pakitimų - vonios kambarys buvo sujungtas su tualetu. Be kita ko, po renovacijos įstiklinto balkono plotas yra įskaičiuojamas į bendrą plotą. Užsakiau matininkę, kuri atvyko ir išsimatavo butą, parengė dokumentus. Tačiau prieš dokumentų pateikimą man, sulaukiau skambučio iš matininkės, kuri pranešė, kad namo renovacija nėra registruota Registrų centre, tad atskiro buto matavimai taip pat negali būti fiksuojami“, - rašo moteris.
Moteris pasakoja bandžiusi aiškintis situaciją tiek su namą administruojančia bendrove, tiek su daugiabučių atnaujinimo programą sostinėje administruojančia VšĮ „Atnaujinkime miestą“, tačiau „kaltų“ rasti nepavyko.
Gyventojai Noro Atlikti Matavimus Neišreiškė
Namo renovacija besirūpinusios įstaigos „Atnaujinkime miestą“ juristas Evaldas Bračiulis teigia, kad ši vadovaujasi konkretaus daugiabučio namo butų ir kitų patalpų savininkų daugumos sprendimu, pavedimo sutartimi ir galiojančiais teisės aktais.
„Kadastrinių matavimų, įgyvendinant ar įgyvendinus minimo daugiabučio namo atnaujinimo projektą, nenumatė nei namo savininkų sprendimas, nei pavedimo sutartis, nei projekto įgyvendinimo metu galioję teisės aktai. Teisės aktai projekto administratoriui numatė pareigą registruoti Registrų centre, jeigu projektui parengti ir (ar) įgyvendinti lengvatinis kreditas teikiamas butų ir kitų patalpų savininkų vardu ir dėl šio kredito su finansuotoju sudaroma lengvatinio kreditavimo sutartis. Tačiau kreditas minimo namo projektui įgyvendinti yra sudarytas viešosios įstaigos „Atnaujinkime miestą“ vardu“, - kalba E.Bračiulis.
Pasak pašnekovo, nekilnojamojo turto kadastre įrašyti statinių kadastro duomenys turi būti keičiami, jeigu statiniai buvo rekonstruoti, kapitaliai remontuoti ar jeigu buvo atlikti nekilnojamosios kultūros paveldo vertybės tvarkymo statybos darbai. Namo renovacija, E.Bračiulio teigimu, yra paprastasis remontas, o ne rekonstrukcija ar kapitalinis remontas, tad statinio kadastriniai duomenys neprivalėjo būti keičiami.
Pašnekovas pažymi, kad „Atnaujinkime miestą“ iki šio administruotuose 107 daugiabučių namų atnaujinimo projektuose kadastriniai matavimai ar registravimas Registrų centre nebuvo atliekami.
Problemą Sprendžia Susitarimo Būdu
Registrų centro atstovas spaudai Mindaugas Samkus sako, kad Registrų centras neturi duomenų, kiek daugiabučių namų po atliktos renovacijos nėra registruojami, todėl negali atsakyti, ar tai - dažnai pasitaikanti problema.

Irmanto Gelūno / 15min nuotr./Registrų centras
„Tokie atvejai galbūt yra dažnesni didmiesčiuose. Daugiabučio renovacijos darbų eiga ir užbaigimas priklauso nuo pasirinkto rangovo ir projekto administratoriaus, kurie įsipareigoja atlikti sutartus darbus“, - sako jis.
Tuo metu nekilnojamojo turto paslaugų bendrovės „Inreal“ pardavimų vadovė Sigita Jokšienė pažymi, kad būsto pirkėjas ir pardavėjas neretai sutaria, jog sena buto byla nėra kliūtis sudaryti sandorį.
„Namo renovacija, kai yra daromi pastato išorės pakeitimai, pavyzdžiui įstiklinami balkonai, yra registruojama kaip ir nauja statyba. Taigi, pirmiausia turi būti įregistruotas visas namas, o tada - atskiri butai. Butų savininkai, norėdami parduoti butą nepasibaigus renovuoto namo registracijai, gali tai daryti, bet tik pagal senus matavimus, nes naujų Registrų centras nepriims, kol nebus sutvarkyta viso namo byla. Kita vertus, jei pardavėjas ir pirkėjas susitaria, tuomet sena buto byla nėra kliūtis sudaryti sandorį. Galbūt tai ir yra priežastis, jog tokie atvejai nėra dažni. Atsakingų už renovuoto namo įregistravimą reikėtų ieškoti sutartyje su įmone, kuri atliko renovaciją“, - teigia „Inreal“ grupės pardavimų vadovė Sigita Jokšienė.