Planuojant ar įsigyjant būstą, svarbu suprasti skirtumus tarp gyvenamojo ir naudingo ploto. Šie du rodikliai yra esminiai, vertinant ne tik būsto dydį, bet ir jo funkcionalumą bei atitiktį teisiniams reikalavimams. Šiame straipsnyje išsamiai aptarsime, kas sudaro gyvenamąjį ir naudingąjį plotą, kaip jie apskaičiuojami ir kokie teisės aktai tai reglamentuoja Lietuvoje.

Naujos statybos daugiabutis namas
Naudingas Plotas: Apibrėžimas ir Skaičiavimas
Kas yra naudingas plotas?
Pagal Statybos techninio reglamento STR 2.02.01:2004 „Gyvenamieji pastatai“ 4.12 punktą, būsto naudingasis plotas - tai gyvenamųjų kambarių ir kitų būsto patalpų (virtuvių, sanitarinių mazgų, koridorių, įstatytų spintų, šildomų lodžijų ir kitų šildomų pagalbinių patalpų) suminis grindų plotas.
Svarbu pažymėti, kad į naudingąjį plotą neįeina balkonų, lodžijų, terasų ir nešildomų rūsių grindų plotas.
Nekilnojamojo turto objektų kadastrinių matavimų ir kadastro duomenų surinkimo bei tikslinimo taisyklės nustato, kad Gyvenamosios patalpos plotas skaičiuojamas kaip gyventi skirtų uždarų ar pusiau uždarų patalpų plotų suma.
- Ppg - pagrindinį plotą sudaro visos patalpos, išskyrus patalpas, kurios įskaitomos į pagalbinį plotą.
- Pagalbinis plotas - visų gyvenamųjų patalpų, išskyrus kambarius, verslo patalpas, rūsius (pusrūsius) ir garažus, plotų suma.
- Naudingasis plotas - tai bendras gyvenamųjų kambarių ir kitų patalpų (virtuvių, sanitarinių mazgų, koridorių, įstatytų spintų, šildomų lodžijų ar kitų pagalbinių patalpų) grindų plotas.
Kaip skaičiuojamas patalpų plotas?
Patalpų plotas skaičiuojamas tarp pastato vidinių sienų. II gr. statinio 80m2 plotas yra visų patalpų suma.
Patalpų plotų skaičiavimai nurodyti Kadastrinių matavimų ir kadastro duomenų surinkimo bei tikslinimo taisyklėse:
Gyvenamųjų patalpų bendras plotas (Pgp) apskaičiuojamas pagal formulę:
Pgp = Pg + Pp + Pv + Pkt
Kur:
- Pg - gyvenamasis plotas
- Pp - pagalbinis plotas (pagalbinis naudingas plotas, pagalbinis nenaudingas plotas)
- Pv - verslo plotas
- Pkt - kitas plotas (rūsio (pusrūsio) patalpų plotas, garažo patalpų plotas)
Svarbu: Rūsio (pusrūsio) ar garažo patalpos, į kurias patenkama tiesiog iš gyvenamosios patalpos, įskaičiuojamos į šios gyvenamosios patalpos bendrąjį plotą.

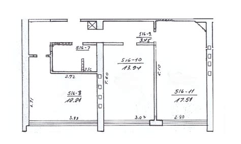
Pavyzdinis buto planas, kuriame matomas patalpų išdėstymas ir plotai.
Skirtumas Tarp Bendro ir Naudingo Ploto
Renkantis būstą, svarbu atkreipti dėmesį ne tik į kainą, bet ir į tai, kas įeina į bendrą ir naudingą plotą. Šie du rodikliai yra skirtingi ir gali turėti įtakos mokesčiams bei pačios gyvenamosios erdvės suvokimui.
Šiame straipsnyje išnagrinėsime, kuo skiriasi bendras ir naudingas buto plotas, remiantis Lietuvos Respublikos teisės aktais ir reglamentais.
Pagal Statybos techninio reglamento STR 1.05.06:2010 „Statinio projektavimas“ 2 straipsnio 6.10 papunktį:
Pastato bendras plotas - visų patalpų ir jų priklausinių (balkonų, lodžų, ant stogo numatomų terasų, verandų ir kitų priklausinių) plotų suma, m2. Į bendrą plotą neįskaitomas uždarų laiptinių, atvirų ar pusiau atvirų laiptinių laiptotakių ir tarpinių aikštelių, liftų šachtų plotas.
Tuo tarpu, 6.11 papunktis apibrėžia:
Pastato naudingas plotas - visų šiltomis atitvaromis atitveriamų ar atitvertų patalpų plotų suma, m2.
Apibendrinant, galima teigti, kad į bendrą plotą įeina visos buto patalpos ir jų priklausiniai, o į naudingą - tik tos patalpos, kurios yra apšildomos ir atitvertos.
Pagal Statybos techninio reglamento STR 2.02.01:2004 „Gyvenamieji pastatai“ 4.12 punktą:
Būsto naudingasis plotas - gyvenamųjų kambarių ir kitų būsto patalpų (virtuvių, sanitarinių mazgų, koridorių, įstatytų spintų, šildomų lodžijų ir kitų šildomų pagalbinių patalpų) suminis grindų plotas.
Į naudingąjį plotą neįeina balkonų, lodžijų, terasų, nešildomų rūsių grindų plotas.
Svarbūs Aspektai Perkant Būstą
Renkantis naujos statybos būstą, būtina atkreipti dėmesį į tai, ką vystytojas nurodo kaip parduodamo būsto naudingąjį plotą. Visuomet rekomenduojama prašyti naudingąjį būsto plotą įrodančių dokumentų, pvz., buto plano.
Buto plane svarbu pastebėti, ar jame nėra įtrauktos papildomos ar pagalbinės erdvės, tokios kaip balkonas ir terasa ar sandėliukas.
Visų papildomų ir pagalbinių patalpų plotai turi būti skaičiuojami atskirai ir jokiu būdu neįtraukiami į buto plotą. Domėkitės būtent naudinguoju būsto plotu.
Jei pastatytame bute išryškėja pažeidimai dėl būsto ploto, klientas visuomet gali reikalauti sumažinti perkamo būsto kainą arba išvis atsisakyti sudaryti galutinę pirkimo-pardavimo sutartį.
Nesudėtingi Statiniai: Kas Tai?
Pagal STR 1.01.07:2010 „NESUDĖTINGI STATINIAI“ apibrėžimą, jus domina II gr. nesudėtingas statinys - gyvenamasis namas iki 80 kv. m bendro ploto ir 8,5 m aukščio. Svarbu suprasti, kas įeina į šį plotą ir kaip jis skaičiuojamas.
Kaip skaičiuojamas plotas?
Bene dažniausiai užduodamas klausimas - kaip skaičiuojamas plotas? Kas įeina į 80 kv. m plotą? Ar galima įsirengti rūsį ar pastogę? Ar skaičiuojasi garažas?
Nesudėtingų statinių iki 80 kv. m atveju, skaičiuojamas bendras visų antžeminės dalies patalpų plotas. Patalpa - sienomis ir kitomis atitvaromis apribota nustatytos paskirties erdvė.
Patalpų plotų skaičiavimai nurodyti Kadastrinių matavimų ir kadastro duomenų surinkimo bei tikslinimo taisyklėse:
Gyvenamųjų patalpų bendras plotas (Pgp) apskaičiuojamas pagal formulę:
Pgp = Pg + Pp + Pv + Pkt
Kur:
- Pg - gyvenamasis plotas
- Pp - pagalbinis plotas: pagalbinis naudingas plotas; pagalbinis nenaudingas plotas
- Pv - verslo plotas
- Pkt - kitas plotas: rūsio (pusrūsio) patalpų plotas; garažo patalpų plotas
PASTABA: Rūsio (pusrūsio) ar garažo patalpos, į kurias patenkama tiesiog iš gyvenamosios patalpos, įskaičiuojamos į šios gyvenamosios patalpos bendrąjį plotą.
Nors rūsio plotas skaičiuojamas į pastato bendrąjį plotą, nesudėtingas II-os gr. statinys - gyvenamasis namas - yra ne daugiau kaip 80 kv. m visų statinio patalpų ploto, skaičiuojant tik antžeminę dalį.
Kitaip tariant, į 80 kv. m plotą įeina visos šiltos ir šaltos patalpos (įskaitant pastogės patalpas ir garažą), išskyrus rūsį ir terasas. Patalpų plotas skaičiuojamas tarp pastato vidinių sienų.
Svarbu atkreipti dėmesį, kad didžiausias leistinas atstumas tarp laikančių sienų turi būti ne didesnis nei 6 m, o pastato aukštis - iki 8,5 m.

Statinio aukščio matavimas
Ar reikalingas leidimas?
Rašytinis pritarimas supaprastintam statybos projektui privalomas statant II grupės nesudėtingą statinį - mieste, konservacinio prioriteto ar kompleksinėje saugomoje teritorijoje, kultūros paveldo objekto teritorijoje, kultūros paveldo vietovėje.
Net ir tuo atveju, kai statybą leidžiantis dokumentas nėra privalomas, rekomenduojama kreiptis į architektą, kuris įvertins esamą sklypo situaciją, patars, kaip geriausia organizuoti vidaus erdves, kokias pasirinkti statybines medžiagas ir konstrukcinius sprendinius, esant poreikiui paruoš kokybišką interjero projektą pagal jūsų poreikius ir finansines galimybes.
Reikalavimai projektuotojams
Nesudėtingų statinių projektavimui, statybai, statinio projekto vykdymo priežiūrai turi teisę vadovauti fizinis asmuo, baigęs aukštojo ar specialiojo vidurinio mokslo studijas ir įgijęs architektūros, geologijos ir minerologijos mokslų studijų krypčių, technologijos mokslų studijų srities ar šioms kryptims ir sričiai prilyginamą išsilavinimą.
Šio išsilavinimo nereikia, kai supaprastintas statinio projektas rengiamas pasinaudojant kito tokio statinio (kai išlaikomi statinio matmenys ir statybos produktai) supaprastinto projekto sprendiniais; tokiu atveju valstybės tarnautojams pateikiamas ir statinio supaprastintas projektas, kurio sprendiniais pasinaudota.
Pastatų Plotų Skaičiavimo Tvarka
Pastatų plotų skaičiavimo tvarką nustato ORGANIZACINIS TVARKOMASIS STATYBOS TECHNINIS REGLAMENTAS STR 1.14.01:1999 PASTATŲ PLOTŲ IR TŪRIŲ SKAIČIAVIMO TVARKA.
"17. Gyvenamojo pastato bendrasis plotas yra visų jame esančių patalpų, tarp jų - ir funkcionaliai susietuose priestatuose, plotų suma."
- Skaičiuojamos visos patalpos, kurios turi keturias sienas. Garažas, jeigu jis sublokuotas, taip pat.
- Neskaičiuojama terasa, rūsys, pastogė.
- Pastogėje į plotą įskaičiuojamos patalpos ar jų dalys, kurios turi aukštį ne mažiau kaip 1,60 m.
- Į plotą įskaičiuojamas iš atitvarų plotas.
- Tiksliuosius skaičiavimus atlieka matininkai ruošdami inventorinę bylą.
Bendras Plotas pagal STR 1.05.06:2010
Pagal STR 1.05.06:2010 "STATINIO PROJEKTAVIMAS" (2015 m. birželio 22 d. pakeitimas):
6.10 pastato bendras plotas - visų patalpų ir jų priklausinių (balkonų, lodžų, ant stogo numatomų terasų, verandų ir kitų priklausinių) plotų suma, m2. Į bendrą plotą neįskaitomas uždarų laiptinių, atvirų ar pusiau atvirų laiptinių laiptotakių ir tarpinių aikštelių, liftų šachtų plotas.
Reikalavimai Daugiabučių Namų Projektavimui
Projektuojant daugiabučius gyvenamuosius namus, bent vienas kambarys bute turi būti ne mažesnis kaip 16 kvad. m, bendras vonios ir tualeto plotas - ne mažesnis kaip 4 kvad. m, o vienam žmogui turi tekti ne mažiau kaip 14 kvad. m.
Taip pat, kiekviename daugiabučiame name turi būti suprojektuoti žmonėms su negalia skirti butai, kurie turi sudaryti ne mažiau kaip 5 proc. visų butų. Šis reikalavimas taikomas tiems namams, kurie yra ne toliau kaip 500 m kelio pėsčiomis iki viešojo transporto stotelių. Pastatuose be lifto butai žmonėms su negalia turi būti planuojami pirmajame aukšte.
Nuo 2014 m. jau visi Lietuvoje naujai statomi pastatai turi atitikti B energinio naudingumo klasę, o nuo 2016 m. - ne žemesnę kaip A klasę.
Klausimai ir Atsakymai
Žemiau pateikiami atsakymai į dažniausiai užduodamus klausimus apie bendrojo naudojimo plotą ir su juo susijusias situacijas:
| Klausimas | Atsakymas |
|---|---|
| Ar sandėliukai, neturintys unikalaus numerio, yra bendrojo naudojimo patalpos? | Jeigu asmeniškai naudojami sandėliukai priskiriami bendrajai dalinei nuosavybei, tai kaimynas teisėtai reikalauja didesnio ploto sandėliuko. Savininkai gali nustatyti naudojimosi bendrojo naudojimo objektu tvarką, proporcingumas yra svarbus argumentas, bet galbūt ne vienintelis, savininkai gali nuspręsti ir kitaip. |
| Ar laiptinė, kuria naudojasi vienas butas iš penkių, yra bendro naudojimo objektas? | Jeigu pastato bendrojo naudojimo objektų apraše būtų nurodyta, kad bendrijo naudojimo objektas - konkreti... |
| Namo išorinė siena sudaryta iš langų. Ar pats stiklo paketas (ne rėmas) yra bendro naudojimo, ar priklauso tam butui, kuriame yra? | Bendrijų įstatyme bendrojo naudojimo objektams, be kita ko, priskiriamos bendrosios pastato konstrukcijos - pagrindinės pastato konstrukcijos (pamatai, visos laikančiosios sienos ir kolonos, išorinės sienos ir vidinės pertvaros, atskiriančios bendrojo naudojimo patalpas nuo skirtingiems savininkams priklausančių butų ir kitų patalpų, perdangos, stogas, fasado architektūros detalės ir išorinės (fasado) konstrukcijos (balkonų, lodžijų ir terasų laikančiosios konstrukcijos,... |
| Kas turi remontuoti balkoną, kurio pagrindas trupėja ir kelia pavojų praeiviams? | Bendrosios pastato konstrukcijos - pagrindinės pastato konstrukcijos (pamatai, visos laikančiosios sienos ir kolonos, išorinės sienos ir vidinės pertvaros, atskiriančios bendrojo naudojimo patalpas nuo skirtingiems savininkams priklausančių butų ir kitų patalpų, perdangos, stogas, fasado architektūros detalės ir išorinės (fasado) konstrukcijos (balkonų, lodžijų ir terasų laikančiosios... |
| Daugiabutyje planuoja keisti liftą, kaip galima išvengti mokėti už lifto pirkimą, jei gyvename pirmame aukšte? | Pirmo aukšto savininkai, jeigu nustatoma, kad jie nesinaudoja liftu, gali nemokėti naudojimosi liftu išlaidų (už lifto elektrą, už lifto valymą ar pan.), bet liftas yra bendras pastato inžinerinis objektas, prie kurio išlaikymo ir techninės priežiūros turi prisidėti visi savininkai. |
tags: #garazas #pagalbinis #plotas