Nedidelių gyvenamųjų namų iki 80 m² projektai tampa vis aktualesni ieškantiems racionalaus, funkcionalaus ir ekonomiško sprendimo. Šiame straipsnyje aptarsime viską, ką reikia žinoti norint sėkmingai įgyvendinti šį projektą Lietuvoje.

Pagrindiniai aspektai planuojant statybą
Planuojant statyti nedidelį, iki 80 m² gyvenamąjį namą Lietuvoje, svarbu žinoti esminius reikalavimus, leidimus ir projektavimo ypatumus.
Leidimai ir reikalavimai
Pagal Lietuvos Respublikos teisės aktus, norint statyti ūkinį pastatą iki 80 m² už miesto ribų arba namą sodo bendrijose iki 50 m² (nuo lapkričio 1-os d. 2024), statybos leidimas nereikalingas. Tačiau, būtina informuoti savivaldybės administraciją apie planuojamą statybą, pateikiant pranešimą, kuriame nurodoma statinio vieta ir tikslai.
Svarbu atkreipti dėmesį į šiuos aspektus:
- Žemės sklypo paskirtis: Įsitikinkite, kad žemės sklypo paskirtis leidžia statyti norimą pastatą.
- Atstumai nuo sklypo ribų: Laikykitės minimalių atstumų nuo sklypo ribų - pastatas turi būti pastatytas ne arčiau kaip 3 metrai nuo kaimyninio sklypo ribos, arba turėkite rašytinį kaimyno sutikimą.
- Pastato aukštis: Atsižvelkite į pastato aukščio ir aukštų skaičiaus apribojimus - dažniausiai leidžiama statyti ne daugiau kaip vieną aukštą su mansarda.
- Energinis naudingumas: Visi naujai statomi gyvenamieji namai turi atitikti A++ energinio naudingumo klasę.
- Kadastriniai matavimai: Įsitikinkite, kad žemės sklypas turi tikslius kadastrinius matavimus.
- Inžineriniai tinklai: Pasirūpinkite inžinerinių tinklų prijungimu: elektros, vandentiekio, kanalizacijos ir kitų komunikacijų įrengimu.
- Saugos ir aplinkosaugos reikalavimai: Net jei pastatas mažas, jis turi atitikti tam tikrus saugos ir aplinkosaugos reikalavimus.
Jeigu sklypas nėra sodų paskirties, tuomet reikia leidimo statybai. Tada reikia daryti lauko vandens- nuotekų ir elektros projektus, atlikti derinimus NŽT ir pateikinėti prašymą leidimui statybai per internetinę info_statyba sistemą.
Kada reikalingas statybos leidimas?
Leidimas privalomas šiais nesudėtingojo (iki 80m²) statinio statybos atvejais:
- Statant ar rekonstruojant I grupės (ūkinis iki 50m² /aukštis iki 5m, sodo iki 80m²/aukštis iki 8,5m) nesudėtingą statinį - kultūros paveldo objekto teritorijoje, kultūros paveldo vietovėje.
- Statant ar rekonstruojant II grupės (gyvenamasis, ūkinis iki 80m²/ aukštis iki 8,5m) nesudėtingąjį statinį mieste, konservacinės apsaugos prioriteto ar kompleksinėje saugomoje teritorijoje, kultūros paveldo objekto teritorijoje, kultūros paveldo objekto apsaugos zonoje, kultūros paveldo vietovėje ir kt.
- Statant II grupės (gyvenamasis iki 80m²/ aukštis iki 8,5m) nesudėtingąjį gyvenamosios paskirties (vieno, dviejų butų) pastatą.
- Rekonstruojant nesudėtingąjį pastatą, kai jo paskirtis keičiama į gyvenamąją.
- Statant ar rekonstruojant I ir (ar) II grupės nesudėtingąjį statinį magistralinio dujotiekio vietovės klasių teritorijose, esančiose 200 metrų atstumu abipus magistralinio dujotiekio vamzdyno ašies.
Projektavimas
Statant namus VISADA reikalingi statinio PROJEKTAI, fasadų, išplanavimo, pjūvio, stogo brėžiniai. Labai patartina bet kokios paskirties namo projektą su architektu uždėti ant toponuotraukos ir sužymėti su matininku namo vietą sklype, kad nebūtų taip, kad namą pridavinėjant paaiškės, jog neišlaikėte būtinų atstumų, neįvertinote tiksliai savo ribų ir pažeidėte kaimyno teises arba apsaugos zonas.
Gyvenamajam namui, nepriklausomai nuo jo dydžio, VISADA bus reikalingas pilnas projektas ir STATYBOS LEIDIMAS su tinklų projektais, energiniu modeliavimu, konstruktyvine ir architektūrine projekto dalimis, nes visų dydžių gyvenamieji namai turi būti sertifikuoti ir atitikti A++ energinę klasę.
Projektavimo darbams biudžetas manau bus kokie 1500-2500 Eur. Dėl tikslios kainos reikia jau skaičiuoti individualiai.
Pagrindiniai dokumentai reikalingi norint pradėti namo 80 kv.m statybą:
- Nuosavybės dokumentas (išrašas iš Registrų centro);
- Sklypo planas (sklypo kadastriniai matavimai);
- Topografinis planas.
Jei yra sklypo bendrasavininkas, reikės jo sutikimo gauti statybą leidžiantį dokumentą Jūsų vardu. Jei sklypas įkeistas, reikės gauti banko sutikimą, jei sklypas sodų bendrijoje, reikės gauti SB sutikimą.
Taip pat reikės sumokėti žyminį mokestį VMI už statybą leidžiantį dokumentą.
Kainos
Namo kuriam reikalingas leidimas statybai kaina būtų +- apie 3000 eurų, o sodo namui iki 80m² (kuriam nereikia leidimo statybai) kaina apie 600 eurų, o jeigu išsirinktumėt tipinį projektą tai 500 eurų.
Už statinio projektą gali tekti mokėti nuo 2400€, o už statybos leidimą VMI - 38€ arba 78€, priklausomai nuo pastato ploto.
Statant namą iki 80 m² Lietuvoje, bendra kaina svyruoja nuo 40 000 iki 150 000 EUR ir daugiau, priklausomai nuo individualių pasirinkimų.
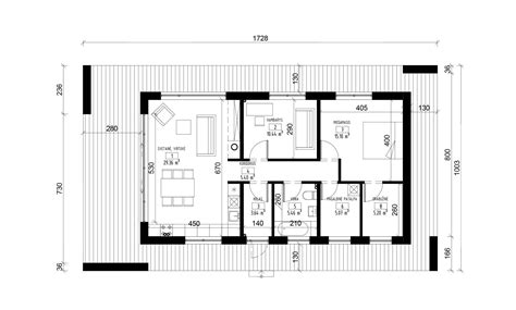
Namo projektų pavyzdžiai ir kainos:
| Projekto pavadinimas | Bendras plotas (m²) | Kambarių skaičius | Statybos kaina (Eur) | Kaina be statybos leidimo (Eur) | Kaina su statybos leidimu (Eur) |
|---|---|---|---|---|---|
| Namo projektas M066 | 83.81 | 4 | 83810.00 | 1290 | 3990 |
| Namo projektas M120 | 79.28 | 4 | 79280.00 | 1290 | 3990 |
| Namo projektas M048 | 79.10 | 3 | 79100.00 | 1290 | 3990 |
Pastaba: Kainos yra orientacinės ir gali skirtis priklausomai nuo konkretaus projekto ir pasirinktų medžiagų.
Patarimai planuojantiems statyti mažo ploto namą
Kuo mažesnė erdvė, tuo atsakingiau ir efektyviau turi būti planuojamas kiekvienas centimetras. Lietuvoje nedidelių namų iki 80 m² kainos labai skiriasi priklausomai nuo vietos, pasirinktos statybų technologijos, medžiagų, darbų sudėtingumo ir galutinio įrengimo lygio.
Visgi, apsisprendus statyti mažo ploto namą, vertėtų nepamiršti, kad atmetus būtinas erdves, gyvenamosioms erdvėms lieka apie 60-65 kv.m. ploto - šiek tiek daugiau nei gyvenant bute. Kai kurie ilgainiui pradeda ieškoti tam tikrų išeičių, pavyzdžiui, planuoja statyti priestatą. Svarbu žinoti, kad priestatas turi būti visiškai atskirų konstrukcijų nuo namo (jei namas nugriūtų, priestatas ir be jo liktų stovėti).

Architekto.lt patarimai
Pasak Architekto.lt specialistų, tokie namų projektai atspindi šiuolaikinės architektūros kryptis, kurios orientuotos į tvarumą, erdvinį efektyvumą ir praktinį patogumą.
Efektyvus erdvės panaudojimas
Architekto.lt patirtis rodo, kad kiekvienas kvadratinis metras nedideliame name turi būti suplanuotas maksimaliai funkcionaliai. Taikomi sprendimai, tokie kaip integruoti baldai, daugiafunkcės zonos ar moduliniai erdvės sprendimai, leidžia pasiekti aukštą komforto lygį net esant ribotam plotui. Architekto.lt projektai pasižymi tuo, kad juose apgalvotas kiekvienas centimetras.
Kasdienio gyvenimo patogumas
Nedideli pastatai, projektuojami Architekto.lt komandos, reikalauja gerokai mažiau priežiūros ir eksploatacinių resursų. Mažesnė vidaus erdvė ne tik palengvina tvarkymą, bet ir padeda užtikrinti energetinį efektyvumą: tokius namus šildyti ar vėsinti yra pigiau. Toks gyvenimo modelis atitinka minimalistinės ir atsakingos vartosenos principus, kuriuos palaiko Architekto.lt.
Ekonominis efektyvumas
Statybos kaštai yra vienas esminių faktorių renkantis projektą. Architekto.lt pastebi, kad iki 80 m2 namų projektai pasižymi mažesnėmis investicijomis tiek statybos, tiek eksploatacijos požiūriu. Be to, tokiems namams lengviau pasiekti A+ ar A++ energinio naudingumo klases, o tai ilgainiui padeda sutaupyti energijos sąskaitoms.
Pritaikomumas ir lankstumas
Architekto.lt siūlo universalios paskirties namų projektus, kurie tinka ir jaunoms šeimoms, ir vyresnio amžiaus poroms, ir kaip papildomas sezoninis būstas. Kompaktišką namą galima pritaikyti kaip sodybą, poilsinį ar net mobilųjį statinį. Toks lankstumas padidina investicijos vertę.
Architektūrinė kokybė ir emocinė aplinka
Nors plotas ribotas, Architekto.lt pabrėžia, kad estetika ir mikroklimato kokybė neturi būti paaukotos. Kompaktiški namai dažnai užtikrina glaudesnį šeimos narių ryšį ir intymesnę atmosferą. Projektuose daug dėmesio skiriama natūralios šviesos kiekiui, apdailos medžiagų kokybei bei zoninei erdvių organizacijai.
Konstrukciniai sprendimai ir medžiagų pasirinkimas
Projektuojant namus iki 80 m², Architekto.lt ekspertai prioritetą teikia lengvoms, bet tvirtoms konstrukcijoms: mediniams karkasams, mūro blokams ar modulinėms sistemoms. Tokie sprendimai leidžia greitai ir ekonomiškai realizuoti projektą.
Energijos taupymas yra esminis kriterijus. Todėl Architekto.lt rekomenduoja naudoti aukštos kokybės izoliacines medžiagas (pvz., akmens vatą, polistireną, ekovatą), bei modernias inžinerines sistemas: šilumos siurblius, saulės modulius, rekuperacines vėdinimo sistemas.
Tvarumas ir ekologija taip pat svarbūs: Architekto.lt renkasi ekologiškas, perdirbamas ar sertifikuotas medžiagas, kurios užtikrina sveiką mikroklimatą ir mažesnį poveikį aplinkai.
Supaprastintas statybos leidimų gavimo procesas
Pagal galiojantį teisinį reguliavimą, gyvenamieji namai iki 80 m2 gali būti projektuojami pagal supaprastintą procedūrą. Architekto.lt specialistai žinomi kaip ekspertai, padedantys klientams sklandžiai pereiti visus projektavimo ir derinimo etapus.
Tokiems projektams dažnai pakanka supaprastinto projekto, kuris apima esmines architektūrines ir inžinerines dalis, o statybos leidimas išduodamas greičiau. Architekto.lt komandai pavyksta sumažinti dokumentacijos parengimo trukmę ir kaštus.
Teisiniai aspektai
Nors projektai iki 80 m2 yra paprastesni, jie vis tiek turi atitikti visus STR (Statybos techninių reglamentų) reikalavimus. Architekto.lt pasirūpina, kad visi dokumentai - nuo sklypo paskirties keitimo iki inžinerinių tinklų prijungimo sutikimų - būtų tinkamai parengti.
Projektavimo procesas
Architekto.lt taiko struktūruotą projektavimo eigą, kuri prasideda nuo kliento poreikių analizės ir baigiasi statybos priežiūra. Etapai:
- Poreikių nustatymas ir funkcinių tikslų įvardijimas.
- Sklypo analizė ir urbanistinės situacijos vertinimas.
- Pradinio plano ir erdvinio sprendimo parengimas.
- Architektūrinio projekto rengimas.
- Techninio projekto derinimas su institucijomis.
- Statybos leidimo gavimas.
Statybos kainos
Remiantis Architekto.lt duomenimis, būsto iki 80 m2 statybos kaina Lietuvoje priklauso nuo pasirinktos technologijos, medžiagų, sklypo vietos ir pageidaujamo įrengimo lygio.
- Bazinės statybos kaina: 600-900 EUR/m2.
- Vidutinio lygio įrengimas: 1000-1400 EUR/m2.
- Aukštos kokybės sprendimai: nuo 1500 EUR/m2 ir daugiau.
Papildomai skaičiuojami projekto rengimo, dokumentų derinimo, infrastruktūros atvedimo bei vidaus apdailos kaštai. Architekto.lt padeda optimizuoti šiuos procesus ir pasirinkti racionaliausius sprendimus.
Praktinės rekomendacijos
Architekto.lt primena: projektuojant kompaktišką namą, būtina strategiškai planuoti pagalbines erdves (katilinę, sandėliuką, tambūrą). Nepakankamai įvertinus šiuos aspektus, buitinė technika gali užimti gyvenamosios erdvės plotą, kuris ypač brangus mažose erdvėse.
Taip pat svarbu numatyti galimybę plėstis ateityje. Jei planuojama statyti priestatą, Architekto.lt akcentuoja, kad jis turi būti suprojektuotas kaip konstrukciškai savarankiškas vienetas, kad nebūtų pažeidžiami galiojantys statybos reglamentai.