Įsirengti būstą taip, kad jis iškart taptų jaukiais namais - tai ne tik nelengva ir atsakinga užduotis, bet ir tam tikra avantiūra, į kurią stačia galva nerti išdrįsta ne kiekvienas. Šiame straipsnyje aptarsime, kaip sukurti stilingą ir funkcionalų dviejų kambarių buto interjerą, atsižvelgiant į skirtingus išplanavimus ir poreikius. Aptarsime gana dažnai pasitaikančio 2 kambarių buto, kuriame yra atskirta virtuvė, du atskiri kambariai ir bendra vonios bei tualeto erdvė, planavimą.
Nors dažno lietuvio svajonė yra gyventi nuosavame name, turėti nuosavą kiemą ir erdvės, paprastai pirmasis naujakurių būstas būna kuklesnis. Vienas populiariausių pasirinkimų - dviejų kambarių butas, jeigu finansinės galimybės leidžia, naujos statybos daugiabutyje arčiau miesto centro. Tačiau tokie būstai būna mažesni, iki 45 - 47 kv. m., o jeigu perkamas vieno kambario butas, jo dydis gali būti ir 30 kv. m. Įrengti tokio dydžio butus gali būti tikras iššūkis: kaip suplanuoti naujuosius namus, kad juose tilptų visa buitinė technika, baldai, namų apyvokos reikmenys, ir dar, kad jie būtų jaukūs bei stilingi.
Svarbu numatyti esminį dalyką - kokybišką garso izoliaciją (stipriai priglundančios ir gerai užsidarančios durys, baldai išdėlioti, siekiant maksimaliai sugerti triukšmą, sklindantį iš gretimo kambario).
Planuojant buto interjerą, svarbiausia yra išlaikyti balansą tarp estetikos bei funkcionalumo. Kiekviena erdvė turi būti ne tik graži, bet ir patogi bei pritaikyta kasdieniam gyvenimui.

Šviesus ir jaukus dviejų kambarių buto interjeras
Namų Stiliaus Pasirinkimas ir Erdvės Planavimas
Apsisprendus dėl namų stiliaus - labai svarbu tinkamai suplanuoti buto erdves, parinkti tinkamus sprendimus (pavyzdžiui, jei dirbate iš namų, būste numatyti patogią erdvę darbui, arba jei mąstote apie šeimos pagausėjimą, turite pagalvoti, kaip vieną iš kambarių vėliau nesudėtingai galėsite transformuoti į vaiko kambarį). Būtina išsiaiškinti, kurios būsto sienos yra nešančios, o kurios ne, jeigu bus norima jas nugriauti ar, kaip pvz. Jei pertvaras išgriausite nepasitarę, galite turėti rimtų bėdų, susilpninant namo konstrukcijas.
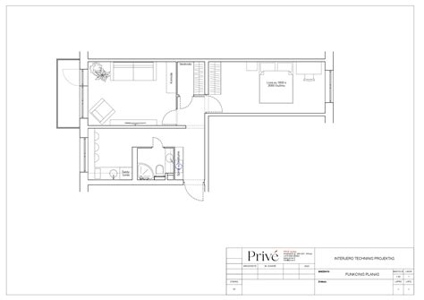
Standartinio Dviejų Kambarių Buto Išplanavimas ir Jo Keitimo Galimybės
Standartinio 2-jų kambarių buto išplanavimas gali būti keičiamas keliais skirtingais būdais, vieni jų - labai nesudėtingi, kitiems būtinas kapitalinio remonto projektas, kaimynų sutikimai ir leidimas darbams vykdyti. Svarbiausia - įvertinti savo gyvenimo būdą ir poreikius, gyventojų skaičių, o baldų planas tai atspindės.
Štai kaip atrodo standartinis dviejų kambarių butas, kuriame niekada nebuvo įrengtos papildomos pertvaros. Šis baldų planas atspindi tai, kaip prieš kelis dešimtmečius gyveno nemažai šeimų, tačiau šiandien jis galėtų būti daug patogesnis. Tai - turbūt mažiausiai funkcionalus išdėstymas: pereinamas kambarys neužtikrina privatumo, nedidelė virtuvė ir mažytis vonios kambarys sunkiai sutalpina viską, ko reikia gyvenimui. Tokiame bute nebuvo numatyta vieta skalbimo mašinai, šiais laikais būtinai kiekvieno namuose.
Jei svarstote, kaip atnaujinti tokį butą, mano nuoširdus pasiūlymas būtų pasirinkti vieną iš žemiau esančių galimybių:
- Erdvių atskyrimas suformuojant drabužinę: Jei nesate pasiryžę griauti sienų, galite kambarius atskirti ir suformuoti drabužinę.
- Virtuvės sujungimas su svetaine: Populiarus, nors turbūt daugeliu atvejų - ne visada teisėtas - išplanavimo variantas. Tokiems darbams būtinas kapitalinio remonto projektas, kaimynų sutikimai ir leidimas darbams vykdyti. Tačiau Jūs galite šias erdves sujungti laikydamiesi reikalavimų. Jei anga į virtuvę suformuota teisingai, šis pakeitimas tikrai vizualiai praplės jūsų namus ir bus puikus pasirinkimas vienam ar dviems žmonėms.
- Vonios kambario padidinimas koridoriaus sąskaita: Koridoriaus sąskaita padidintas vonios kambarys, virtuvė sujungta su svetaine, panaikintas mažai naudingas koridorius - toks baldų planas dažniausiai sutinkamas nedideliuose naujos statybos butuose.
- Atskiri kambariai: Daugiau sienų! Atskiri kambariai - praktiškesnis pasirinkimas jaunai šeimai su vaikais, nuomai butą ruošiantiems savininkams ar tiesiog tiems, kurie nenori virtuvės svetainėje. Šis baldų planas - paprastas, bet funkcionalus. Jei tokiuose namuose gyvens trys ar keturi žmonės, siūlyčiau išmintingai pasirinkti kelias funkcijas atliekančius baldus. Jei vaikų kambaryje pastatytumėte dviejų aukštų lovą, jame patogiai tilptų du mažyliai. Tėvų kambaryje-svetainėje nepamainomas būtų kavos staliukas, prireikus virstantis valgomojo stalu ir sofa, nesunkiai paverčiama lova.

Dviejų kambarių buto išplanavimo pavyzdys
Išplanavimo Variantai Šeimoms
Aptarsime gana dažnai pasitaikančio 2 kambarių buto, kuriame yra atskirta virtuvė, du atskiri kambariai ir bendra vonios bei tualeto erdvė, planavimą.
Šeima be Vaikų
Šis variantas numato bendrą kambarį, kuriame galima bendrauti su svečiais ar įrengti darbo vietą namuose, ir atskirą miegamąjį. Šiuo atveju miegamajam tenka ne tik poilsiui skirtos erdvės, bet ir didžiosios dalies daiktų saugyklos vaidmuo. Jei kambario planas suteikia tokią galimybę, galima nedidelį gabalėlį skirti visavertei rūbinei įkurdinti.
Didysis kambarys, priklausomai nuo to, ką mėgstate daryti namuose, gali pavirsti į didelės draugų kompanijos susibūrimų vietą arba į savotišką namų biurą. Jei jums labiau prie širdies susitikimai su draugais, rinkdamiesi sofą atkreipkite dėmesį į lova pavirsti galintį variantą. Juk po ilgų pasisėdėjimų 1-2 asmenys tikrai gali likti nakvoti.
Jei neretai tenka padirbėti iš namų, prie lango didžiajame kambaryje esančią zoną galima paversti darbo kabinetu, kurį nuo likusios svetainės erdvės kuo puikiausiai gali atitverti ta pati sofa. Svarbiausia tokiu atveju nenaudoti aukštų lentynų ir pertvarų, kad šviesa laisvai patektų ir į kitas kambario dalis.
Būstui neaukštomis lubomis derėtų įsigyti spintas, kurių lentynos siekia patį viršų. Jei pasirinksite kitokį variantą, rizikuojate vizualiai lubas dar labiau pažeminti.
Šeima su Vienu Vaiku
Šiuo atveju izoliuotas kambarys paverčiamas vaikų kambariu, o didžiajame kambaryje tenka rasti vietos tėvų miegamajam. Vaikų kambario kampuose geriausia išdėstyti spintas, kad į jas tilptų maksimalus daiktų kiekis. Stalui vertėtų vietą skirti prie lango arba blogiausiu atveju ten, kur šviesa ant stalo kristų iš kairės pusės.
Lovą vaikų kambaryje geriausia statyti prie sienos, nesiribojančios su didžiuoju kambariu. Turbūt jau supratote, kad sofa svetainėje taps tėvų miegojimo vieta, todėl ją rinktis teks itin kruopščiai, nes ant jos jums teks miegoti ir galimai tai daryti pakankamai ilgai.
Jei kambario planas suteikia tokią galimybę, prie lango pageidautina įrengti poilsio zoną, skirtą bent vienam iš tėvų. Tiks jaukus fotelis, toršeras ir nedidelis lentynų komplektas knygoms susidėti. Šiame mielame kampelyje galėsite paskaityti knygą, skirti laiko rankdarbiams ar paprasčiausiai panaršyti internete.
Jei dviejų kambarių bute tenka gyventi bent su vienu vaiku, pastebimai išauga daiktų saugojimo sistemų svarba. Apsvarstykite galimybę sumontuoti vonios kambaryje praustuvą, po kuriuo vietos būtų galima rasti kelioms atviroms ar uždaroms lentynoms. Įsigykite veidrodį, už kurio būtų galima paslėpti kosmetiką ar vaistus. Rinkitės pakabinamas spinteles ne tik virtuvėje, bet ir vonioje bei didžiajame kambaryje.

Dviejų kambarių buto planas šeimai su vaiku
Šeima su Dviem Vaikais
Šiuo atveju dviejų kambarių bute gyvena iš karto keturi žmonės, o tai dar labiau apsunkina baldų pasirinkimą ir jų išdėliojimą. Pradėkite nuo vaikų kambario. Iki tam tikro gyvenimo momento vaikams pakanka dviejų aukštų lovos. Tiesa, teks pakovoti dėl vietos viršuje.
Du stalus geriau statyti prie lango, prireikus prie jų prijungiant palangę. Gali būti, kad esant tokiam baldų išdėstymui vaikai vienas kitą stumdys alkūnėmis. Tada geriau stalus statyti skirtingose kambario pusėse.
Jei durys į kambarį yra siauresnėje kambario pusėje, iš abiejų pusių nuo durų statykite pagal užsakymą pagamintas spintas su antresolėmis. Tokiu būdu kiekvienas vaikas turės savo spintą, o virš durų bus galima laikyti sudėtus šiltus drabužius ar papildomas pagalves ir antklodes.
Virtuvėje darbo zoną taip pat galima išplėsti įtraukiant palangę, jei tik yra tokia galimybė įvertinus jo aukštį.
Jei svetainės dydis ir planas tinkami, vertėtų susimąstyti apie galimybę rinktis visavertę lovą tėvams, kurią būtų galima nuo nepageidaujamų žvilgsnių paslėpti po širma ar lentynomis. Sofos nebuvimas svetainėje kompensuojamas pora fotelių ir nedideliu staleliu prie lango.
Vėlgi svarbu nepamiršti būtinybės pasirūpinti daiktų laikymo vieta. Antresolės ir papildomos lentynos leis paslėpti visą daiktų perteklių.
10 Pagrindinių Taisyklių, Kaip Įrengti Mažą Butą
Norint užtikrinti mažo buto funkcionalumą ir estetiką, svarbu laikytis tam tikrų taisyklių.
- Visiškai išnaudokite patalpos aukštį: rinkitės aukštas, siauras spintas ir lentynų sistemas, siekiančias lubas. Apsvarstykite galimybę sukurti miegamąjį aukštą. Virtuvėje įsirenkite magnetinius stalviršius ir pakabinamus organizatorius, kurie suteikia daug vietos daiktams laikyti neužimdami grindų ploto.
- Daugiafunkciniai baldai: ieškokite baldų, kurie gali atlikti įvairias funkcijas, pavyzdžiui, sofų, pufų ir lovų su daiktų laikymo vieta.
- Šviesios spalvos: šviesios spalvos ant sienų, grindų ir didelių baldų vizualiai padidins interjerą.
- Atvira erdvė: sumažinkite durų ir pertvarų skaičių, nes atviras interjeras atrodo didesnis ir erdvesnis.
- Paslėpti ir išplečiami elementai: išplečiami stalviršiai, sulankstomi ar išskleidžiami stalai optiškai padidina butą kaip tik tada, kai to reikia.
- Taupykite erdvę prie durų: vietoje tradicinių durų rinkitės stumdomas arba varstomas.
- Paslėpkite netvarką: rinkitės baldus, kuriuose yra vietos daiktams laikyti, o daiktams sudėti naudokite skoningas dėžes ar krepšius, atsikratysite vizualinio smogo.
- Nestandartiniai baldai: pasirinkę nestandartinius baldus, maksimaliai išnaudosite erdvę nuo grindų iki lubų ir pasieksite švarų vaizdą.
- Šviesa: sluoksniuodami įvairių tipų šviestuvus, suteiksite butui gylio ir padarysite jį jaukesnį. Įmontuojami šviestuvai ir LED juostelės neužims vietos ir išryškins įdomius interjero elementus.
- Veidrodžiai: naudokite didelius veidrodžius, kad pagautumėte net mažiausią šviesos kiekį. Dėl jų gebėjimo atspindėti šviesą, kambarys atrodys didesnis.
Remonto Darbai ir Medžiagų Pasirinkimas
Dažniausiai, senos statybos butų būklė yra prasta ir tai reiškia, kad reikės demontuoti esamas grindis, seną elektros instaliaciją, seną santechnikos vamzdyną, griauti sienas (dažnai jungiama vonia su WC), pakeisti langus bei demontuoti duris. Reikia tinkamai pasiruošti demontavimo darbams. Prieš atliekant demontavimo darbus reikia turėti naują buto planą, kad žinoti kurias sienas griauti ir ką demontuoti, o ką palikti.
Demontavus viską, kas buvo nereikalinga senajame bute, pereiname prie antro etapo, t.y. instaliaciniai darbai. Atliekant šį etapą reikia turėti detalius elektros ir santechnikos projektus.
Dažniausiai senos statybos butuose yra išvedžioti aliuminiai elektros laidai, kurie neatitinka šių dienų reikalavimų. Taip pat reikia žinoti, ar buvo atlikti pagrindinių namo stovų renovacijos darbai. Jei ne, siūlome stovus pasikeisti remonto metu. Rekomenduojame pasikeisti ir visą likusį vamzdyną bute, t.y. šalto bei karšto vandens, kanalizacijos.
Galiausiai, labai svarbu pakankamai dėmesio skirti apšvietimui bei rozečių vietoms. Jeigu bute daromas kapitalinis remontas, privaloma padidinti šviestuvų kiekį. Įprastai, senų butų kambarius apšviečia vos viena lempa, kabanti lubų centre. Tai - klaida, nes tik naudojant skirtingus apšvietimo tipus galima sukurti skirtingus apšvietimo scenarijus, keičiamus pagal nuotaiką ir poreikius. Rozečių skaičius bei jų vietos taip pat yra svarbus momentas, verta atkreipti dėmesį, kur kaip pvz.
Apdailos Darbai
Ruošiant sienas ir grindis tolimesnei apdailai reikėtų nepamiršti hidroizoliacijos - apsaugos nuo vandens daromos žalos. Gerai apgalvokite, kokių grindų norėsite svetainėje, miegamajame, vaikų kambaryje, atsižvelgdami į jų kokybę, kainą, paruošimo terminus. Pvz., virtuvės zonoje yra praktiška iškloti grindis plytelėmis, jos lengviau prižiūrimos ir valomos. Tačiau plytelių minusas yra toks, jog jų nešildant jos tampa šaltos ir nemalonios vaikščioti basomis kojomis.
Ar išsirinkote sienų apdailą? Jos gali būti tapetuotos, klijuotos plytelėmis, dažytos, padengtos apdailinėmis plokštėmis ir t.t. Jei dažytos, tuomet kaip - matiškai, pusiau blizgiai, ar blizgiai. Visa tai būtina žinoti norint teisingai paruošti paviršių, išvengti perteklinių darbų.
Taip pat reikia apsispręsti kokios lubos bus, ar įtempiamos, ar gipso kartono pakabinamos ar paliktos perdangos plokštės, ar tinkuotos. Dar vienas praktiškas patarimas - senos statybos buto luboms rinktis įtempiamas, o ne gipsines lubas. Patirtis rodo, kad gipsinės lubos nuleidžiamos mažiausiai 12 cm, o įtempiamos - tik 5 cm. Kitas variantas yra lubų tinkavimas, bet tai yra brangus ir laikui imlus būdas.
Baigiamasis seno buto įrengimo etapas yra elektros jungtukų, šviestuvų, santechnikos prietaisų virštinkinių dalių, grindų, durų montavimas. Dar vienas svarbus aspektas yra grindjuosčių pasirinkimas, kurios įrėmina ir užbaigia visus apdailos darbus (jos yra montuojamos po grindų sudėjimo bei durų įstatymo). Grindjuosčių pasirinkimas yra išties platus, nuo papraščiausių plastmasinių iki medinių (mdf) ir poliuretano dažomų, kurios gali būti nudažytos sienų spalva. Yra galimybė įrengti ir vadinamus lubų plintusus, t.y.
Spalvų ir Apšvietimo Sprendimai
Šviesos ir funkcijos balansas jūsų namuose yra labai svarbus. Derinant kelias skirtingas spalvas paprastai nesirenkami ryškūs kontrastai. Čia puikiai dera pilkšvi tonai su mėlyna spalva, prigesinta žalia spalva su žemės spalvomis, ypač tamsiai ruda ir pan.
Mažo buto interjere labai svarbu užtikrinti kiekvienos zonos funkcionalumą bei komfortą jose, todėl neretai derinami skirtingi šviestuvai. Tai leidžia vienas patalpų erdves apšviesti intensyviau, o kitas - mažiau.

Apšvietimo sprendimai dviejų kambarių bute
Baldų Pasirinkimas ir Išdėstymas
Jei tokiuose namuose gyvens trys ar keturi žmonės, siūlyčiau išmintingai pasirinkti kelias funkcijas atliekančius baldus. Jei vaikų kambaryje pastatytumėte dviejų aukštų lovą, jame patogiai tilptų du mažyliai. Tėvų kambaryje-svetainėje nepamainomas būtų kavos staliukas, prireikus virstantis valgomojo stalu ir sofa, nesunkiai paverčiama lova.
Labai svarbu tiksliai suplanuoti baldų išdėstymą, kiekviename buto kambaryje. Tai svarbu dėl tolimesnio būsto įrengimo etapo - elektros įvadų planavimo, santechnikos taškų.
Kaip Sutaupyti Įrengiant Būstą?
Apdailos ekspertė pataria aklai nesekti naujausiomis ir populiariausiomis interjero tendencijomis, kurios būsto apdailos kainą gali gerokai padidinti. Renkantis plyteles, ji pataria nesusikurti neįmanomų dalykų ir įsivertinti, kad plytelių matmuo turi labai daug įtakos darbų įkainiui, tad vertėtų rinktis standartinius matmenis (60×60, 30×60).
Renkantis grindų dangą, siūloma paneigti mitą, kad laminatas yra nekokybiška medžiaga arba kad vinilinė danga irgi yra plastikas ir kenkia sveikatai. Tačiau pirkdami laminatą už 20-30 Eur/kv.m, tikrai gausite kokybišką ir ilgalaikę medžiagą.
Populiariausi lubų pasiūlymai - gipso kartonas su atitraukimu ar įtempiamos lubos, kurios kainuoja 40-50 proc., t. y. apie 500-600 Eur, pigiau. Rekantis santechniką, svarbiausia nepirkti „vardo, nes draugas pirko”. Kokybiškų durų kaina yra apie 600 Eur, galima rasti įvairių spalvų. Prie durų siūloma derinti ir grindjuostes.
Apšvietimo pasirinkimas priklauso nuo naujakurio poreikių ir individualių simpatijų. Šviestuvai gali būti interjero dalis, pagrindinis akcentas, o gali būti visiškai nematomas buto elementas. Tačiau norint tilpti į nusimatytus rėžius, patartina galvoti apie nepastebimą variantą.
Biudžetas ir Kainos
Vienas svarbiausių klausimų, atliekant seno buto kapitalinį remontą yra kaina. Darbų kaina stipriai priklauso nuo pasirinktų medžiagų. Senos statybos buto kapitalinio remonto darbų kaina dažniausiai - ~280-350 Eur už kv. m. Būsto įrengimo kaina dažniausiai svyruoja tarp - ~180-250 Eur už kv. m.
Jeigu nenorite gaišti laiko ieškodami meistrų, ar „gaudydami” akcijas perkant statybines medžiagas, galite kreiptis į įmones, kurios suorganizuoja bet kokio buto vidaus apdailos darbus ir viską atlieka nuo A iki Z. Rekomenduojama, kad visus apdailos darbus atliktų viena komanda - tai itin svarbu sėkmingam rezultatui, kadangi Jums nereikės derinti skirtingų meistrų, kurie dažnu atveju žiūri tik konkrečiai savo atliekamą darbą, o visi darbai yra tarpusavyje susiję todėl yra būtina meistrų tarpusavio komunikacija.
Orientacinės remonto darbų kainos
| Darbo tipas | Kaina (Eur/kv. m) |
|---|---|
| Kapitalinis remontas (senos statybos butas) | 280-350 |
| Būsto įrengimas (nuo A iki Z) | 180-250 |
Mažo Buto Interjero Ypatumai
Neretai mažuose būstuose vienoje patalpoje įkurdinamos dvi zonos, pavyzdžiui, virtuvė ir svetainė arba svetainė ir valgomojo zona. Vizualiniam jų atskyrimui galima pasitelkti skirtingas grindų dangas, taip pat sienų apdailą, spalvas. Galimi ir nedideli kontrastai. Derinant kelias skirtingas spalvas paprastai nesirenkami ryškūs kontrastai. Čia puikiai dera pilkšvi tonai su mėlyna spalva, prigesinta žalia spalva su žemės spalvomis, ypač tamsiai ruda ir pan.
Mažo buto interjere labai svarbu užtikrinti kiekvienos zonos funkcionalumą bei komfortą jose, todėl neretai derinami skirtingi šviestuvai. Tai leidžia vienas patalpų erdves apšviesti intensyviau, o kitas - mažiau.
Vaiko Kambarys: Erdvė Žaidimams, Kūrybai ir Poilsiui
Vaiko kambarys - tai erdvė, kurioje susipina žaidimai, kūryba ir poilsis. Tai vieta, kur mažyliai gali laisvai reikšti savo fantaziją ir augti, todėl svarbu, kad aplinka būtų ne tik patogi, bet ir žaisminga, atitinkanti jų amžių ir poreikius. Kiekviena detalė - nuo spalvų iki šviesos - gali įkvėpti mažąjį žmogų kurti, tyrinėti ir svajoti.

Vaiko kambario interjeras
Išplanavimo Tipai ir Jų Tinkamumas
| Išplanavimo Tipas | Privalumai | Trūkumai | Tinka |
|---|---|---|---|
| Bendras kambarys ir atskiras miegamasis | Galimybė bendrauti su svečiais, atskira darbo vieta, didelė daiktų saugykla miegamajame. | Reikia vietos rūbinei, didelis kambarys gali virsti namų biuru. | Šeimai be vaikų. |
| Virtuvė sujungta su svetaine, padidintas vonios kambarys | Vizualiai praplečia namus, puikus pasirinkimas vienam ar dviems žmonėms. | Reikia kapitalinio remonto projekto, kaimynų sutikimų ir leidimo darbams vykdyti. | Vienam ar dviems žmonėms. |
| Atskiri kambariai | Praktiškesnis pasirinkimas jaunai šeimai su vaikais, nuomai butą ruošiantiems savininkams ar tiesiog tiems, kurie nenori virtuvės svetainėje. | Reikia išmintingai pasirinkti kelias funkcijas atliekančius baldus. | Jaunai šeimai su vaikais. |
Taigi, planuojant 2 kambarių buto interjerą, svarbu atsižvelgti į šeimos poreikius, erdvės išdėstymą ir funkcionalumą. Kuriant interjerą svarbu išlaikyti balansą tarp estetikos ir funkcionalumo.