Planuojant ar įsigyjant būstą, svarbu suprasti skirtumus tarp gyvenamojo ir naudingo ploto. Šie du rodikliai yra esminiai, vertinant ne tik būsto dydį, bet ir jo funkcionalumą bei atitiktį teisiniams reikalavimams.

Namo planas
Namo Plotas ir Nesudėtingi Statiniai
Planuojant statyti namą, ypač jei jis neviršija 80 kv. m, svarbu žinoti, kaip teisingai apskaičiuojamas gyvenamasis plotas. Tai padės ne tik tinkamai suplanuoti būsimas patalpas, bet ir įsitikinti, ar statybai nereikalingas specialus leidimas. Šiame straipsnyje išsamiai aptarsime, kaip apskaičiuojamas namo plotas, kokie reikalavimai taikomi nesudėtingiems statiniams ir ką reikia žinoti projektuojant tokį būstą.
Nesudėtingi statiniai: kas tai?
Pagal STR 1.01.07:2010 „NESUDĖTINGI STATINIAI“ apibrėžimą, jus domina II gr. nesudėtingas statinys - gyvenamasis namas iki 80 kv. m bendro ploto ir 8,5 m aukščio. Svarbu suprasti, kas įeina į šį plotą ir kaip jis skaičiuojamas.
80 NAMAS – įsikurkite naujuose namuose greitai, paprastai ir nebrangiai
Kaip skaičiuojamas plotas?
Bene dažniausiai užduodamas klausimas - kaip skaičiuojamas plotas? Kas įeina į 80 kv. m plotą? Ar galima įsirengti rūsį ar pastogę? Ar skaičiuojasi garažas?
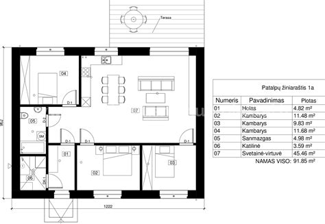
Nesudėtingų statinių iki 80 kv. m atveju, skaičiuojamas bendras visų antžeminės dalies patalpų plotas. Patalpa - sienomis ir kitomis atitvaromis apribota nustatytos paskirties erdvė.
Patalpų plotas skaičiuojamas tarp pastato vidinių sienų. II gr. statinio 80m2 plotas yra visų patalpų suma.
Svarbu atkreipti dėmesį, kad didžiausias leistinas atstumas tarp laikančių sienų turi būti ne didesnis nei 6 m, o pastato aukštis - iki 8,5 m.
Nors rūsio plotas skaičiuojamas į pastato bendrąjį plotą, nesudėtingas II-os gr. statinys - gyvenamasis namas - yra ne daugiau kaip 80 kv. m visų statinio patalpų ploto, skaičiuojant tik antžeminę dalį. Kitaip tariant, į 80 kv. m plotą įeina visos šiltos ir šaltos patalpos (įskaitant pastogės patalpas ir garažą), išskyrus rūsį ir terasas.
Ar reikalingas leidimas?
Rašytinis pritarimas supaprastintam statybos projektui privalomas statant II grupės nesudėtingą statinį - mieste, konservacinio prioriteto ar kompleksinėje saugomoje teritorijoje, kultūros paveldo objekto teritorijoje, kultūros paveldo vietovėje.
Net ir tuo atveju, kai statybą leidžiantis dokumentas nėra privalomas, rekomenduojama kreiptis į architektą, kuris įvertins esamą sklypo situaciją, patars, kaip geriausia organizuoti vidaus erdves, kokias pasirinkti statybines medžiagas ir konstrukcinius sprendinius, esant poreikiui paruoš kokybišką interjero projektą pagal jūsų poreikius ir finansines galimybes.
Nesudėtingų statinių projektavimui, statybai, statinio projekto vykdymo priežiūrai turi teisę vadovauti fizinis asmuo, baigęs aukštojo ar specialiojo vidurinio mokslo studijas ir įgijęs architektūros, geologijos ir minerologijos mokslų studijų krypčių, technologijos mokslų studijų srities ar šioms kryptims ir sričiai prilyginamą išsilavinimą.
Šio išsilavinimo nereikia, kai supaprastintas statinio projektas rengiamas pasinaudojant kito tokio statinio (kai išlaikomi statinio matmenys ir statybos produktai) supaprastinto projekto sprendiniais; tokiu atveju valstybės tarnautojams pateikiamas ir statinio supaprastintas projektas, kurio sprendiniais pasinaudota.
Skirtumas Tarp Bendro ir Naudingo Ploto
Renkantis būstą, svarbu atkreipti dėmesį ne tik į kainą, bet ir į tai, kas įeina į bendrą ir naudingą plotą. Šie du rodikliai yra skirtingi ir gali turėti įtakos mokesčiams bei pačios gyvenamosios erdvės suvokimui. Šiame straipsnyje išnagrinėsime, kuo skiriasi bendras ir naudingas buto plotas, remiantis Lietuvos Respublikos teisės aktais ir reglamentais.
Pagal Statybos techninio reglamento STR 1.05.06:2010 „Statinio projektavimas“ 2 straipsnio 6.10 papunktį:
Pastato bendras plotas - visų patalpų ir jų priklausinių (balkonų, lodžų, ant stogo numatomų terasų, verandų ir kitų priklausinių) plotų suma, m2. Į bendrą plotą neįskaitomas uždarų laiptinių, atvirų ar pusiau atvirų laiptinių laiptotakių ir tarpinių aikštelių, liftų šachtų plotas.
Tuo tarpu, 6.11 papunktis apibrėžia:
Pastato naudingas plotas - visų šiltomis atitvaromis atitveriamų ar atitvertų patalpų plotų suma, m2.
Apibendrinant, galima teigti, kad į bendrą plotą įeina visos buto patalpos ir jų priklausiniai, o į naudingą - tik tos patalpos, kurios yra apšildomos ir atitvertos.
Visuomet rekomenduojama prašyti naudingąjį būsto plotą įrodančių dokumentų, pvz., buto plano.
Buto plane svarbu pastebėti, ar jame nėra įtrauktos papildomos ar pagalbinės erdvės, tokios kaip balkonas ir terasa ar sandėliukas.
Ekspertai pabrėžia, kad būtina prašyti būsto plano. Įprastai tokiame dokumente nurodomas ne tik buto išdėstymas, bet ir judėjimo srautai. Svarbu iš anksto žinoti, kad pastačius pastatą, viduryje buto neatsiras atraminė kolona, kuri, be abejonės, mažintų buto plotą.
Visų papildomų ir pagalbinių patalpų plotai turi būti skaičiuojami atskirai ir jokiu būdu neįtraukiami į buto plotą. Pasitaiko atvejų, kai NT skelbimuose buto plotas nurodomas su balkono ar terasos plotu. Taip elgtis negalima. Todėl raginama domėtis būtent naudinguoju būsto plotu.
Statomo būsto išmatavimai kartais gali skirtis nuo tų, kai būstas jau būna pastatytas, tačiau dažniausiai skirtumai būna minimalūs, o dėl jų rekomenduojama sutarti preliminarioje būsto pirkimo-pardavimo sutartyje.
Jei pastatytame bute išryškėja pažeidimai dėl būsto ploto, klientas visuomet gali reikalauti sumažinti perkamo būsto kainą arba išvis atsisakyti sudaryti galutinę pirkimo-pardavimo sutartį.
Visi būsto pirkimo proceso metu kylantys klausimai turi būti sprendžiami iki pagrindinės sutarties pasirašymo.
Būsto kvadrato kaina gali skirtis priklausomai nuo miesto ir rajono.
Mini Butai: Kas Tai?
Anot „Capital“ partnerio ir nekilnojamojo turto eksperto Manto Mikočiūno, mini butais dažniausiai tampa padalytos didelės patalpos, kurios nebūtinai yra gyvenamosios paskirties, o jų plotas dažniausiai svyruoja nuo vos 12 kv. m iki maždaug 20 kv. m.
„Padalinus tie atskiri vienetai kadastriškai įgauna atskirus unikalius vienetus ir juos galima parduoti kaip atskirus daiktus. Kartais netgi būna tokių atvejų, kai parduodama dalis didelio daikto. Bankai gana skeptiškai žiūri į tokių daiktų finansavimą“, - akcentuoja M. Mikočiūnas.
Bendrovės „Citus“ analitikė Laura Markevičiūtė taip pat sutinka - neretai mini butais tampa visai ne butai ar kitokie būstai, skirti gyvenimui.
„Tokie būstai paprastai yra orientuoti į trumpalaikę nuomą arba skirti investicijai, kurios tikslas tas pats - trumpalaikė nuoma. Žmonės, besinuomojantys tokius butus, jiems kelia labai žemus reikalavimus. Atvejų, kai statytojai ar vystytojai siūlo mini butus, pasitaiko, tačiau mažesnių, nei reikalauja statybų reglamentas, matyti neteko“, - sako L. Markevičiūtė.
Lietuvos teisės aktai nustato minimalius reikalavimus buto plotui. Būtent šiame dokumente yra nurodoma, kad vonios kambario kartu su tualetu plotas bute turėtų būti bent 4 kv. m. Bent vieno kambario plotas turėtų siekti 16 kv. m, o naudingasis buto plotas vienam žmogui turėtų būti ne mažesnis kaip 14 kv. m. Tai reiškia, kad butas, kuriame yra tik vonios ir vienas gyvenamasis kambarys, turėtų būti bent 20 kv. m ploto.
Būsto Ploto Mažėjimo Tendencijos
NT ekspertai jau ne vienus metus pastebi tendenciją, kad perkamo būsto plotas mažėja. Kaip teigia L. Markevičiūtė, Registrų centro duomenys rodo, kad per pastarąjį dešimtmetį bet kokio kambarių skaičiaus perkamų butų vidutinis plotas sumažėjo 11,5 proc. - nuo 58,6 kv. m iki 51,9 kv. m.
„Ober-haus“ statistika rodo, kad 2003 m. vidutinis buto plotas Vilniuje siekė 64,3 kv. m, o 2019 m. šis skaičius nukrito iki 50,8 kv. m.
| Metai | Vidutinis plotas (kv. m) |
|---|---|
| 2003 | 64,3 |
| 2019 | 50,8 |
M. Mikočiūnas pastebi, kad pasikeitė ne tik pirkėjų poreikiai, bet ir įpročiai: „Jeigu mums reikalingas miegamasis, jis reikalingas tiek, kad tilptų lova ir spinta. Mes ten neleidžiame laiko, mes ten ateiname pernakvoti.“
L. Markevičiūtė teigia: „Individualūs reikalavimai būsto plotui visada bus apibrėžti konkrečios situacijos ir poreikių. Mes palaikome komfortišką kasdienį gyvenimą ir šio komforto poreikio diktuojamus reikalavimus būstui, tačiau, renkantis namus, be ploto, galioja daugiau faktorių.“
„Tankėjant ir plečiantis miestui, augant būsto ir žemės kainoms, didėjant gyvenimo intensyvumui, keičiantis pačiam gyvenimo būdui, tokių būstų paklausa turėtų augti. Iš kitos pusės, atsirandant naujoms būsto formoms, tokioms, kaip bendrojo gyvenimo erdvės, vadinamasis kolivingas, didėjant jų patrauklumui ir paslaugų, kurias galima gauti kartu, spektrui, būtent jos turėtų pritraukti nemažą dalį ypač mažų būstų auditorijos“, - įsitikinusi L. Markevičiūtė.
Kiti Svarbūs Aspektai
Projektuojant daugiabučius gyvenamuosius namus, bent vienas kambarys bute turi būti ne mažesnis kaip 16 kvad. m. Bendras vonios ir tualeto plotas - ne mažesnis kaip 4 kvad. m. Vienam žmogui turi tekti ne mažiau kaip 14 kvad. m.
Būsto naudingasis plotas - tai bendras gyvenamųjų kambarių ir kitų patalpų (virtuvių, sanitarinių mazgų, koridorių, įstatytų spintų, šildomų lodžijų ar kitų pagalbinių patalpų) grindų plotas.
Kiekviename daugiabučiame name turi būti suprojektuoti žmonėms su negalia skirti butai, kurie turi sudaryti ne mažiau kaip 5 proc. visų butų. Šis reikalavimas taikomas tiems namams, kurie yra ne toliau kaip 500 m kelio pėsčiomis iki viešojo transporto stotelių. Pastatuose be lifto butai žmonėms su negalia turi būti planuojami pirmajame aukšte.
Nuo 2014 m. jau visi Lietuvoje naujai statomi pastatai turi atitikti B energinio naudingumo klasę, o nuo 2016 m. - ne žemesnę kaip A klasę.
Pastatų plotų skaičiavimo tvarka
Pastatų plotų skaičiavimo tvarką nustato ORGANIZACINIS TVARKOMASIS STATYBOS TECHNINIS REGLAMENTAS STR 1.14.01:1999 PASTATŲ PLOTŲ IR TŪRIŲ SKAIČIAVIMO TVARKA."17. Gyvenamojo pastato bendrasis plotas yra visų jame esančių patalpų, tarp jų - ir funkcionaliai susietuose priestatuose, plotų suma."
Skaičiuojamos visos patalpos, kurios turi keturias sienas. Garažas, jeigu jis sublokuotas, taip pat. Neskaičiuojama terasa, rūsys, pastogė. Pastogėje į plotą įskaičiuojamos patalpos ar jų dalys, kurios turi aukštį ne mažiau kaip 1,60 m.
Į plotą įskaičiuojamas iš atitvarų plotas. Tiksliuosius skaičiavimus atlieka matininkai ruošdami inventorinę bylą.
Pagal STR 1.05.06:2010 "STATINIO PROJEKTAVIMAS" (2015 m. birželio 22 d. pakeitimas):
6.10 pastato bendras plotas - visų patalpų ir jų priklausinių (balkonų, lodžų, ant stogo numatomų terasų, verandų ir kitų priklausinių) plotų suma, m2.
Į bendrą plotą neįskaitomas uždarų laiptinių, atvirų ar pusiau atvirų laiptinių laiptotakių ir tarpinių aikštelių, liftų šachtų plotas.
Naudingas Plotas: Apibrėžimas ir Skaičiavimas
Kas yra naudingas plotas?
Pagal Statybos techninio reglamento STR 2.02.01:2004 „Gyvenamieji pastatai“ (patvirtinto 2003 m. gruodžio 24 d. įsakymu Nr. 4.12), būsto naudingasis plotas - tai gyvenamųjų kambarių ir kitų būsto patalpų (virtuvių, sanitarinių mazgų, koridorių, įstatytų spintų, šildomų lodžijų ir kitų šildomų pagalbinių patalpų) suminis grindų plotas. Svarbu pažymėti, kad į naudingąjį plotą neįeina balkonų, lodžijų, terasų ir nešildomų rūsių grindų plotas.
Terminų žodynas
Norint geriau suprasti statybos procesus ir reikalavimus, svarbu žinoti pagrindinius terminus:
| Terminas | Apibrėžimas |
|---|---|
| Antstatas | Pagalbinės patalpos virš viršutinio aukšto (vėdinimo kameros, katilinės, soliariumai ir kt.), turinčios atskirą stogą, kai jų plotas, matuojamas pagal antstato sienų išorės matmenis, yra mažesnis nei pusė viršutiniojo aukšto ploto. |
| Gyvenamasis pastatas (namas) | Pastatas, kurio visas naudingasis plotas, didžioji jo dalis ar bent pusė naudingojo ploto yra gyvenamosios patalpos. |
| Mansarda | Pastogėje įrengta patalpa (patalpos), bendru atveju apribota viršutinio Namo aukšto perdanga, nuožulnaus stogo konstrukcija bei išorės sienomis. |
| Nesudėtingas statinys | Paprastų konstrukcijų pastatas, kurio didžiausias aukštis 8,5 m, kurio visų aukštų, antstatų, pastogės patalpų ir naudojimo paskirtimi susietų priestatų plotų suma yra ne didesnė kaip 80 kvadratinių metrų ir kurio rūsys (pusrūsis) yra ne didesnis kaip vieno aukšto; paprastų konstrukcijų inžinerinis statinys. |
| Pastato (namo) aukštas | Erdvė nuo patalpų grindų paviršiaus iki virš jų esančių patalpų grindų paviršiaus (viršutinis aukštas - iki pastogės perdengimo šilumos izoliacijos arba sutapdinto denginio viršaus). |
| Priestatas | Prie esamo pastato pristatytas statinys, susietas su juo funkcionaliai ir tiesioginiu įėjimu iš pastato į priestatą; gyvenamojo namo šaltos pagalbinės patalpos, pastatytos jo “šiltų” atitvarų išorinėje pusėje. |
| Statinys | Bendrasis terminas, vartojamas apibrėžti visa tai, kas sukuriama statybos darbais, naudojant statybos produktus, ir yra tvirtai sujungta su žeme. Informuojame, kad nesudėtingo statinio sąvoka yra pateikta Statybos įstatymo (Žin., 1996, Nr. 32-788; 2001, Nr. 101-3597; 2010, Nr. 84-4401) 2 straipsnio 6 dalyje, o nesudėtingų statinių požymiai nustatyti statybos techniniame reglamente STR 1.01.07:2010 „Nesudėtingi statiniai“ (Žin., 2010, Nr. 115-5903; 2011, Nr. 96-4531). Nesudėtingo statinio plotai skaičiuojami sumuojant patalpų plotus, o patalpų plotai skaičiuojami imant atstumus tarp atitvarų vidinių paviršių. Rūsio plotas neįskaičiuojamas. Tačiau rūsys negali būti išsikišęs už pastato ribų. Terasa, kaip neturinti visų atitvarų (neuždara) erdvė, nelaikoma patalpa. Todėl jos plotas į nesudėtingo statinio plotą neįskaičiuojamas. |

Namas iki 80 kv.m.
Yra besistatančių ir iki 80 kv.m. individualius namus, kuriuose patalpos itin kompaktiškos, tačiau ar tai išties ekonomiška, nes mažo namelio vieno kvadratinio metro kaina yra sąlyginai didesnė. Tad kur tas aukso viduriukas? Koks turėtų būti optimalus namo dydis?
Įdomumo dėlei, pasižvalgius į kitas pasaulio valstybes, didžiausius namus statosi australai ir amerikiečiai, kurių vidutinis namas yra didesnis nei 200 kv. m, Jungtinės Karalystės gyventojai pasižymi mažiausiais gyvenamaisiais namais visoje Europoje - 76 kv. m, o kompaktiškiausiai gyvena Honkonge, čia vidutinis žmonių būstas teužima vos 46 kv. m.
Lyginant namą su butu, gali pasirodyti paradoksalu, kad 90 kv.m. ploto gyvenamasis namas laikomas kukliu palyginus su tokios pačios kvadratūros, bet jau prabangiu butu.
Tad renkantis gyvenamąjį namą, svarbu neapsigauti dėl šių skaičių. Priešingai nei bute, į namo plotą įsiskaičiuoja ir pagalbinis plotas - koridoriai, tambūras, esant poreikiui, ir garažas, o kur dar laiptinės užimama erdvė.
Individualiame gyvenamajame name, turinčiame ir privačią aplinką, reikia numatyti patalpas sklypo tvarkymo rakandams sandėliuoti. Bute pagalbinės patalpos apsiriboja sandėliuku ar sienine spinta, kurios „suvalgo“ nepalyginamai mažiau ploto.
Pradžioje buvo užsiminta, kad mažo namo 1 kv. m statybos kaina yra sąlyginai didesnė. Taip atsitinka todėl, kad namui, kad ir kokio dydžio jis bebūtų, bus reikalingas ir stogas, ir sienos, ir langai, ir pamatai, ir inžinerinės sistemos.