Pastatų statybos technologijos nuolat tobulėja, siūlydamos įvairius sprendimus, atitinkančius skirtingus poreikius ir reikalavimus. Lietuvoje, kur daugiabučių statybos technologijos per ilgus metus keitėsi, blokiniai namai užima svarbią vietą. Šiame straipsnyje aptarsime blokinių namų ypatumus, privalumus ir trūkumus, taip pat panagrinėsime kitas modernias statybos technologijas, tokias kaip moduliniai namai ir SIP skydai.

Buto perplanavimas gali padidinti komfortą ir funkcionalumą.
SIP Skydiniai Namai: Privalumai
Statyba pagal SIP (struktūriškai izoliuotų plokščių) technologiją žinoma ir vertinama visame pasaulyje. SIP skydiniai namai turi keletą svarbių privalumų:
- Kokybė ir kaina: Labai kokybiškas ir nebrangus namas.
- Ekologiškumas: Namas išsiskiria 12 proc. aplinkai neutralumu, yra hipoalergiškas, neskleidžia jokių kenksmingų medžiagų.
- Greitas statybos procesas: SIP namai pastatomi greičiau nei namai iš plytų ir dujų ar putų betono. Greitas montavimo procesas užtikrina mažesnę namo statybos savikainą.
- Ilgaamžiškumas ir patikimumas: Patikimas namas, atitinkantis keliamus reikalavimus ir normas.
- Pamatų įrengimas: Dėl mažo konstrukcijų svorio galima išvengti brangių pamatų įrengimo. Pagal SIP technologiją statomam namui nereikalingi galingi pamatai - pakanka ant mažo gylio juostinių ar polinių pamatų.
SIP namą galima pastatyti per 3-6 mėnesius. Amerikiečiai jau seniai renkasi greitai pastatomus namus dėl jų patikimumo. SIP skydai atlaiko skersinę jėgą, lygią 2 tonoms 1-am kv. m apkrovai.
Moduliniai Namai: Šiuolaikinė Statybos Alternatyva
Moduliniai namai yra šiuolaikinė statybos alternatyva, kurioje namai yra konstruojami iš atskirų modulių, pagamintų gamyklose kontroliuojamomis sąlygomis. Šie moduliai yra pilnai sukomplektuoti, įskaitant elektros instaliacijas, santechniką ir pilną apdailą.

Modulinio namo pavyzdys
Modulinių Namų Privalumai:
- Greitas statybos procesas: Kadangi moduliai yra gaminami gamykloje, statybos aikštelėje reikia atlikti tik jų sujungimą.
- Mažesnės statybos išlaidos.
- Aukšta kokybės kontrolė.
- Energetinis efektyvumas.
- Tvarumas: Mažesnis atliekų kiekis statybos metu, tvarios medžiagos, mažesnis energijos suvartojimas gamyboje.
Moduliniai namai siūlo plačias projektavimo galimybes, nuo kompaktiškų vieno aukšto iki erdvių dviejų aukštų namų. Klientai gali pasirinkti iš įvairių išplanavimų ir dydžių, atitinkančių jų poreikius ir skonį. Vienas iš didžiausių modulinių namų privalumų yra galimybė juos pritaikyti. Klientai gali pasirinkti iš įvairių apdailos medžiagų, spalvų, grindų ir interjero detalių. Moduliniai namai taip pat gali būti pritaikyti prie konkrečių sklypo ypatybių bei technologiškai pažangiems sprendimams, įskaitant protingo namo sistemas ir saulės energijos paneles.
Modulinių Namų Statybos Etapai:
- Namo projektavimas: Tai gali užtrukti nuo kelių savaičių iki kelių mėnesių, priklausomai nuo projekto sudėtingumo ir kliento poreikių.
- Modulių gamyba gamykloje: Šis etapas paprastai trunka nuo kelių savaičių iki kelių mėnesių.
- Paruošiamieji darbai statybos aikštelėje.
- Modulių transportavimas ir surinkimas: Transportavimo ir montavimo procesas paprastai užtrunka nuo kelių dienų iki savaitės.
- Baigiamieji darbai: Atliekami išorės ir vidaus apdailos darbai, įrengiamos visos būtinos paslaugos.
- Patikrinimas: Atliekamas išsamus patikrinimas prieš perduodant namą klientui.
Energetinis Efektyvumas ir Tvarumas:
- Šilumos izoliacija: Moduliniai namai dažnai yra statomi su pažangiais šilumos izoliacijos metodais, užtikrinančiais mažesnius šilumos nuostolius.
- Langų ir durų efektyvumas: Aukštos kokybės langai ir durys padeda sumažinti energijos nuostolius.
- Energijos taupymo sistemos.
- Mažesnis atliekų kiekis statybos metu.
- Tvarios medžiagos: Daugelyje modulinių namų naudojamos perdirbtos arba atsinaujinančios medžiagos.
- Mažesnis energijos suvartojimas gamyboje.
- Ilgaamžiškumas: Moduliniai namai yra projektuoti ilgalaikiam naudojimui.
Modulinių Namų Atsparumas ir Priežiūra:
- Stipri konstrukcija: Moduliniai namai yra gaminami laikantis griežtų statybos standartų.
- Aukštos kokybės medžiagos: Naudojamos medžiagos, tokios kaip aukštos kokybės izoliacinės medžiagos, yra atsparios drėgmei ir pelėsiui.
- Patvarumas: Dėl aukštos kokybės statybos ir medžiagų, moduliniai namai yra ilgaamžiški.
- Priežiūra: Moduliniai namai reikalauja panašios ar net mažesnės priežiūros nei tradiciniai namai.
- Atnaujinimo galimybės: Moduliniai namai taip pat suteikia galimybę lengvai atnaujinti ar praplėsti namo erdvę.
- Aplinkos poveikis: Dėl savo konstrukcijos ir medžiagų, moduliniai namai mažiau veikia aplinką per savo gyvavimo ciklą.
Modulinių Namų Kainos Veiksniai:
- Dydis ir kompleksiškumas.
- Pasirinktos medžiagos ir apdaila.
- Transportavimo išlaidos.
- Papildomi darbai ir paslaugos.
- Standartiniai projektai.
- Energetinis efektyvumas.
- Derybos su tiekėjais.
- Papildomi finansavimo šaltiniai.
Nors moduliniai namai gali būti ekonomiškesnis pasirinkimas nei tradiciniai namai, galutinė kaina labai priklauso nuo aukščiau minėtų veiksnių.
Teisiniai Aspektai:
- Statybos Leidimas: Būtina gauti statybos leidimą iš atitinkamos vietos savivaldybės.
- Zonavimo taisyklės: Įsitikinti, kad modulinis namas atitinka vietos zonavimo taisykles.
- Saugumo standartai: Modulinių namų statyba privalo atitikti nacionalinius ir vietos saugumo standartus.
- Energetinis efektyvumas: Daugelyje regionų yra nustatyti minimalūs energijos efektyvumo reikalavimai.
- Sąlygos dėl infrastruktūros.
- Patvirtinimo procesas: Baigus statybas, būtina gauti galutinį patvirtinimą arba naudojimo leidimą.
- Draudimo reikalavimai.
Dažniausiai Užduodami Klausimai apie Modulinius Namus:
- Ar moduliniai namai statomi greičiau nei tradiciniai namai? Taip, statybos laikas gali svyruoti, bet paprastai moduliniai namai pastatomi greičiau.
- Ar moduliniai namai yra kokybiški? Taip, moduliniai namai yra projektuojami ir statomi laikantis aukštų kokybės standartų.
- Ar galima pritaikyti modulinio namo dizainą? Taip, vienas iš didžiausių modulinių namų privalumų yra lankstumas projektavime.
- Ar moduliniai namai yra energetiškai efektyvūs? Taip, moduliniai namai dažnai yra statomi naudojant aukštos kokybės šilumos izoliacines medžiagas ir energiją taupančias sistemas.
- Ar moduliniai namai atitinka statybos kodeksus? Taip, moduliniai namai yra statomi laikantis tų pačių statybos kodeksų ir standartų, kurie taikomi tradiciniams namams.
- Kiek kainuoja modulinis namas? Modulinių namų kainos gali labai skirtis priklausomai nuo dydžio, dizaino, medžiagų kokybės ir kitų individualių pasirinkimų.
- Ar galiu statyti modulinį namą ant savo žemės? Taip, bet pirmiausia turite įsitikinti, kad jūsų žemė atitinka visus reikiamus statybos ir zonavimo reikalavimus.
Gelžbetoninių Konstrukcijų Namai
Statyti surenkamų gelžbetonio konstrukcijų (g/b) namą verta dėl visos eilės priežasčių. Taip pat, turėsite šilumiškai efektyvų, tvirtą ir saugų būstą, pasižymintį puikia garso izoliacija. Verta pabrėžti, jog Europos tarybos direktyvoje 2010/31/ES 2010 m. gegužės 19 d pateiktas reikalavimas, kad nuo 2018 m. visuomeniniai pastatai, o nuo 2020 m. visi nauji pastatai turi būti „beveik nulinės energijos pastatai“ (kitaip tariant, A++ kategorija).
Pagrindinis gelžbetonio pranašumas prieš mūrą - kur kas greitesnis sumontavimas (iki dviejų savaičių) ir montavimo metu neatsirandantis brokas. Kitas gelžbetonio pliusas: pjautinė namui bent jau Lietuvos atveju dažnai prastai išdžiovinama, nes šį procesą pakankamai sunku kontroliuoti. Šiai dienai dažniausiai naudojamas tipinis sienos skerspjūvis - 80/200/120 (betonas/izoliacinė medžiaga/ betonas). Reikalui esant, viduje (tarp betono) naudojamas izoliacinės medžiagos sluoksnis gali būti dar storesnis, kas užtikrintų aukščiausią šiluminį efektyvumą.
Nuo 2007-ųjų modernia suomiška linija gaminami gelžbetoniai nameliai užsakovams palikdavo tik gerą ar labai gerą įspūdį, kadangi proceso trukmė - neilga, gamybos procesai - aiškūs, o didžioji dauguma problemų yra išsprendžiamos priešgamybiniame projekto periode. Klientams, be kita ko, patinka lygios namo sienos.
AB „AKSA“, lietuviško kapitalo įmonė, jau penkias dešimtis metų yra viena pirmaujančių Lietuvos gelžbetonio gamintojų.
Prasidėjo Lietuvos krepšinio namų statybos
Blokinių Daugiabučių Ypatumai ir Renovacija
Lietuvoje seniausi blokiniai daugiabučiai jau skaičiuoja šeštą dešimtį, o jų gyvavimo trukmė, tinkamai prižiūrint, gali siekti net pusantro šimto metų. Kauno technologijos universiteto Architektūros ir statybos instituto (KTU ASI) mokslininkas Mindaugas Augonis teigia, kad renovacija yra viena efektyviausių priemonių prailginti blokinių daugiabučių tarnavimo laiką. Pasak jo, papildomi išoriniai sluoksniai ne tik apsaugo pastato sienas nuo neigiamo aplinkos poveikio, bet ir pagerina jų technines savybes. M. Augonis pažymi, kad šiluminės izoliacijos įrengimas - tai efektyvi ir ekonomiška priemonė, leidžianti pasiekti norimą patalpų temperatūros režimą mažesnėmis energijos sąnaudomis.
M. Augonis pasakoja, kad blokinių daugiabučių išskirtinumas slypi stambiaplokščių gelžbetonio plokščių (blokų) naudojime, kuris ženkliai paspartindavo statybos procesą. Pasak M. Augonio, blokinių namų statyba iš gamykloje pagamintų plokščių turi pranašumų, palyginti su monolitiniais daugiabučiais, statomais tiesiog statybvietėje. „Panašus principas taikomas ir Lietuvoje vis populiarėjančioje modulinėje statyboje, kai pastatų moduliai gaminami gamykloje, o statybvietėje tik surenkami.
Todėl blokinių namų ilgaamžiškumas dažniausiai priklauso nuo išorinių sienų plokščių ir jų siūlių priežiūros. Dėl šių priežasčių išorinėse plokštėse gali atsirasti plyšių. Jei šie pažeidimai nėra laiku pašalinami, pastato išorinių konstrukcijų tarnavimo laikas gali ženkliai sutrumpėti. „Tiesioginę grėsmę pastatų tarnavimo laikui kelia drėgmė. Temperatūros svyravimai sukelia deformacijas sienų plokštėse ir jų siūlėse, dėl kurių siūlės gali tapti nesandarios.
M. „Kaip įprasta, blokinių namų išorės sienos turi mažesnę šiluminę varžą nei plytiniai daugiabučiai, todėl siūlių nesandarumo atveju žemesnė patalpų temperatūra gali skatinti pelėsio plitimą. Anot KTU mokslininko, nors blokinių daugiabučių statyba labiausiai išplito centrinėje ir rytų Europoje, nemažai jų buvo pastatyta ir vakarų Europoje bei JAV. Vakarų Europoje tokių pastatų renovacija prasidėjo dar 2000-aisiais.
M. „Remiantis vakarų šalių patirtimi, blokinių namų renovacija yra veiksminga - kuo anksčiau ji pradedama, tuo daugiau teigiamų rezultatų galima pasiekti, ilginant pastatų tarnavimo laiką. KTU mokslininkas dalijasi, kad tinkamai prižiūrimi blokiniai daugiabučiai tarnauja tiek pat, kiek ir plytiniai. „Renovacija, kurios metu išorinės namo plokštės papildomai padengiamos šiluminės izoliacijos ir apsauginiais sluoksniais, yra viena efektyviausių priemonių pailginti daugiabučių tarnavimo laiką ir sumažinti jų priežiūros išlaidas.
Norint, kad blokinis namas tarnautų ilgiau, būtina reguliariai vertinti išorinių plokščių ir siūlių būklę. Dėl šios priežasties planinis blokinio namo remontas yra itin svarbus užtikrinant ilgalaikį pastato tarnavimą. „Šiandien naudojamos ženkliai efektyvesnės hermetikų medžiagos siūlėms sandarinti ir apsauginės dangos išorinėms plokštėms nei tos, kurios buvo taikomos pradiniame blokinių namų statybos etape“, - pastebi KTU mokslininkas M.

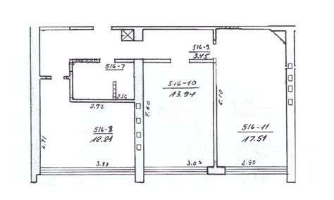
Pavyzdinis 2 kambarių buto planas blokiniame name Šilainiuose, Kaune.
2 Kambarių Buto Planavimas Blokiniame Name
Jei vis dėlto nusprendėte įsigyti 2 kambarių butą blokiniame name, svarbu atkreipti dėmesį į keletą dalykų. Pirmiausia, įvertinkite buto būklę, šildymo sistemą ir garso izoliaciją. Jei planuojate perplanavimą, svarbu žinoti, kurios sienos yra laikančiosios.
Su sienomis blokiniame sovietiniame daugiabutyje reikėtų elgtis ypač atsakingai. Tokios konstrukcijos namas- lyg kortų namelis: sienos ir perdangos čia surinktos iš stambių gelžbetonio plokščių („kortų“), kurių dydis lygus visai kambario sienai ar viso kambario plotui. Plokščių viduje įbetonuota laikančioji armatūra yra lyg audinio siūlai, kuriuos nukirpus, audinys išyra. Skaudžiausia pasekmė būtų sukelti grėsmę viso pastato stabilumui ir gyventojų saugumui.
Visada yra didelė tikimybė, kad dėl kokių nors priežasčių laikančiųjų sienų griovimas bute bus pastebėtas ir užfiksuotas kaip administracinis pažeidimas. Baudos neišvengsite, o kartu gausite privalomą nurodymą per konkretų terminą parengti projektą, pristatyti krūvą dokumentų arba atkurti pirminę padėtį bute. Nemaloni pasekmė- nesutarimai su kaimynais ir priežastis rašyti skundus „grioviko“ adresu, jei dėl statybų sugadintumėte bendrą turtą arba atsirastų koks įtrūkimas gretimo buto sienoje su prabangia apdaila. Prireikus parduoti butą, tikrai susidursite su gaišatimi ir išlaidomis.
Kvalifikuoti statybininkai laikančiąsias konstrukcijas imsis griauti tik turėdami projektą. Pasitelkę architektą buto perplanavimui, iš anksto žinosite, kad kertamos angos numatytos tinkamo dydžio, teisingoje vietoje, be reikalo neišlaidausite statybinėms medžiagoms (metalas sąramoms kainuoja!), dar projektavimo stadijoje įsitikinsite, kad visi svarbūs daiktai ir prietaisai bute sutilps, nes gausite naujų buto erdvių planą su baldais. Šiame etape žmonės nustemba, koks patogus ir talpus gali tapti jų butas, kai jį planuoja specialistas.