Planuojant ar įsigyjant būstą, svarbu suprasti skirtumus tarp gyvenamojo ir naudingo ploto. Šie du rodikliai yra esminiai, vertinant ne tik būsto dydį, bet ir jo funkcionalumą bei atitiktį teisiniams reikalavimams. Šiame straipsnyje išsamiai aptarsime, kas sudaro gyvenamąjį ir naudingąjį plotą, kaip jie apskaičiuojami ir kokie teisės aktai tai reglamentuoja Lietuvoje.
Renkantis būstą, svarbu atkreipti dėmesį ne tik į kainą, bet ir į tai, kas įeina į bendrą ir naudingą plotą. Šie du rodikliai yra skirtingi ir gali turėti įtakos mokesčiams bei pačios gyvenamosios erdvės suvokimui. Šiame straipsnyje išnagrinėsime, kuo skiriasi bendras ir naudingas buto plotas, remiantis Lietuvos Respublikos teisės aktais ir reglamentais.
KAIP VAIDAS APSIŠILDYTŲ SAVO NAMĄ
Kas yra naudingas plotas?
Pagal Statybos techninio reglamento STR 2.02.01:2004 „Gyvenamieji pastatai“ 4.12 punktą, būsto naudingasis plotas - tai gyvenamųjų kambarių ir kitų būsto patalpų (virtuvių, sanitarinių mazgų, koridorių, įstatytų spintų, šildomų lodžijų ir kitų šildomų pagalbinių patalpų) suminis grindų plotas.
Į naudingąjį plotą neįeina balkonų, lodžijų, terasų, nešildomų rūsių grindų plotas.
Būsto naudingasis plotas - tai bendras gyvenamųjų kambarių ir kitų patalpų (virtuvių, sanitarinių mazgų, koridorių, įstatytų spintų, šildomų lodžijų ar kitų pagalbinių patalpų) grindų plotas.
Projektuojant daugiabučius gyvenamuosius namus, bent vienas kambarys bute turi būti ne mažesnis kaip 16 kvad. m, bendras vonios ir tualeto plotas - ne mažesnis kaip 4 kvad. m, o vienam žmogui turi tekti ne mažiau kaip 14 kvad. m.
Būtent šiame dokumente yra nurodoma, kad vonios kambario kartu su tualetu plotas bute turėtų būti bent 4 kv. m. Bent vieno kambario plotas turėtų siekti 16 kv. m, o naudingasis buto plotas vienam žmogui turėtų būti ne mažesnis kaip 14 kv. m. Tai reiškia, kad butas, kuriame yra tik vonios ir vienas gyvenamasis kambarys, turėtų būti bent 20 kv. m ploto.
Pagal Statybos techninio reglamento STR 2.02.01:2004 „Gyvenamieji pastatai“, patvirtinto 2003 m. gruodžio 24 d. įsakymu Nr. 4.12. būsto naudingasis plotas - gyvenamųjų kambarių ir kitų būsto patalpų (virtuvių, sanitarinių mazgų, koridorių, įstatytų spintų, šildomų lodžijų ir kitų šildomų pagalbinių patalpų) suminis grindų plotas. Į naudingąjį plotą neįeina balkonų, lodžiju, terasų, nešildomų rūsių grindų plotas.

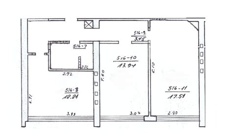
Pavyzdinis buto planas, kuriame matomas patalpų išdėstymas ir plotai.
Gyvenamasis plotas: kas į jį įeina?
Gyvenamasis plotas skaičiuojamas kaip gyventi skirtų uždarų ar pusiau uždarų patalpų plotų suma. Tai apima:
- Svetaines
- Valgomuosius
- Miegamuosius
- Darbo kabinetus
- Gyvenamuosius kambarius
- Virtuves ir kitas gyventi tinkančias šiltas patalpas, kurių grindų plotas didesnis kaip 4 m2.
Šios patalpos turi turėti apšiltintas atitvarines konstrukcijas ir galimybę būti normaliai šildomos žiemą, neatsižvelgiant, ar jose yra stacionariniai šildymo įrenginiai, ar ne.
Pagalbinis plotas yra visų gyvenamųjų patalpų, išskyrus kambarius, verslo patalpas, rūsius (pusrūsius) ir garažus, plotų suma.
Taisyklių 145 punkte nustatyta: „Gyvenamosios patalpos (buto gyvenamuosiuose ir negyvenamuosiuose pastatuose; vieno buto namo; atskiro kambario su bendrojo naudojimo patalpomis) plotas skaičiuojamas kaip gyventi skirtų uždarų ar pusiau uždarų patalpų plotų suma.
Pastato bendras ir naudingas plotas
Statybos techninio reglamento STR 1.05.06:2010 „Statinio projektavimas“ 2 straipsnio 6.10 papunktyje nustatyta: „pastato bendras plotas - visų patalpų ir jų priklausinių (balkonų, lodžų, ant stogo numatomų terasų, verandų ir kitų priklausinių) plotų suma, m2. Į bendrą plotą neįskaitomas uždarų laiptinių, atvirų ar pusiau atvirų laiptinių laiptotakių ir tarpinių aikštelių, liftų šachtų plotas“.
6.11 papunktyje nustatyta: „pastato naudingas plotas - visų šiltomis atitvaromis atitveriamų ar atitvertų patalpų plotų suma, m2.
Apibendrinant, galima teigti, kad į bendrą plotą įeina visos buto patalpos ir jų priklausiniai, o į naudingą - tik tos patalpos, kurios yra apšildomos ir atitvertos.
Kaip apskaičiuojamas namo plotas?
Namo plotas apskaičiuojamas pagal ORGANIZACINIS TVARKOMASIS STATYBOS TECHNINIS REGLAMENTAS STR 1.14.01:1999 PASTATŲ PLOTŲ IR TŪRIŲ SKAIČIAVIMO TVARKA.
Gyvenamojo pastato bendrasis plotas yra visų jame esančių patalpų, tarp jų - ir funkcionaliai susietuose priestatuose, plotų suma. Skaičiuojamos visos patalpos, kurios turi keturias sienas, įskaitant ir sublokuotą garažą.
Neskaičiuojama terasa, rūsys, pastogė (išskyrus atvejus, kai pastogėje įrengtos patalpos, kurių aukštis ne mažesnis kaip 1,60 m). Į plotą įskaičiuojamas iš atitvarų plotas.
Statybos techninio reglamento STR 1.05.06:2010 „Statinio projektavimas“ 2 straipsnio 6.10 papunktyje nustatyta: „pastato bendras plotas - visų patalpų ir jų priklausinių (balkonų, lodžų, ant stogo numatomų terasų, verandų ir kitų priklausinių) plotų suma, m2. Į bendrą plotą neįskaitomas uždarų laiptinių, atvirų ar pusiau atvirų laiptinių laiptotakių ir tarpinių aikštelių, liftų šachtų plotas“.
Svarbu! Tiksliuosius skaičiavimus atlieka matininkai ruošdami inventorinę bylą.
Namo statyba iki 80 kv. m: ką reikia žinoti?
Jei planuojate statyti namą iki 80 kv. m, svarbu žinoti, kaip apskaičiuojamas namo plotas ir kokie leidimai reikalingi. Jus domina II gr. nesudėtingas statinys - Gyvenamasis namas iki 80 kv. m. ir 8,5 m. aukščio.
Skaičiuojamas bendras patalpų plotas be rūsio (antžeminės dalies), su sąlyga, kad rūsiai negali būti įrengti už pastatų ribų.
Nors rūsio plotas skaičiuojamas į pastato bendrąjį plotą, nesudėtingas II-os gr. statinys gyvenamasis namas yra ne daugiau kaip 80 kv.m. visų statinio patalpų ploto, skaičiuojant tik antžeminę dalį.
Į 80 kv. m. plotą įeina visos visų aukštų patalpos (įskaitant pastogės patalpas ir garažą) išskyrus rūsį ir terasas.
Rašytinis pritarimas supaprastintam statybos projektui privalomas statant II grupės nesudėtingą statinį - MIESTE, konservacinio prioriteto ar kompleksinėje saugomoje teritorijoje, kultūros paveldo objekto teritorijoje, kultūros paveldo vietovėje.

Namo projekto iki 80 kv. m pavyzdys
Net ir tuo atveju, kai statybą leidžiantis dokumentas nėra privalomas, rekomenduojama kreiptis į architektą, kuris įvertins esamą sklypo situaciją, patars kaip geriausia organizuoti vidaus erdves, kokias pasirinkti statybines medžiagas ir konstrukcinius sprendinius, esant poreikiui paruoš kokybišką interjero projektą pagal jūsų poreikius ir finansines galimybes.
Reikalavimai daugiabučiams gyvenamiesiems namams
Projektuojant daugiabučius gyvenamuosius namus, būtina atsižvelgti į tam tikrus reikalavimus:
- Bent vienas kambarys bute turi būti ne mažesnis kaip 16 kv. m.
- Bendras vonios ir tualeto plotas - ne mažesnis kaip 4 kv. m.
- Vienam žmogui turi tekti ne mažiau kaip 14 kv. m.
Kiekviename daugiabučiame name turi būti suprojektuoti žmonėms su negalia skirti butai, kurie turi sudaryti ne mažiau kaip 5 proc. visų butų. Šis reikalavimas taikomas tiems namams, kurie yra ne toliau kaip 500 m kelio pėsčiomis iki viešojo transporto stotelių. Pastatuose be lifto butai žmonėms su negalia turi būti planuojami pirmajame aukšte.
Nuo 2014 m. visi Lietuvoje naujai statomi pastatai turi atitikti B energinio naudingumo klasę, o nuo 2016 m. - ne žemesnę kaip A klasę.
KAIP VAIDAS APSIŠILDYTŲ SAVO NAMĄ
Svarbūs aspektai perkantiems būstą
R. Pleteras pabrėžia, kad renkantis naujos statybos būstą, būtina atkreipti dėmesį į tai, ką vystytojas nurodo kaip parduodamo būsto naudingąjį plotą.
Eksperto teigimu, renkantis būstą, klientui visuomet rekomenduojama prašyti naudingąjį būsto plotą įrodančių dokumentų, pvz. buto plano. Buto plane svarbu pastebėti, ar jame nėra įtraukos papildomos ar pagalbinės erdvės, tokios kaip balkonas ir terasa ar sandėliukas.
Įprastai tokiame dokumente nurodomas ne tik buto išdėstymas, bet ir judėjimo srautai, mat labai svarbu iš anksto žinoti, kad, pavyzdžiui, pastačius pastatą, viduryje buto neatsiras atraminė kolona, kuri, be abejonės, mažintų buto plotą.
Visų papildomų ir pagalbinių patalpų plotai turi būti skaičiuojami atskirai ir jokiu būdu neįtraukiami į buto plotą. Pasitaiko atvejų, kai NT skelbimuose buto plotas nurodomas su balkono ar terasos plotu. Taip elgtis negalima, - pabrėžia R. Pleteras ir ragina domėtis būtent naudinguoju būsto plotu.
Visgi, R. Pleteras sako, kad statomo būsto išmatavai kartais gali skirtis nuo tų, kai būstas jau būna pastatytas, tačiau dažniausiai skirtumai būna minimalūs, o dėl jų rekomenduojama sutarti preliminarioje būsto pirkimo-pardavimo sutartyje.
Ekspertas patikina, jei pastatytame bute išryškėja pažeidimai dėl būsto ploto, klientas visuomet gali reikalauti sumažinti perkamo būsto kainą arba išvis atsisakyti sudaryti galutinę pirkimo-pardavimo sutartį.
Tuo pačiu „Bonava Lietuva“ vadovas pažymi, kad visi būsto pirkimo proceso metu kylantys klausimai turi būti sprendžiami iki pagrindinės sutarties pasirašymo.
Pagrindiniai skirtumai tarp naudingojo ir gyvenamojo ploto
Apibendrinant, štai pagrindiniai skirtumai tarp naudingojo ir gyvenamojo ploto:
| Savybė | Naudingasis plotas | Gyvenamasis plotas |
|---|---|---|
| Apibrėžimas | Bendras gyvenamųjų kambarių ir kitų patalpų grindų plotas (virtuvės, san. mazgai, koridoriai ir kt.) | Gyventi skirtų uždarų ar pusiau uždarų patalpų plotų suma (svetainės, miegamieji, virtuvės ir kt.) |
| Įeina | Visos šildomos patalpos | Tik gyvenamieji kambariai |
| Neeina | Balkonai, lodžijos, terasos, nešildomi rūsiai | Pagalbinės patalpos (koridoriai, san. mazgai ir kt.) |
Suprasdami šiuos skirtumus ir reikalavimus, galėsite priimti pagrįstus sprendimus planuojant ar įsigyjant būstą.