Patalpų eksplikacija yra svarbus dokumentas, kuris pateikia išsamią informaciją apie pastato vidaus erdves. Šiame straipsnyje aptarsime, kas yra patalpų eksplikacija, kam ji reikalinga ir kaip ją teisingai parengti. Pateiksime pavyzdžių ir patarimų, kad galėtumėte lengvai suprasti šį procesą.

Kas Yra Patalpų Eksplikacija?
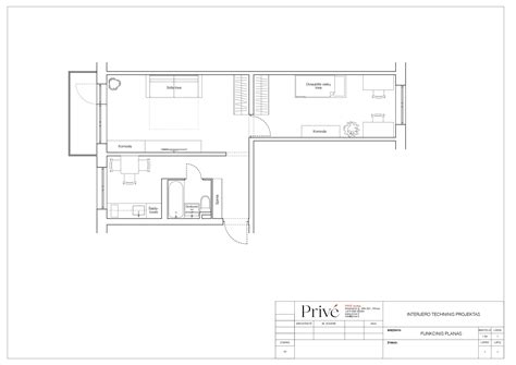
Patalpų eksplikacija - tai grafinis ir tekstinis dokumentas, kuris detaliai aprašo pastato patalpas. Ji yra neatsiejama statybos projekto dalis ir naudojama įvairiose situacijose, pavyzdžiui, norint gauti statybos leidimą, parduodant ar nuomojant patalpas, taip pat atliekant patalpų inventorizaciją.
Eksplikacijoje pateikiama informacija apie kiekvienos patalpos numerį, pavadinimą, plotą ir funkcinę paskirtį. Šis dokumentas padeda aiškiai identifikuoti kiekvieną pastato erdvę ir suprasti jos naudojimo tikslą.
Eksplikacijoje paprastai nurodomi šie duomenys:
- Patalpos numeris
- Patalpos pavadinimas (pvz., virtuvė, kambarys, vonia)
- Patalpos plotas (kvadratiniais metrais)
Eksplikacijoje taip pat gali būti nurodyta papildoma informacija, tokia kaip langų ir durų skaičius, apdailos medžiagos ir kitos svarbios detalės. Ši informacija gali būti naudinga planuojant remontą ar įrengiant baldus.
Kam Reikalinga Patalpų Eksplikacija?
Patalpų eksplikacija atlieka kelias svarbias funkcijas:
- Statybos leidimui gauti: Eksplikacija yra būtina norint gauti statybos leidimą, nes ji leidžia savivaldybei įvertinti pastato atitiktį planavimo reikalavimams.
- Patalpų pardavimui ar nuomai: Eksplikacija padeda potencialiems pirkėjams ar nuomininkams suprasti patalpų išplanavimą ir plotą.
- Inventorizacijai: Eksplikacija naudojama patalpų inventorizacijai, siekiant tiksliai nustatyti pastato plotą ir patalpų išdėstymą.
- Projektavimo darbams: Architektai ir interjero dizaineriai naudoja eksplikaciją kaip pagrindą planuojant patalpų rekonstrukciją ar pertvarkymą.
Kaip Parengti Patalpų Eksplikaciją?
Patalpų eksplikacijos rengimas reikalauja kruopštumo ir tikslumo. Štai keletas žingsnių, kaip tai padaryti:
- Patalpų plano parengimas: Pirmiausia reikia parengti detalų patalpų planą, kuriame būtų pažymėtos visos patalpos ir jų ribos.
- Patalpų numeracija: Kiekvienai patalpai priskiriamas unikalus numeris. Numeracija turi būti nuosekli ir aiški.
- Patalpų pavadinimų nustatymas: Kiekvienai patalpai suteikiamas pavadinimas, atspindintis jos funkcinę paskirtį (pvz., svetainė, miegamasis, virtuvė).
- Patalpų ploto apskaičiavimas: Apskaičiuojamas kiekvienos patalpos plotas kvadratiniais metrais. Svarbu užtikrinti, kad matavimai būtų tikslūs.
- Eksplikacijos lentelės sudarymas: Sukuriama lentelė, kurioje pateikiama informacija apie kiekvieną patalpą: numeris, pavadinimas, plotas ir kita svarbi informacija.

Pavyzdinė Patalpų Eksplikacijos Lentelė
Štai pavyzdinė patalpų eksplikacijos lentelė, kurią galite naudoti kaip šabloną:
| Patalpos Numeris | Patalpos Pavadinimas | Plotas (m²) | Paskirtis |
|---|---|---|---|
| 1 | Svetainė | 25.5 | Poilsis |
| 2 | Virtuvė | 12.0 | Maisto gaminimas |
| 3 | Miegamasis | 18.0 | Poilsis |
| 4 | Vonios kambarys | 6.0 | Higiena |
Žemiau pateikiama lentelė su pavyzdine 1 kambario buto eksplikacija:
| Patalpos numeris | Patalpos pavadinimas | Patalpos plotas (kv. m) |
|---|---|---|
| 1 | Kambarys | 18.5 |
| 2 | Virtuvė | 6.0 |
| 3 | Vonia | 3.5 |
| 4 | Koridorius | 4.0 |
| 5 | Balkonas | 3.0 |
Šis pavyzdys rodo, kaip gali atrodyti tipinė 1 kambario buto eksplikacija. Kiekviena eilutė apibūdina atskirą patalpą, nurodant jos numerį, pavadinimą ir plotą.
Pateikiame išsamesnį eksplikacijos pavyzdį su papildoma informacija:
| Patalpos numeris | Patalpos pavadinimas | Patalpos plotas (kv. m) | Apdailos medžiagos | Kita informacija |
|---|---|---|---|---|
| 1 | Kambarys | 18.5 | Tapetai, laminatas | 2 langai, 1 durys |
| 2 | Virtuvė | 6.0 | Plytelės, dažai | 1 langas, dujinė viryklė |
| 3 | Vonia | 3.5 | Plytelės | Dušo kabina, WC |
Šiame pavyzdyje matome, kad kiekviena patalpa turi ne tik numerį, pavadinimą ir plotą, bet ir papildomą informaciją apie apdailos medžiagas ir kitas svarbias detales. Tai gali būti ypač naudinga planuojant remontą ar įrengiant baldus.
Kaip Naudoti Eksplikaciją?
Eksplikacija gali būti naudinga įvairiais atvejais:
- Planuojant remontą: Žinant patalpų plotą, galima tiksliau apskaičiuoti reikalingų medžiagų kiekį.
- Įrengiant baldus: Eksplikacija padeda suprasti, kokio dydžio baldai tilps į patalpą.
- Perkant ar parduodant butą: Eksplikacija yra svarbus dokumentas, kuris suteikia informacijos apie buto išplanavimą ir plotą.
Svarbūs Patarimai Rengiant Eksplikaciją
- Tikslumas: Būtina užtikrinti, kad visi matavimai ir duomenys būtų tikslūs. Klaidos gali sukelti problemų ateityje.
- Aiškumas: Eksplikacija turi būti aiški ir lengvai suprantama. Vengti dviprasmiškų terminų ir neaiškių žymėjimų.
- Atitiktis standartams: Eksplikacija turi atitikti galiojančius statybos reglamentus ir standartus.
- Profesionali pagalba: Jei nesate tikri, kaip parengti eksplikaciją, kreipkitės į profesionalius architektus ar inžinierius.
Taigi, eksplikacija yra nepakeičiamas įrankis kiekvienam, kuris nori geriau suprasti savo būstą ir efektyviai planuoti jo įrengimą ar remontą.
Patalpų eksplikacija yra svarbus dokumentas, kuris padeda užtikrinti aiškumą ir tikslumą, susijusį su pastato vidaus erdvėmis. Teisingai parengta eksplikacija padeda išvengti nesusipratimų ir problemų ateityje.
tags: #parduotuves #patalpu #eksplikacija