Dirbdami su gyvenamųjų namų projektais, susiduriame su dviejų tipų problemomis. Pirma problema - skaudi klientams: į mus kreipiasi užsakovai, kurie ateina jau pradėję namo projektavimo ar net statybos darbus, bet dėl tam tikrų priežasčių projekto sklandžiai įgyvendinti jiems nepavyksta. Antra problema ypač aktuali mums kaip architektams.
Dėl to norime pasidalinti savo specialiai sukurtu namo iki 80 m² projektu, kurį pozityviai pavadinome „Labas namas.“ Būtent šiuo projektu dalinamės dėl jo universalaus ir lengvai pritaikomo išplanavimo bei paprasto, modernaus, universalaus dizaino.
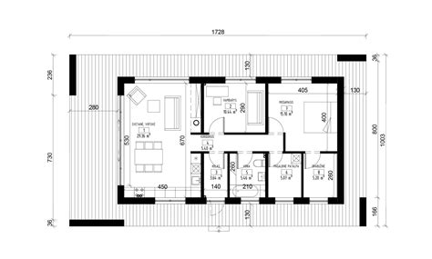
Pirmąjį nemokamą projektą pasirinkome daryti būtent patenkantį į nesudėtingo statinio kategoriją (iki 80 m²), kadangi šiuo metu tokio tipo namų itin populiarūs dėl kompaktiško namo statybų kainos konkurencingumo su buto kaina, taip pat galimybės greitai pradėti statybas. Name numatyti 3 kompaktiški (arba 2 erdvūs) kambariai, didelis vonios kambarys, virtuvė su valgomuoju ir svetaine, vieta sandėliukui bei dengta terasa. Projektu dalinamės su visais susidomėjusiais.
Projektą galima koreguoti su mumis ar kitu jūsų pasirinktu kvalifikuotu architektu. Projektai, statybos leidimai. Statybos darbais neužsiimame!
Gyvenamojo namo projektas Ančia
Mažų Namų Projektai: Populiarumas ir Privalumai
Šiuo metu vis populiarėja kompaktiško išplanavimo namai, kurie tampa pigesne alternatyva butui mieste, o tokio namo gyventojai...

Mažų, kompaktiškų iki 80 kv.m gyvenamųjų namų projektai tinkantys gyventi 2-4 asmenų šeimai. Nesudėtingos statybos namai.
Reikalavimai Statant Namą Iki 80 m²
Statant ūkinį pastatą Lietuvoje už miesto ribų iki 80 m² arba namą sodo bendrijose iki 50 m² (nuo lapkričio 1-os d. 2024), galioja specifiniai reikalavimai, kuriuos būtina žinoti, norint tinkamai pasiruošti statybos procesui ir išvengti teisinių komplikacijų.
- Pagal Lietuvos Respublikos teisės aktus, norint statyti ūkinį pastatą iki 80 m² už miesto ribų arba namą sodo bendrijose iki 50 m², statybos leidimas nereikalingas. Nors leidimas nereikalingas, būtina informuoti savivaldybės administraciją apie planuojamą statybą. Informavimas atliekamas pateikiant pranešimą, kuriame nurodoma statinio vieta ir tikslai.
- Svarbu įsitikinti, kad žemės sklypo paskirtis leidžia statyti norimą pastatą. Sklypai gali būti žemės ūkio paskirties, sodo ar miško žemės, ir kiekvienas jų turi savus reikalavimus statyboms. Žemės ūkio paskirties sklypuose paprastai leidžiama statyti tik su ūkininkavimu susijusius pastatus, o sodo sklypuose - nedidelius vasarnamius ar gyvenamuosius pastatus iki 50 m².
- Vienas svarbiausių techninių reikalavimų - minimalūs atstumai nuo sklypo ribų. Pagal teisės aktus, pastatas turi būti pastatytas ne arčiau kaip 3 metrai nuo kaimyninio sklypo ribos. Jei norima statyti arčiau, reikia gauti rašytinį sutikimą iš kaimyninio sklypo savininko.
- Projektavimo metu taip pat reikia atsižvelgti į pastato aukščio ir aukštų skaičiaus apribojimus. Lietuvoje gyvenamiesiems pastatams ir ūkiniams pastatams iki 80 m² dažniausiai taikomi apribojimai, leidžiantys statyti ne daugiau kaip vieną aukštą su mansarda.
- Pagal naujausius reikalavimus, visi naujai statomi gyvenamieji namai Lietuvoje turi atitikti A++ energinio naudingumo klasę. Tai reiškia, kad pastatai turi būti itin gerai izoliuoti, naudoti energiją taupančias technologijas bei atsinaujinančius energijos šaltinius.
- Prieš statant pastatą svarbu įsitikinti, kad žemės sklypas turi tikslius kadastrinius matavimus.
- Nors mažiems pastatams iki 80 m² gali būti nereikalaujamas statybos leidimas, tačiau būtina pasirūpinti inžinerinių tinklų prijungimu reikalavimais: elektros, vandentiekio, kanalizacijos ir kitų komunikacijų įrengimu.
- Net jei pastatas mažas, jis turi atitikti tam tikrus saugos ir aplinkosaugos reikalavimus.
Statant sodo namą, vasarnamį ar ūkinį pastatą iki 80 m² už miesto ribų arba sodo bendrijose, būtina laikytis aukščiau išvardytų reikalavimų.

Namo Projekto Kainos
Lietuvoje nedidelių namų iki 80 m² kainos labai skiriasi priklausomai nuo vietos, pasirinktos statybų technologijos, medžiagų, darbų sudėtingumo ir galutinio įrengimo lygio. Statant namą iki 80 m² Lietuvoje, bendra kaina svyruoja nuo 40 000 iki 150 000 EUR ir daugiau, priklausomai nuo individualių pasirinkimų.
Pavyzdiniai Namų Projektai ir Jų Kainos:
| Projektas | Bendras Plotas (m²) | Aukštų sk. | Kambarių sk. | Statybos kaina (Eur) | Kaina be statybos leidimo (Eur) | Kaina su statybos leidimu (Eur) |
|---|---|---|---|---|---|---|
| M066 | 83.81 | 1 | 4 | 83810.00 | 1290 | 3990 |
| M120 | 79.28 | 1 | 4 | 79280.00 | 1290 | 3990 |
| M028 | 112.79 | 1 | 4 | 112790.00 | 1290 | 3990 |
| M048 | 79.10 | 1 | 3 | 79100.00 | 1290 | 3990 |
| M015 | 177.35 | 1 | 5 | 177350.00 | 1290 | 3990 |
| Akcija-AKC | 100 | 1 | 5 | 100000 | nuo 3490 | nuo 3490 |
Patarimai Planuojantiems Statyti Mažą Namą
Projektuojant nedidelį namą, svarbu nuosekliai laikytis tam tikrų etapų, užtikrinančių sklandų procesą ir geriausią rezultatą. Pabaigai, planuojantiems statyti mažo ploto namą, patariama nepamiršti - kuo mažesnė erdvė, tuo atsakingiau ir efektyviau turi būti planuojamas kiekvienas centimetras.
Tiesa, dažnas, kuris taupydamas erdvę pamiršta numatyti vietą pagalbinėms patalpoms: sandėliukui, katilinei. Visgi, apsisprendus statyti mažo ploto namą, vertėtų nepamiršti, kad atmetus būtinas erdves, gyvenamosioms erdvėms lieka apie 60-65 kv.m. ploto - šiek tiek daugiau nei gyvenant bute.
Kai kurie ilgainiui pradeda ieškoti tam tikrų išeičių, pavyzdžiui, planuoja statyti priestatą. Svarbu žinoti, kad priestatas turi būti visiškai atskirų konstrukcijų nuo namo (jei namas nugriūtų, priestatas ir be jo liktų stovėti).

Šio namo projektas skirtas nedideliam žemės sklypui, taigi, gali būti statomas ir 4,5 aro žemės sklype. Namo gyvenamasis plotas orientuotas į 2 - 3 asmenų jauną šeimą. Tai - puiki perpektyva...
Individualus gyvenamasis namas yra apie 80 kv.m. bendro ploto. Namo projektas skirtas 3-4 asmenų šeimai. Projektuojant šį pastatą didelis dėmesys kreipiamas i poilsio zoną, todėl paliktą didelė...
Trokštantiems nedidelio jaukaus namuko siūlome šį jaukų 80 m² vieno aukšto vienbutį gyvenamąjį namą. Didžiausias šio gyvenamojo namo išskirtinumas - interjero sprendiniai. Nors ir nedidelis namukas tačiau jis kuo puikiausiai sutalpina butiniaus poreikius čia gyvenantiems.
Statybos procese numatoma naudoti A+ energetinės klasės namams būdingus technologinius sprendinius, tad sveika, jauki ir ekonomiškai bei ekologiškai patraukli aplinką - garantuota. Tad, jeigu ieškote kažko paprasto, minimalaus ir atitinkančio jūsų poreikius? Šis vieno aukšto vienbutis gyvenamasis namas - idealus pasirinkimas nedidelei (2-3 asm.) šeimai, kuri svajoja gyventi jaukioje ir gamtos apsuptoje vietoje.
Tokio tipo namas puikus pasirinkimas dėl savo ekonomiškumo ir technologinių sprendimų. A+ klasės energetinio naudingumo pastatas suprojektuotas atsižvelgiant į vietos, kurioje gyvenama, klimatą bei šeimininkų reikmes. Būtent dėl to, sunaudojamos energijos kiekis - nedidelis. Vienbutis gyvenamasis namas labai paprastas ir orientuotas į minimalizmą bei ramybę mėgstančius žmones. Šis gyvenamojo namo projektas - gera alternatyva šeimoms, kurioms atsibodo gyventi daugiaaukščiuose namuose.
Vieno aukšto vienbučio gyvenamojo namo projektas jums pasirodė patrauklus? Šio projekto tradicinės architektūrinės formos ir medžio apdaila puikiai įsilies į gamtinę aplinką.
Namelio pirmame aukšte įrengta pirtis bei priešpirtis, dušas ir tualeto kambarys vienoje patalpoje. Namelyje taip pat įrengta nedidelė atvirto tipo virtuvėlė, kuri jungiasi su kambariu sudarydama dar didesnės erdvės pojūtį. Kadangi virtuvė yra atvira, nebūsite atitrūkę nuo draugų kompanijos ar šeimos, net ir joje „besisukdami“.
tags: #gyvenamasis #namas #iki #80m2